EasyManua.ls Logo

HearthStone Heritage 8021 - Chimney Connector Clearances

HearthStone Heritage 8021
30 pages
Print Icon
To Next Page IconTo Next Page
To Next Page IconTo Next Page
To Previous Page IconTo Previous Page
To Previous Page IconTo Previous Page
Loading...
Hearthstone Quality Home Heating Products, Inc. ® Heritage Model 8021
Page 15 of 30
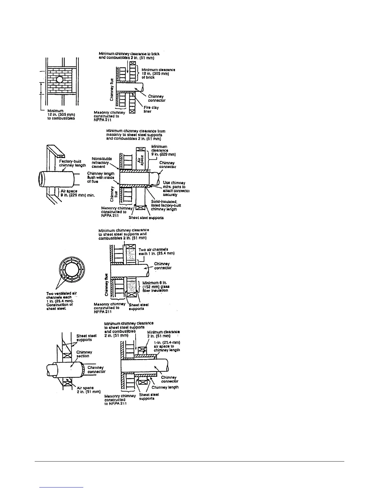
Chimney Connector Systems and Clearances
from Combustible Walls for Residential Heating
Appliances
A. Minimum 3.5in thick brick masonry all
framed into combustible wall with a
minimum of 12in. brick separation from clay
liner to combustibles. The fire clay liner
shall run from outer surface of brick wall to,
but not beyond, the inner surface of chimney
flue liner and shall be firmly cemented in
place.
B. Solid-insulated, listed factory-built chimney
length of the same inside diameter as the
chimney connector and having 1in. or more
of insulation with a minimum 9in. air space
between the outer wall of the chimney length
and combustibles.
C. Sheet steel chimney connector, minimum 24
gauge in thickness, with a ventilated thimble,
minimum 24 gauge in thickness, having two
1in. air channels, separated from
combustibles by a minimum of 6in of glass
fiber insulation. Opening shall be covered,
and thimble supported with a sheet steel
support, minimum 24 gauge in thickness.
D. Solid insulated, listed factory-built chimney
length with an inside diameter 2in. larger
than the chimney connector and having 1in.
or more of insulation, serving as a pass-
through for a single wall sheet steel chimney
connector of minimum 24 gauge thickness,
with a minimum 2in. air space between the
outer wall of chimney section and
combustibles. Minimum length of chimney
section shall be 12in. chimney section
spaced 1in. away from connector using
sheet steel support plates on both ends of
chimney section. Opening shall be covered,
and chimney section supported on both
sides with sheet steel supports securely
fastened to wall surfaces of minimum 24
gauge thickness. Fasteners used to secure
chimney section shall not penetrate chimney
flue liner.

Related product manuals