EasyManua.ls Logo

Heat Controller GMUH - Gas Supply and Piping Installation; Furnace Gas Supply Warning; Gas Piping Installation Codes; Gas Supply Line and Valve Requirements

Heat Controller GMUH
40 pages
Print Icon
To Next Page IconTo Next Page
To Next Page IconTo Next Page
To Previous Page IconTo Previous Page
To Previous Page IconTo Previous Page
Loading...
21
FIGURE 15
GAS PIPING INSTALLATION
GAS PIPE INSTALLATION
GAS SUPPLY AND PIPING
GAS SUPPLY
THIS FURNACE IS EQUIPPED AT
THE FACTORY FOR USE ON
NATURAL GAS ONLY. CONVERSION
TO LP GAS REQUIRES A SPECIAL
KIT AVAILABLE FROM THE
DISTRIBUTOR. FAILURE TO USE THE
PROPER CONVERSION KIT CAN
CAUSE FIRE, CARBON MONOXIDE
POISONING, EXPLOSION,
PROPERTY DAMAGE, PERSONAL
INJURY OR DEATH.
See the conversion kit index supplied
with the furnace. This index identifies
the proper LP Gas Conversion Kit
required for each particular furnace.
IMPORTANT: Any additions, changes
or conversions required for the furnace
to satisfactorily meet the application
should be made by a qualified installer,
service agency or the gas supplier,
using factory-specified or approved
parts. In the commonwealth of
Massachusetts, installation must be
performed by a licensed plumber or gas
fitter for appropriate fuel.
IMPORTANT: Connect this furnace only
to gas supplied by a commercial utility.
IMPORTANT: A U.L. recognized
fuel gas and CO detector(s) are
recommended in all applications,
and their installation should be in
accordance with the detector
manufacturer’s recommendations
and/or local laws, rules, regulations or
customs.
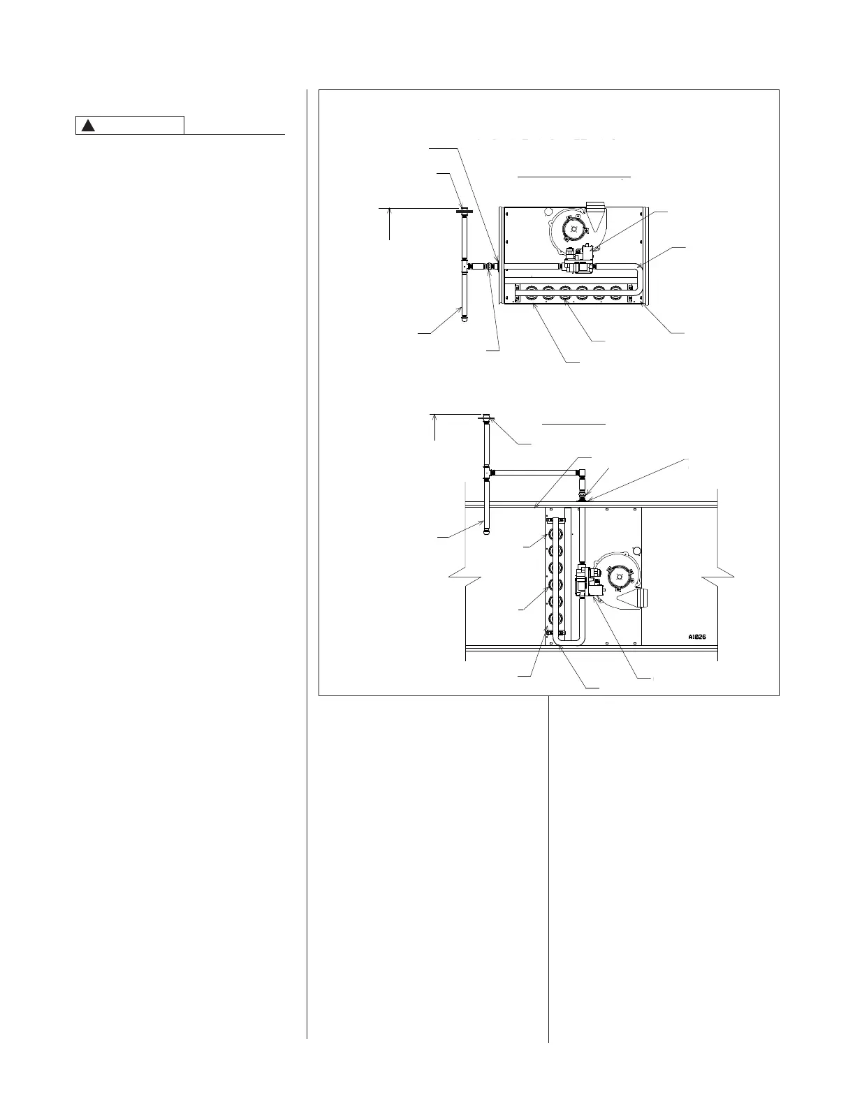
GAS PIPING (SEE FIGURE 15)
Install the gas piping according to all
local codes, state codes and regulations
of the utility company, whichever holds
jurisdiction.
If possible, run a separate gas supply
line directly from the meter to the
furnace. Consult the local gas company
for the location of the manual main shut-
off valve. The gas line and manual gas
valve must be adequate in size to
prevent undue pressure drop and never
smaller than the pipe size to the
combination gas valve on the furnace.
Refer to Table 2 for the recommended
pipe size for natural gas and Table 3 for
LP gas pipe sizes.
IMPORTANT: It is permissible to run
flexible gas connector inside the unit to
a piece of black pipe. If local codes
!
WARNING
allow the use of a flexible gas appliance
connector, always use a new listed
connector. Do not use a connector
which has previously serviced another
gas appliance. Massachusetts law
limits flexible gas connectors to a
maximum of 36”.
Install a ground joint union outside the
cabinet to easily remove the control
valve assembly. Install a manual shut-
off valve in the gas line outside the
furnace casing. The valve should be
readily accessible to turn the gas
supply on or off. Install a drip leg in the
gas supply line as close to the furnace
as possible. Always use a pipe
compound resistant to the action of
liquefied petroleum gases on all
threaded connections.
IMPORTANT: When making gas pipe
connections, use a back-up wrench to
prevent any twisting of the control
assembly and gas valve. Do not
overtighten the connection.
Any strains on the gas valve can
change the position of the gas orifices
in the burners. This can cause erratic
furnace operation.
IMPORTANT: ENSURE that the
furnace gas control valve not be
subjected to high gas line supply
pressures.
DISCONNECT the furnace and its
individual shut-off valve from the gas
supply piping during any pressure
testing that exceeds 1/2 PSIG
(3.48 kPa).
G
ROMMET
(
IN NORMAL POSITION)
G
AS VALVE
M
ANIFOLD
MANIFOLD
FLAME SENSOR
FLAME
SENSOR
BURNERS
BURNERS
DIRECT SPARK
IGNITOR
DIRECT SPARK IGNITOR
MANUAL GAS VALVE (IN CLOSED POSITION)
UNION
DUCT
UNION
DRIP LEG
DRIP LEG
4 TO 5 FEET
ABOVE FLOOR
REQ'D BY SOME
UTILITIES
4 TO 5 FEET
ABOVE FLOOR
REQ'D BY SOME
UTILITIES
GROMMET
(IN NORMAL
POSITION)
UPFLOW & DOWNFLOW
H
ORIZONTAL
M
ANUAL GAS VALVE
(
IN CLOSED POSITION)
GAS VALVE

Related product manuals