EasyManua.ls Logo

Heat Controller GMUH - Maintenance and Filter Requirements; Disconnect Power for Maintenance; Filter Application and Placement; Filter Location Recommendations

Heat Controller GMUH
40 pages
Print Icon
To Next Page IconTo Next Page
To Next Page IconTo Next Page
To Previous Page IconTo Previous Page
To Previous Page IconTo Previous Page
Loading...
35
FIGURE 23
FILTER RETAINING ROD
DISCONNECT MAIN ELECTRICAL
P
OWER TO THE UNIT BEFORE
ATTEMPTING ANY MAINTENANCE.
FAILURE TO DO SO CAN CAUSE
ELECTRICAL SHOCK RESULTING IN
SEVERE PERSONAL INJURY OR
DEATH.
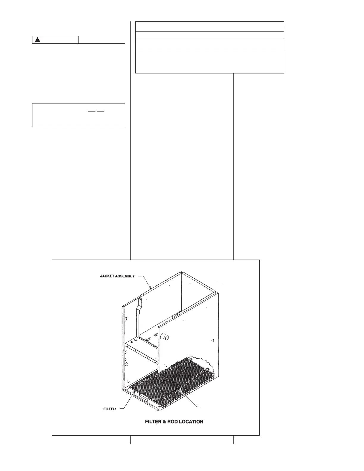
FILTERS
Filter application and placement are
critical to airflow, which may affect the
heating and cooling system
performance. Reduced airflow can
shorten the life of the systems major
components, such as motor, limits,
elements, heat exchanger, evaporator
coil or compressor. Consequently, we
recommend that the return air duct
system have only one filter location.
The most common location will be
inside the furnace or air handler or a
filter base. For systems with a return
air filter grill or multiple filter grills, can
have a filter installed at each of the
return air openings. DO NOT DOUBLE
FILTER THE RETURN AIR DUCT
SYSTEM. DO NOT FILTER THE
SUPPLY AIR DUCT SYSTEM.
TABLE 10 FILTER SIZES
MAINTENANCE
WARNING
!
*NOTE: Some filters
must be ordered or
resized to fit certain
units and
applications.
UPFLOW FILTER SIZES AS SHIPPED
P
ART FURNACE INPUT BOTTOM SIDE
QUANTITY
N
O. WIDTH BTUH SIZE SIZE
54-24094-01 14 50 12
1
/4" X 25" 15
3
/4" X 25" 1
5
4-24094-01 17
1
/2"
75 & 100 15
3
/4"
X 25" 15
3
/4"
X 25" 1
5
4-24094-02 21" 100 19
1
/4"
X 25" 15
3
/4"
X 25" 1
5
4-24094-03 24
1
/2"
125 & 150 22
3
/4"
X 25" 15
3
/4"
X 25" 1
FILTER
ROD
45-24095-01
NOTE: These models are not
factory equipped with filters or filter
rods. Filters must be field installed.
IMPORTANT: Do not operate the
system for extended periods without
f
ilters. A portion of the dust entrained in
the air may temporarily lodge in the air
duct runs and at the supply registers.
Any circulated dust particles will be
heated and charred by contact with the
furnace heat exchanger. This sooty
residue will soil ceilings, walls, drapes,
carpets, and other household articles.
Soot damage may also result with, or
without, filters in place, when certain
types of candles are burned, or
candlewicks are left untrimmed.
If high efficiency filters or electronic air
cleaners are used in the system, it is
i
mportant that the airflow is not
reduced to maximize system
performance and life. Always verify that
the systems airflow is not impaired by
the filtering system that has been
installed, by performing a temperature
rise and temperature drop test.
Keep the air filters clean at all times.
Vacuum dirt from filter, wash with
detergent and water, air dry thoroughly
and reinstall.
See Table 10 and Figures 24 and 25 for
proper filter sizes and locations.
1. 14”- 50,000 BTUH unit requires
removal of 3
1
/2 segment of filter and
frame to get proper width for a
bottom filter.
2. 21”-100,000 BTUH unit requires
removal of 3
1
/2 segment of filter and
frame to get proper width for a side
filter.
3. 24
1
/2”-125,000 and 150,000 BTUH
units require removal of 7” segment
of filter and frame to get proper
width for a side filter.

Related product manuals