EasyManua.ls Logo

Heta INSPIRE 55 - Stovedrawings;Measurments

Default Icon
28 pages
Print Icon
To Next Page IconTo Next Page
To Next Page IconTo Next Page
To Previous Page IconTo Previous Page
To Previous Page IconTo Previous Page
Loading...
22
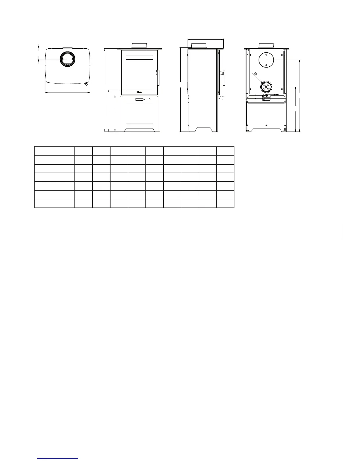
H
I
G
D
F
A
B
E
C
100
Type A B C D E F G H I
Inspire 40 113 460 467 367 190 596 160 585 106
Inspire 40H 113 460 737 367 460 866 430 855 377
Inspire 45 116 540 451 377 165 566 211 555 79
Inspire 45H 116 540 751 377 465 866 511 855 380
Inspire 55 130 652 451 403 165 566 212 555 79
Inspire 55H 130 652 806 403 520 922 567 910 434
F: Measurements to openings
2.5 Stovedrawings/measurments

Other manuals for Heta INSPIRE 55

Related product manuals