EasyManua.ls Logo

Hisense HKF-D1EC/C - 4 DI E si I E Pesi Serie H FD1 EC C

Hisense HKF-D1EC/C
Print Icon
To Next Page IconTo Next Page
To Next Page IconTo Next Page
To Previous Page IconTo Previous Page
To Previous Page IconTo Previous Page
Loading...
pag. 7Manuale di Installazione, Uso e Manutenzione - Serie HKFD1EC/C
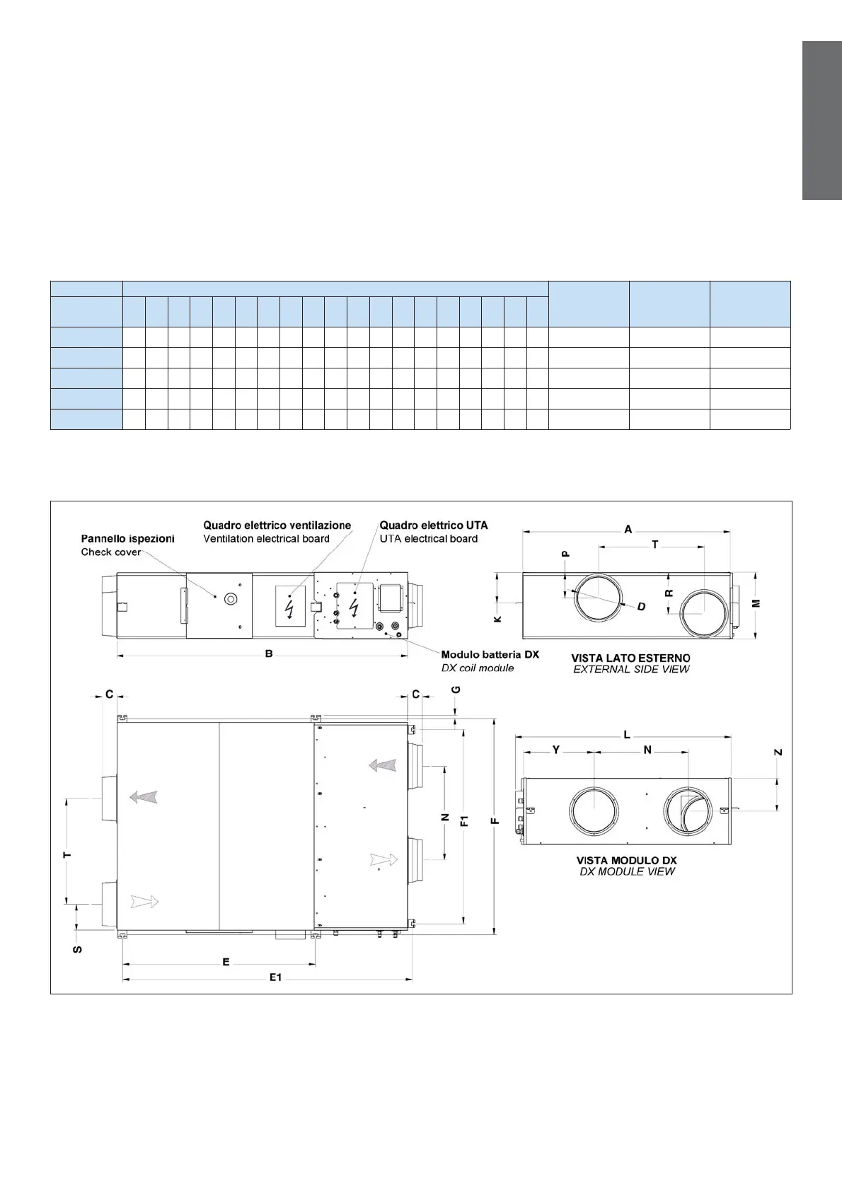
1.4 Dimensioni e pesi serie HKFD1EC/C
Italiano
(1) Multiple = Multivelocità > 3
Man = Manuale da selettore o tastiera; 0-10V = Da potenziometro o tastiera; VSD = Modulazione da sensore qualità/umidità aria
(2) Livello di pressione sonora valutata a 1 m da: mandata-espulsione canalizzata/ripresa aria esterna canalizzata/lato ispezioni alle condizioni
nominali
(3) Aria esterna -5°C 80% UR; aria ambiente 20°C 50% UR
(4) Aria esterna 32°C 50% UR; aria ambiente 26°C 50% UR
(5) Secondo regolamento UE 1253/2014: alla pressione nominale; condizioni di temperatura e umidità riferite a EN 308
(6) Aria ingresso batteria: 13°C BS, 40% UR (11°C BS, 45% UR); condensazione 40°C
(7) Aria ingresso batteria: 28,5°C BS, 50% UR; evaporazione 7°C
Modello / Model Dimensione / Dimension [mm]
Peso netto / lordo
Weight net / gross
[Kg]
Dimensioni imballo
Packing dimensions
[mm]
Sovrapponibilità
imballaggi
Packaging overlap
HKFD1EC/C A B C D E E1 F F1 G L T K M N P R S Y Z
50 904 1450 107 200 825 1445 960 830 19 955 500 135 270 350 135 135 202 350 135 90 - 98
1750x1120x420
6
65 884 1745 85 250 1115 1735 940 810 19 945 428 170 388 390 170 170 228 340 170 95 - 105 1750x1120x420 5
80 1134 1745 85 250 1115 1735 1190 1060 19 1200 678 170 388 500 170 170 228 415 195 100 - 110
2010x1380x540
5
1
00 1216 1750 85 250 1130 1750 1273 1140 19 1290 621 171 388 550 146 241 151 415 195 105 - 120
2080x1460x540
5
130 1216 1750 85 250 1130 1750 1273 1140 19 1290 621 171 388 550 146 241 151 415 195 105 - 120
2080x1460x540
5

Table of Contents