EasyManua.ls Logo

Hitachi RASM-2VRE - 7.1 Refrigerant cycle and hydraulic circuit for Split system

Hitachi RASM-2VRE
142 pages
Print Icon
To Next Page IconTo Next Page
To Next Page IconTo Next Page
To Previous Page IconTo Previous Page
To Previous Page IconTo Previous Page
Loading...
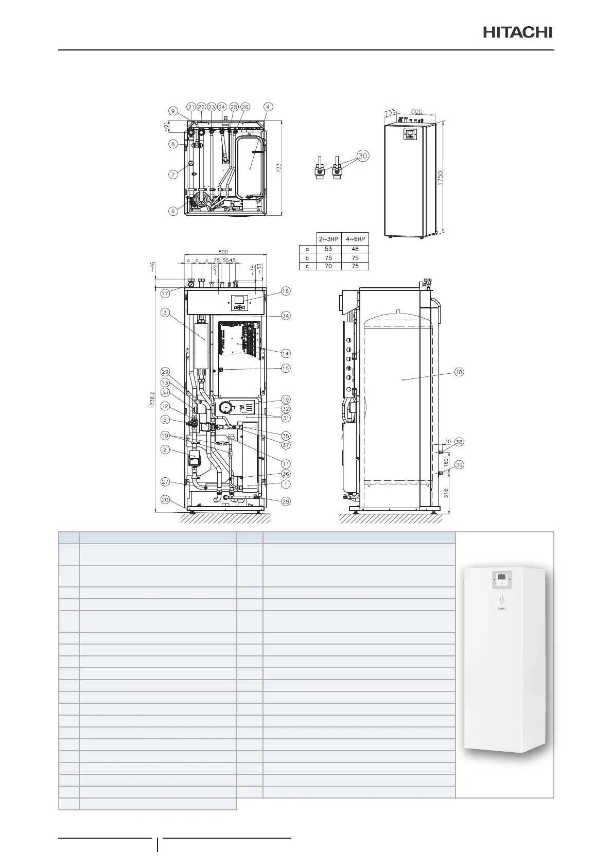
6 General dimensions
Name of parts and Dimensional data
TCGB0123 rev.2 - 10/2019
84
Model for solar combination
RWD-(2.0-3.0)NRWSE-260S(-W)
Top view
Front view
Side view
Units in: mm
XEKS1725
Part name Part name
1 Plate heat exchanger 21
Water inlet pipe connection
2.0-3.0HP: G 1” female
2 Water pump 22
Water outlet pipe connection
2.0-3.0HP: G 1” female
3 Electric water heater 23 DHW inlet pipe connection - G 1/4” female
4 Expansion vessel 6L 24 DHW outlet pipe connection - G 1/4” female
5 Water strainer 25
Refrigerant liquid pipe connection
2.0HP: Ø6.35(1/4”)-2.5~3.0HP: Ø9.52(1/4”)
6 Air purger 26 Refrigerant gas pipe connection Ø15.88 (5/8”)
7 Low water pressure switch 27 Drain port (for indoor unit water)- G3/8”
8 Safety valve 28 Drain port (for DHW)- G3/8”
9 Drain pipe for safety valve 29 Manual air purger
10 Refrigerant strainer (x2) 30 Shutdown valve (Factory supplied)
11 Expansion valve 31 Tank insulation
12 3-way valve (for space heating and DHW) 32 DHW thermistor
13 T-branch (for space heating and DHW) 33 Water inlet thermistor
14 Electrical box 34 Water outlet thermistor
15 Switch for DHW “emergency” operation 35 Water outlet PHEX thermistor
16 Unit controller (Except (-W) models) 36 Refrigerant liquid pipe thermistor
17 Manometer 37 Refrigerant gas pipe thermistor
18 DHW tank (260L) 38 Solar coil inlet connection
19 DHW tank heater + thermostat 39 Solar coil outlet connection
20 Mounting foot (x4)

Table of Contents

Other manuals for Hitachi RASM-2VRE

Related product manuals