EasyManua.ls Logo

Hitachi RASM-2VRE - 8.2 Refrigerant circuit

Hitachi RASM-2VRE
142 pages
Print Icon
To Next Page IconTo Next Page
To Next Page IconTo Next Page
To Previous Page IconTo Previous Page
To Previous Page IconTo Previous Page
Loading...
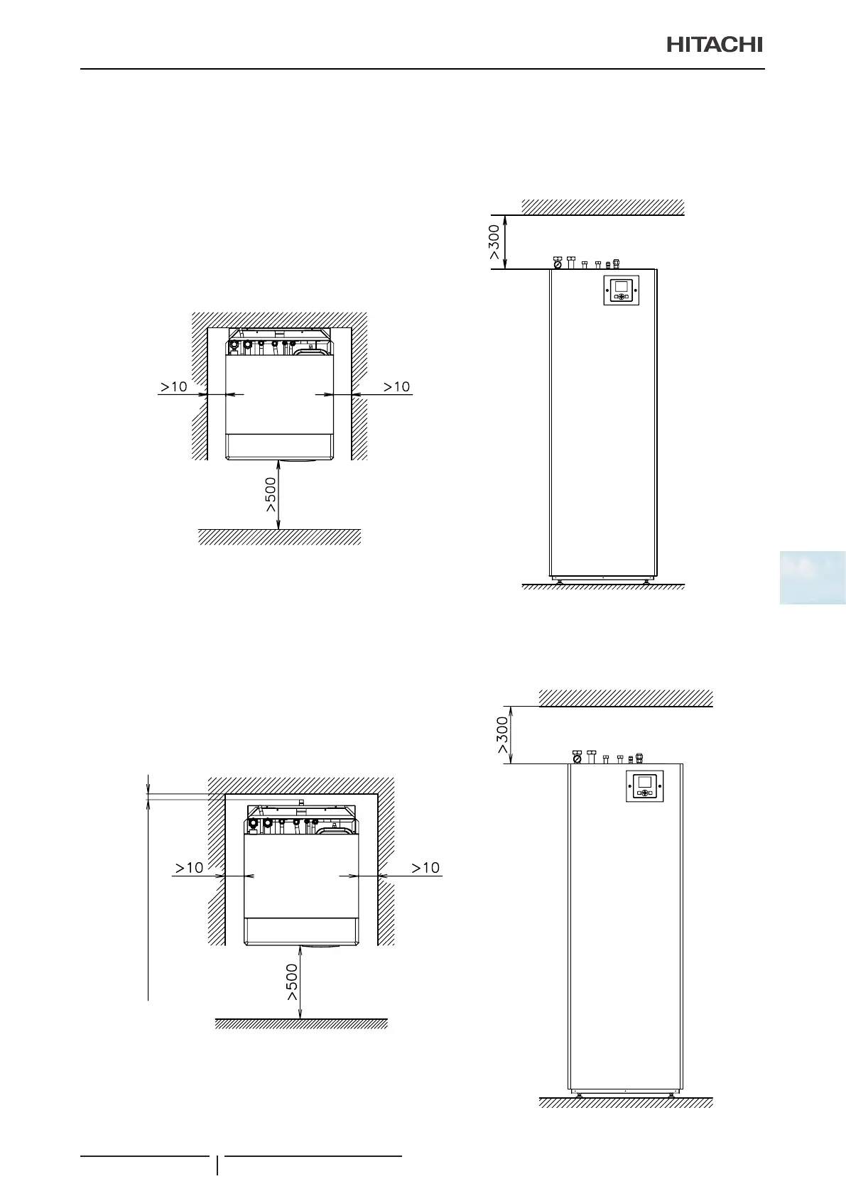
6 General dimensions
Service space
TCGB0123 rev.2 - 10/2019
89
6
6.2.2.2 YUTAKI S COMBI
Standard model and UK market
RWD-(2.0-3.0)NRWE-(200/260)S(-K)(-W)
Top view
Front view
Units in mm.
Model for solar combination
RWD-(2.0-3.0)NRWSE-260S(-W)
Units in mm.
Front view
Top view
>70 mm Min. distance for piping
connection back outlet

Table of Contents

Other manuals for Hitachi RASM-2VRE

Related product manuals