EasyManua.ls Logo

Honeywell T775B2040 - Page 8

Honeywell T775B2040
36 pages
To Next Page IconTo Next Page
To Next Page IconTo Next Page
To Previous Page IconTo Previous Page
To Previous Page IconTo Previous Page
Loading...
T775A/B/M SERIES 2000 ELECTRONIC STAND-ALONE CONTROLLERS
62-0254—13 8
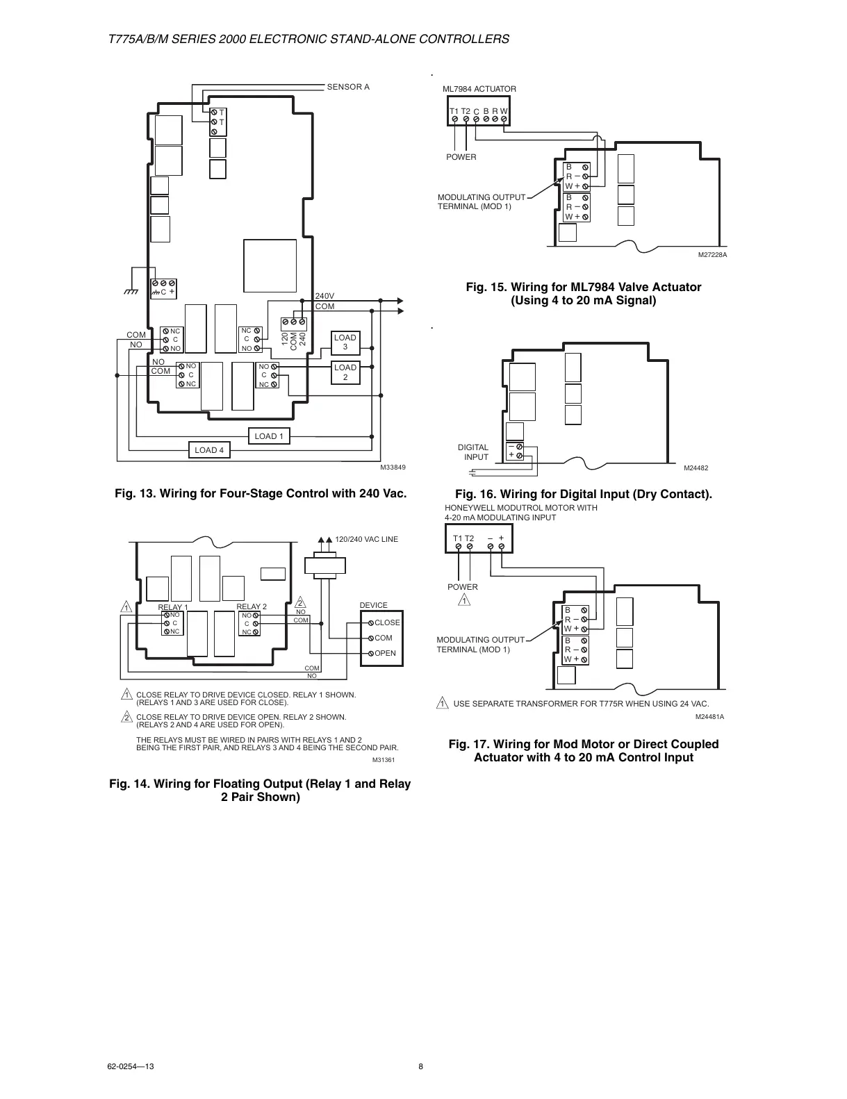
Fig. 13. Wiring for Four-Stage Control with 240 Vac.
Fig. 14. Wiring for Floating Output (Relay 1 and Relay
2 Pair Shown)
.
Fig. 15. Wiring for ML7984 Valve Actuator
(Using 4 to 20 mA Signal)
.
Fig. 16. Wiring for Digital Input (Dry Contact).
Fig. 17. Wiring for Mod Motor or Direct Coupled
Actuator with 4 to 20 mA Control Input
SENSOR A
C
NO
NC
C
NO
NC
C
NC
NO
C
NC
NO
T
T
COM
240V
M33849
LOAD 1
LOAD
3
LOAD
2
COM
NO
LOAD 4
C
+
120
COM
240
COM
NO
C
NO
NC
C
NO
NC
M31361
CLOSE RELAY TO DRIVE DEVICE CLOSED. RELAY 1 SHOWN.
(RELAYS 1 AND 3 ARE USED FOR CLOSE).
CLOSE RELAY TO DRIVE DEVICE OPEN. RELAY 2 SHOWN.
(RELAYS 2 AND 4 ARE USED FOR OPEN).
THE RELAYS MUST BE WIRED IN PAIRS WITH RELAYS 1 AND 2
BEING THE FIRST PAIR, AND RELAYS 3 AND 4 BEING THE SECOND PAIR.
1
2
1
2
120/240 VAC LINE
CLOSE
DEVICE
COM
OPEN
NO
COM
NO
COM
RELAY 1
RELAY 2
M27228A
MODULATING OUTPUT
TERMINAL (MOD 1)
B
R
W
+
B
R
W
+
T1 T2 B WR
C
POWER
ML7984 ACTUATOR
M24482
DIGITAL
INPUT
+
USE SEPARATE TRANSFORMER FOR T775R WHEN USING 24 VAC.
1
M24481A
MODULATING OUTPUT
TERMINAL (MOD 1)
B
R
W
+
B
R
W
+
POWER
1
T1 T2
+
HONEYWELL MODUTROL MOTOR WITH
4-20 mA MODULATING INPUT
All manuals and user guides at all-guides.com

Other manuals for Honeywell T775B2040

Related product manuals