EasyManua.ls Logo

HP DL580 - ProLiant - G4 - Page 93

HP DL580 - ProLiant - G4
109 pages
To Next Page IconTo Next Page
To Next Page IconTo Next Page
To Previous Page IconTo Previous Page
To Previous Page IconTo Previous Page
Loading...
Server component identification 93
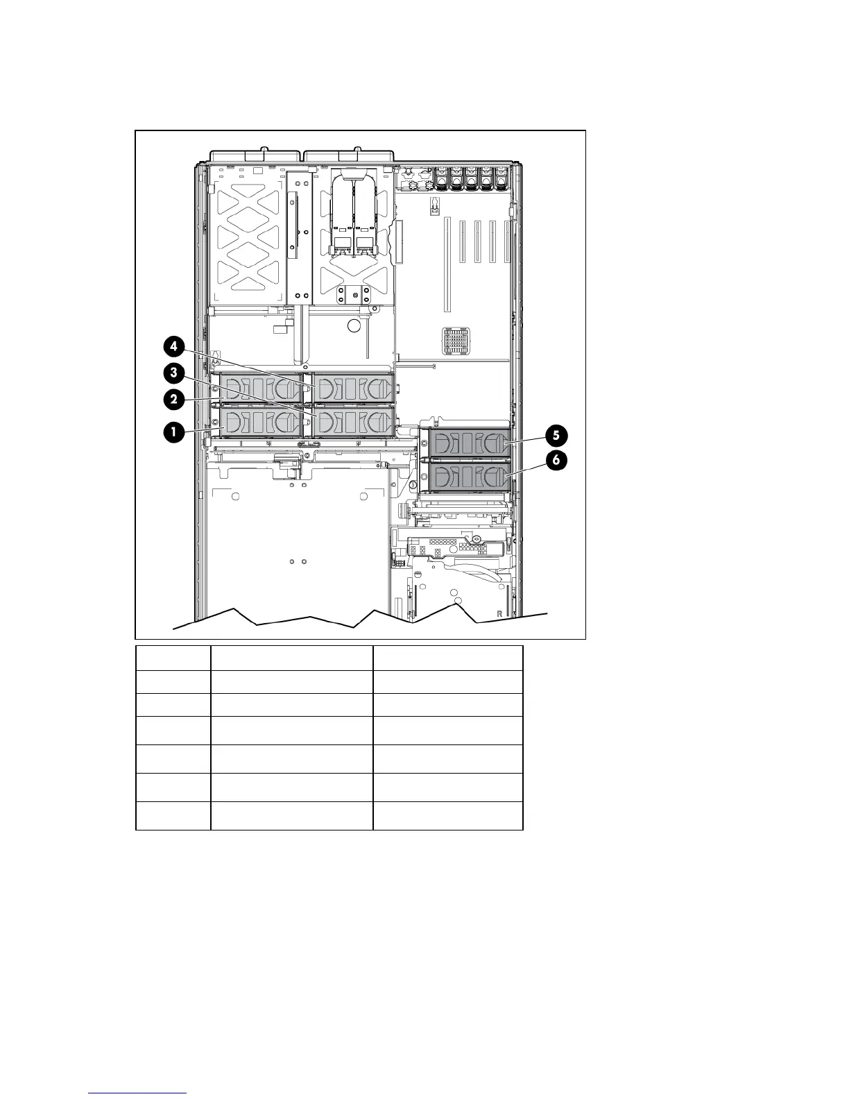
This fan configuration allows the server to continue operating in non-redundant mode if a single fan fails
in either zone. If the system detects two fan failures in the same zone, the server shuts down to avoid
thermal damage.
Item Description Zone
1 Fan 1 1
2 Fan 2 1
3 Fan 3 1
4 Fan 4 1
5 Fan 6 2
6 Fan 5 2

Related product manuals