EasyManua.ls Logo

HT COMBI420 - 14 Practical Reports for Electrical Tests; Continuity Measurement on Protective Conductors; Purpose of the Test; Installation Parts to be Checked

Default Icon
88 pages
Print Icon
To Next Page IconTo Next Page
To Next Page IconTo Next Page
To Previous Page IconTo Previous Page
To Previous Page IconTo Previous Page
Loading...
400 Series
EN - 70
14. PRACTICAL REPORTS FOR ELECTRICAL TESTS
14.1. CONTINUITY MEASUREMENT ON PROTECTIVE CONDUCTORS
14.1.1. Purpose of the test
Check the continuity of:
Protective conductors (PE), main equalizing potential conductors (EQP), secondary
equalizing potential conductors (EQS) in TT and TN-S systems
Neutral conductors having functions of protective conductors (PEN) in TN-C system.
This test is to be preceded by a visual check verifying the existence of yellow-green
protective and equalizing potential conductors as well as compliance of the §s used with
the standards’ requirements.
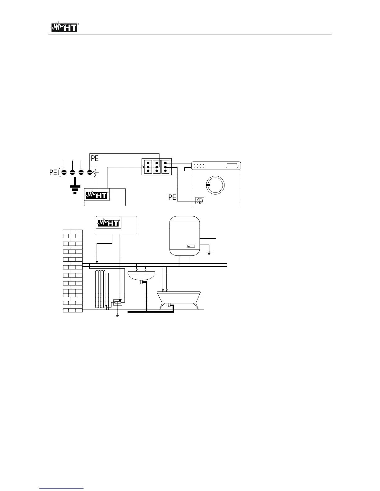
14.1.2. Installation parts to be checked
Connect one of the test lead to
the protective conductor of the
socket and the other to the
equalising potential node of the
earth installation.
Connect one of the test lead to
the external mass (in this case
the water pipe) and the other to
the earth installation using for
example the protective
conductor of the closest socket.
Fig. 33: Examples for continuity measurement on conductors
Check the continuity among:
earth poles of all the plugs and earth collector or node
earth terminals of class I instruments (boiler etc.) and earth collector or node
main external masses (water, gas pipes etc.) and earth collector or node
auxiliary external masses to the earth terminal.
14.1.3. Allowable values
The standards do not give any indication on the maximum resistance values which cannot
be overcome, in order to be able to declare the positive outcome of the continuity test. The
standards simply require that the instrument in use warns the operator if the test was not
carried out with a current of at least 0,2A and an open circuit voltage ranging from 4 to 24V.
The resistance values can be calculated according to the §s and lengths of the conductors
under test, anyway if the instrument detects values of some ohm the test can be
considered as passed.

Table of Contents

Related product manuals