EasyManua.ls Logo

HTP EFT-199 - Page 36

Default Icon
76 pages
Print Icon
To Next Page IconTo Next Page
To Next Page IconTo Next Page
To Previous Page IconTo Previous Page
To Previous Page IconTo Previous Page
Loading...
LP-387 Rev. 7.3.15
36
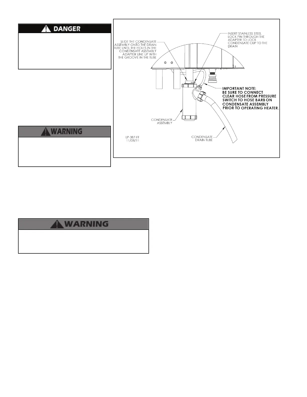
Figure 25 - Condensate Trap Installation
Condensate Trap Installation Instructions
The condensate trap assembly MUST BE
PROPERLY INSTALLED according to these
instructions when operating the boiler.
Operating the boiler without the condensate
trap assembly will cause ue gases to leak
and result in serious personal injury or death.
1. Ensure all parts shown in Figure 24,
Condensate Detail, are included with the
condensate trap. If any parts are missing,
DO NOT install the trap. Replace the entire
condensate assembly.
NOTE: Before installation, clean out the
condensate collector with water to remove
any foreign matter that may block the
condensate line.
Do not install the condensate assembly if
a component is lost or missing. Replace
the entire assembly. Failure to follow this
warning could result in property damage,
serious personal injury, or death.
2. NOTE: The installer should ll the condensate trap with tap
water prior to assembly on the boiler.
3. Slide the condensate trap adapter onto the drain tube until
the holes line up with the groove.
4. Insert stainless steel lock pin to lock condensate adapter to
the drain tube.
5. Connect the clear hose from the pressure switch to the hose
barb.
Do not operate the boiler without the clear hose attached
from the hose barb to the pressure switch. Failure to follow
this warning could result in property damage, serious personal
injury, or death.
NOTE: The use of ¾” PVC or CPVC pipe are acceptable materials
for condensate piping. However, use materials approved by the
authority having jurisdiction.
In the absence of other authority, PVC and CPVC pipe must
comply with ASTM D1785 or D2845. Cement and primer must
comply with ASME D2564 or F493. For Canada, use CSA or ULC
certied PVC or CPVC pipe, ttings, and cement. If pipe is used,
deburr and chamfer pipe to allow proper mating to the drainage
assembly.
5. Run condensate drain hose to 1” PVC or CPVC drain pipe. See
Figure 26.
NOTE: DO NOT cement drain hose to the PVC drainage pipe!
NOTE: To allow for proper drainage on long horizontal runs, a
second line vent may be required and tubing size may need to
increase to 1”. Failure to add a second vacuum break could result
in condensate backup, improper boiler operation, and nuisance
shutdowns.
NOTE: See Part 14, this manual, for instructions on how to
maintain the condensate trap.
Condensate Neutralization
Condensate from the boiler is slightly acidic with a pH of 3.2 -
4.5. To avoid long term damage to the drainage system and to
meet local code requirements, HTP recommends neutralizing
the condensate with a Condensate Neutralizer Kit (Part #
7450P-212). The neutralizer kit connects to the drain system
and contains limestone chips that neutralize the pH level
of the water vapor. The neutralizer kit should be checked
annually and the limestone chips replenished if necessary.
When replacing the limestone chips, take care to ensure chips
are no smaller than ½” to avoid blockage in condensate piping
(for piping details, refer to condensate neutralizer installation
instruction.)

Table of Contents