EasyManua.ls Logo

Hunter 22459 - Preparing the Fan Site; Step 1: Choose the Fan Site

Hunter 22459
17 pages
Print Icon
To Next Page IconTo Next Page
To Next Page IconTo Next Page
To Previous Page IconTo Previous Page
To Previous Page IconTo Previous Page
Loading...
3
42600-01 • 06/22/10 • Hunter Fan Company
Preparing the Fan Site
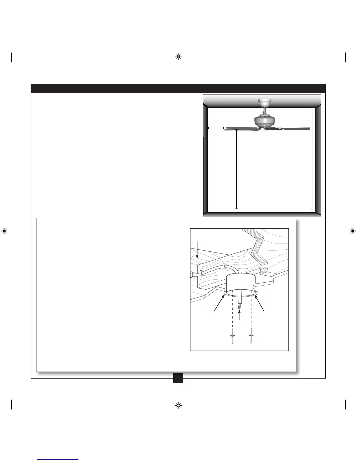
7’ Minimum
Blades to
Floor
8’ Minimum
Ceiling
Height
30” From
Wall or
Nearest
Obstruction
Step 1 - Choose the Fan Site
Proper ceiling fan location and attachment to the building
structure are essential for safety, reliable operation, maximum
efficiency, and energy savings.
Choose a fan site where:
• No object can come in contact with the rotating fan blades during
normal operation.
• e fan blades are at least 7 feet above the floor and the ceiling is
at least 8 feet high.
• e fan blades have no obstructions to airflow, such as walls or
posts, within 30 inches of the fan blade tips.
• e fan is directly below a joist or support brace that will hold the
outlet box and the full weight of the fan.
Checklist for Existing Fan Site
If you want to use an existing fan site, complete the following checklist to
determine if the site is acceptable and safe for your new Hunter fan. If you
cannot check off every item, prepare a new fan site as described on this
page.
Fan Support System
Fan attaches directly to building structure.
• Fan support system will hold full weight of the fan and light kit.
Ceiling Hole
• e outlet box clearance hole is directly below the joist or support brace.
Outlet Box
• e outlet box is an UL-approved octagonal 4” x 1-1/2” outlet box (or as
specified by the support brace manufacturer).
• e outlet box is secured to the joist or support brace by wood screws
and washers through the inner holes of outlet box.
• e outer holes of the outlet box are aligned with joist or support brace.
• e bottom of the outlet box is recessed a minimum of 1/16” into
ceiling.
Wiring
• e electrical cable is secured to outlet box by an approved connector.
• Six inches of lead wires extend from outlet box.
If your existing fan site is suitable, skip ahead to Section 2 • Installing the
Ceiling Plate.
Suitable Existing Fan Site
Fan Support
System
Fan Support
System
Wiring
Outlet Box

Other manuals for Hunter 22459

Related product manuals