EasyManua.ls Logo

Hydropool SS13FFPAP - Installa on Examples; Equipment Accessibility & Protec on; Equipment Placement

Hydropool SS13FFPAP
65 pages
Print Icon
To Next Page IconTo Next Page
To Next Page IconTo Next Page
To Previous Page IconTo Previous Page
To Previous Page IconTo Previous Page
Loading...
11
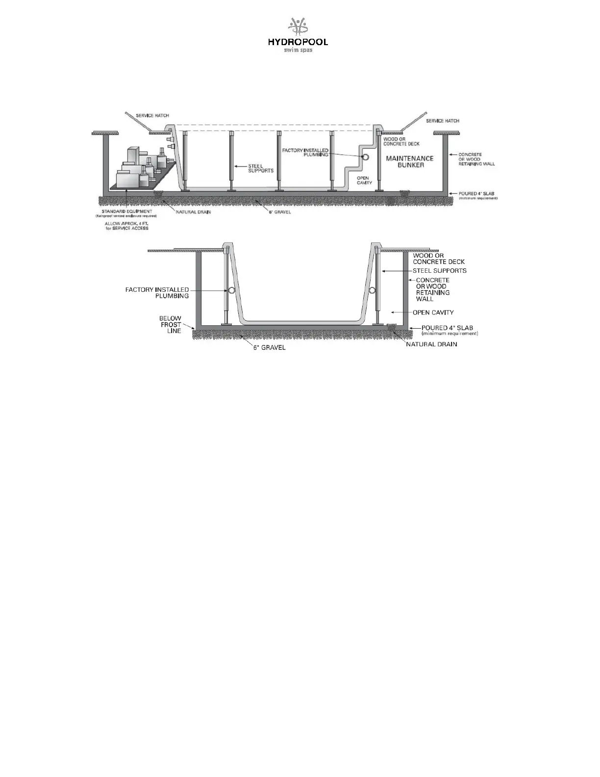
SITE PREPARATION CONTINUED
INSTALLATION EXAMPLES
EQUIPMENT ACCESSIBILITY & PROTECTION
The equipment must be located in an area where it will remain dry and will not be exposed to rain, snow or ground water.
When your swim spa is to be installed above ground, the oponal factory cabinet is designed for both protecon and
accessibility
• When your swim spa is to be installed fully or parally in the ground, or if you have ordered a swim spa without a cabinet: it
is necessary that the equipment be installed in an area that is dry, protected from the elements, has proper venlaon, and is
easily accessible for service
Always ensure that the equipment is mounted on a raised base or plaorm to prevent potenal water damage to the
motors, equipment or controls. Note that the equipment is supplied on a raised composite support equipment plaorm.
Ensure that access to the equipment, and the working area around the equipment, is large enough to accommodate a
service person
• The equipment should be located as close to the swim spa as possible to maximize jet performance
Whenever possible, install the pump(s) and control with heater below water level to ensure easy priming and maximize
performance.
Install protecve waterproof conduit to house applicable cords or line extensions such as the topside control cables, light
wires or ozone tubing.
In climates where freeze/thaw occurs we recommend that remote plumbing lines be buried below the frost line and that
pipe insulaon is applied over all pipes that run from the swim spa to the remote equipment to help maintain energy
efficiency.
EQUIPMENT PLACEMENT
• The equipment should be located as close to the swim spa as possible to maximize jet performance
• Whenever possible, install the pump(s) and control with heater below water level to ensure easy priming
• Piping diameter on pump lines must be 2.5 in. for inlet/ sucon pipes and 2 in. for outlet/pressure pipes with minimal use of
elbows.
Install protecve waterproof conduit to house applicable cords or line extensions such as the topside control cables, light
wires or ozone tubing.
The swim spa equipment is designed for indoor use out of the direct elements. Your custom enclosure or other structure
must be designed to provide protecon for the swim spa support equipment from rain, snow, splash water, etc., but sll
designed in a manner to ensure adequate venlaon.
All eld installed plumbing must meet minimum sizes as previously outlined in order to conform to regulated standards
regarding safe inlet and outlet flows. If required, please call your dealer for more detailed drawings.

Table of Contents

Related product manuals