EasyManua.ls Logo

IBM Power Systems Series - Page 146

IBM Power Systems Series
206 pages
Print Icon
To Next Page IconTo Next Page
To Next Page IconTo Next Page
To Previous Page IconTo Previous Page
To Previous Page IconTo Previous Page
Loading...
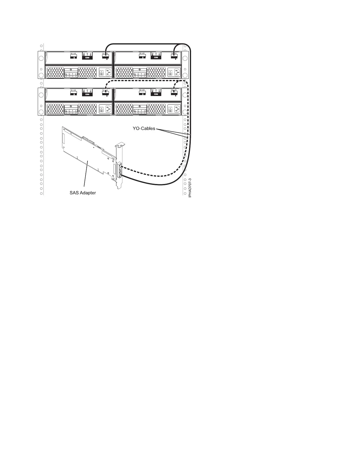
Note: The YO cable must be routed along the right side of the rack frame.
Figure 61. SAS adapter to two disk expansion drawers
130 Site and hardware planning

Table of Contents

Other manuals for IBM Power Systems Series

Related product manuals