EasyManua.ls Logo

IBM RS/6000 7014-S00 - Power Distribution Bus

IBM RS/6000 7014-S00
156 pages
To Next Page IconTo Next Page
To Next Page IconTo Next Page
To Previous Page IconTo Previous Page
To Previous Page IconTo Previous Page
Loading...
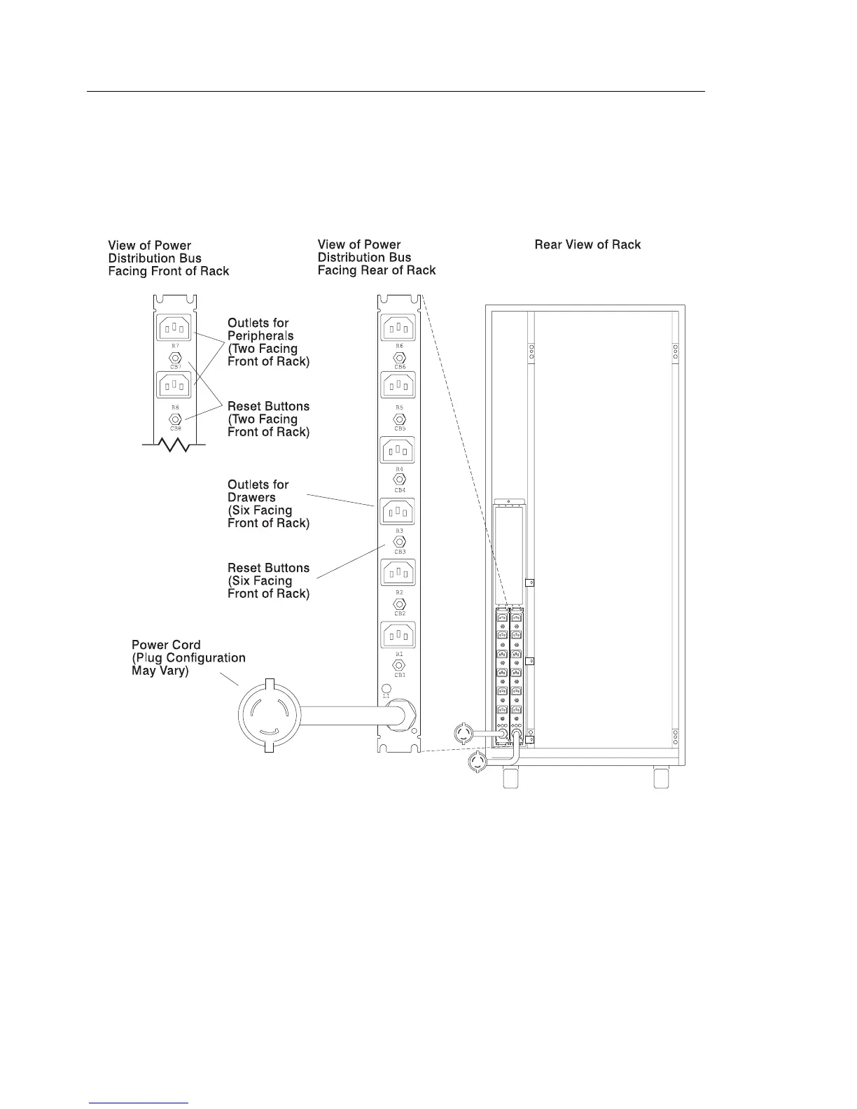
Power Distribution Bus
A Model S00 rack may contain one or two power distribution busses (PDBs). A PDB
contains eight unswitched 200 V to 240 V AC outlets for providing power to all the
devices and drawers in the rack. Each outlet is connected to a separate circuit
breaker for protection against excessive currents.
1-2 7014 Model S00 Rack Installation and Service Guide

Related product manuals