EasyManua.ls Logo

IBM RS/6000 7014-S00 - Page 19

IBM RS/6000 7014-S00
156 pages
Print Icon
To Next Page IconTo Next Page
To Next Page IconTo Next Page
To Previous Page IconTo Previous Page
To Previous Page IconTo Previous Page
Loading...
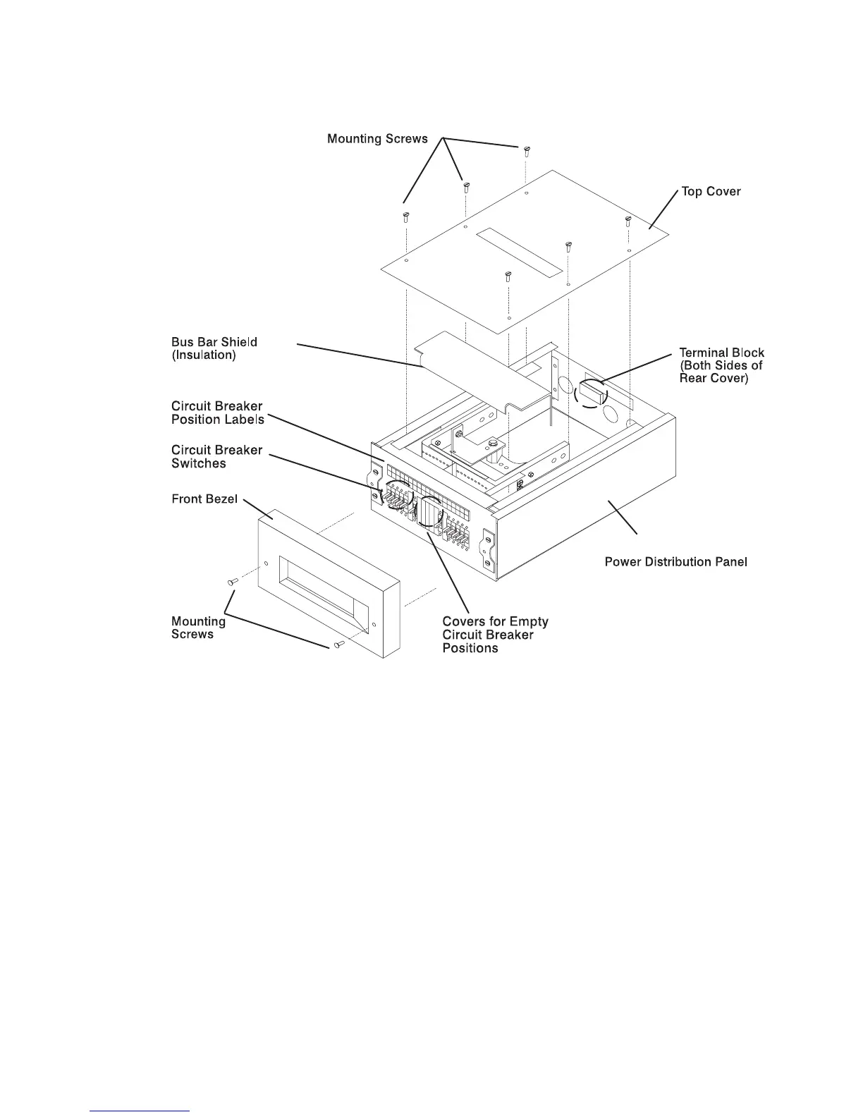
Power Distribution Panel (Front View)
Chapter 1. Reference Information 1-7

Related product manuals