EasyManua.ls Logo

IDEC MICROSmart FC6A-C24R1CE - Page 249

IDEC MICROSmart FC6A-C24R1CE
662 pages
Print Icon
To Next Page IconTo Next Page
To Next Page IconTo Next Page
To Previous Page IconTo Previous Page
To Previous Page IconTo Previous Page
Loading...
FC6A S
ERIES
MICROS
MART
U
SER
S
M
ANUAL
FC9Y-B1722 3-17
3: I
NSTALLATION
AND
W
IRING
Example:
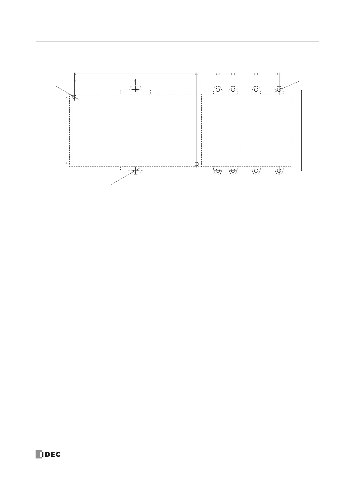
Mounting hole layout for FC6A-C40R1AE, FC6A-N32B3, FC6A-T16K3, FC6A-F2MR1, and C6A-L06A1
83.0
151.0
2-Ø4.3
2-Ø4.5
28.3
±0.2
18.9
±0.2
26.1
±0.2
75.5
100.0
8-Ø4.5
28.5
±0.2
All dimensions in mm.

Table of Contents

Other manuals for IDEC MICROSmart FC6A-C24R1CE

Related product manuals