EasyManua.ls Logo

Idex FAST & FLUID Galileo

Default Icon
82 pages
Go to English
To Next Page IconTo Next Page
To Next Page IconTo Next Page
To Previous Page IconTo Previous Page
To Previous Page IconTo Previous Page
Loading...
FAST & FLUID MANAGEMENT
A Unit of Idex Corporation
Galileo
8
0
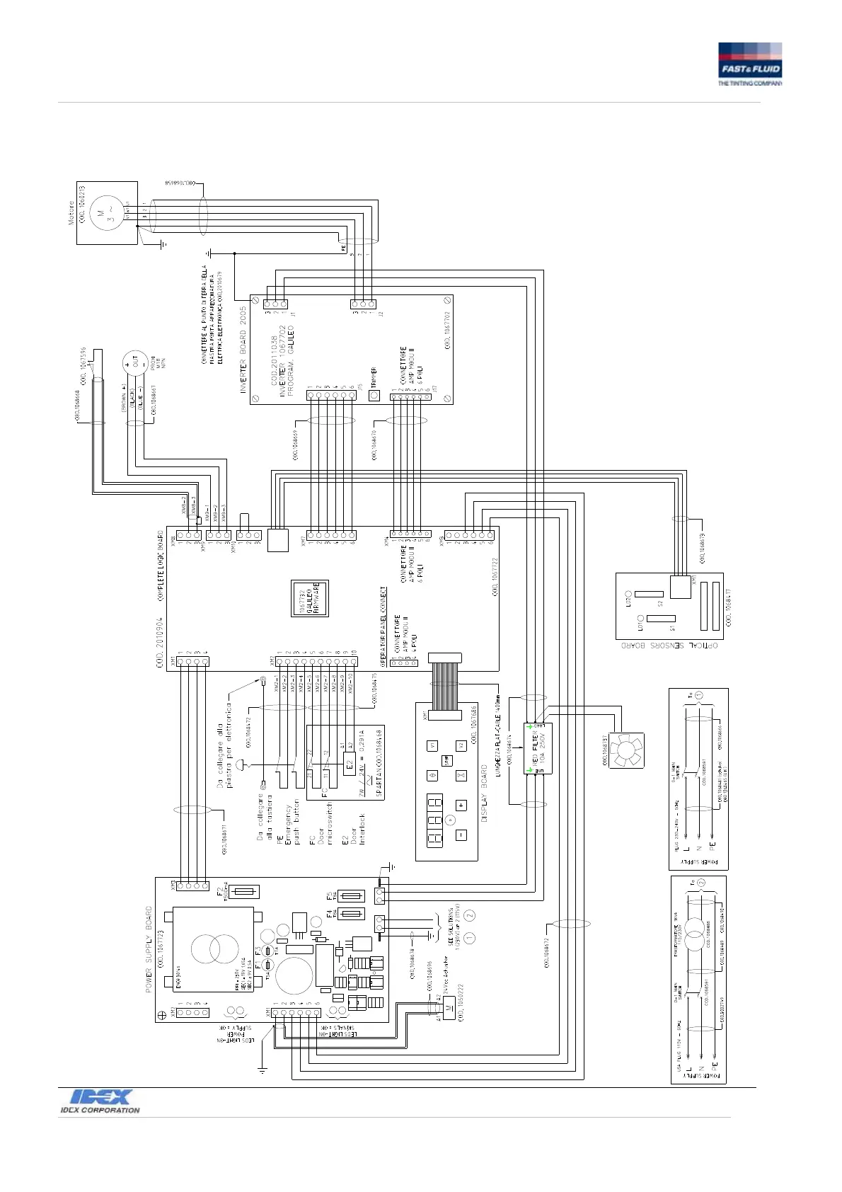
13. EI-DIAGRAM 115 V – 230 V

Table of Contents