EasyManua.ls Logo

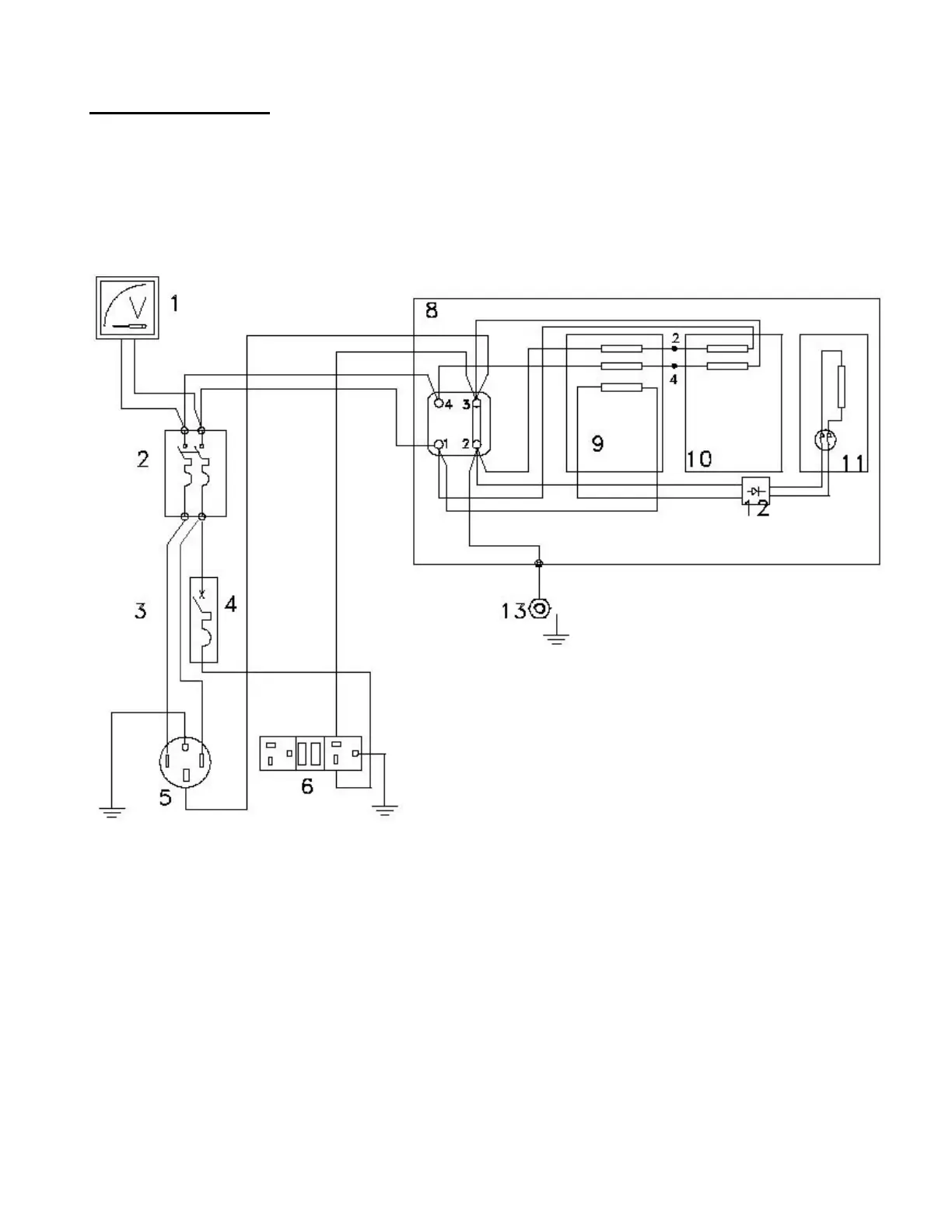
IMD PTO15/2S - Wiring Diagrams; PTO10;2 S Wiring Diagram

IMD PTO15/2S
19 pages
Print Icon
To Next Page IconTo Next Page
To Next Page IconTo Next Page
To Previous Page IconTo Previous Page
To Previous Page IconTo Previous Page
Loading...
Page 18
Wiring Diagrams:
Wiring Diagram PTO10/2S: