EasyManua.ls Logo

IMER STEP 120 - Page 106

IMER STEP 120
Print Icon
To Next Page IconTo Next Page
To Next Page IconTo Next Page
To Previous Page IconTo Previous Page
To Previous Page IconTo Previous Page
Loading...
106
IMER INTERNATIONAL S.p.A.
STEP 120
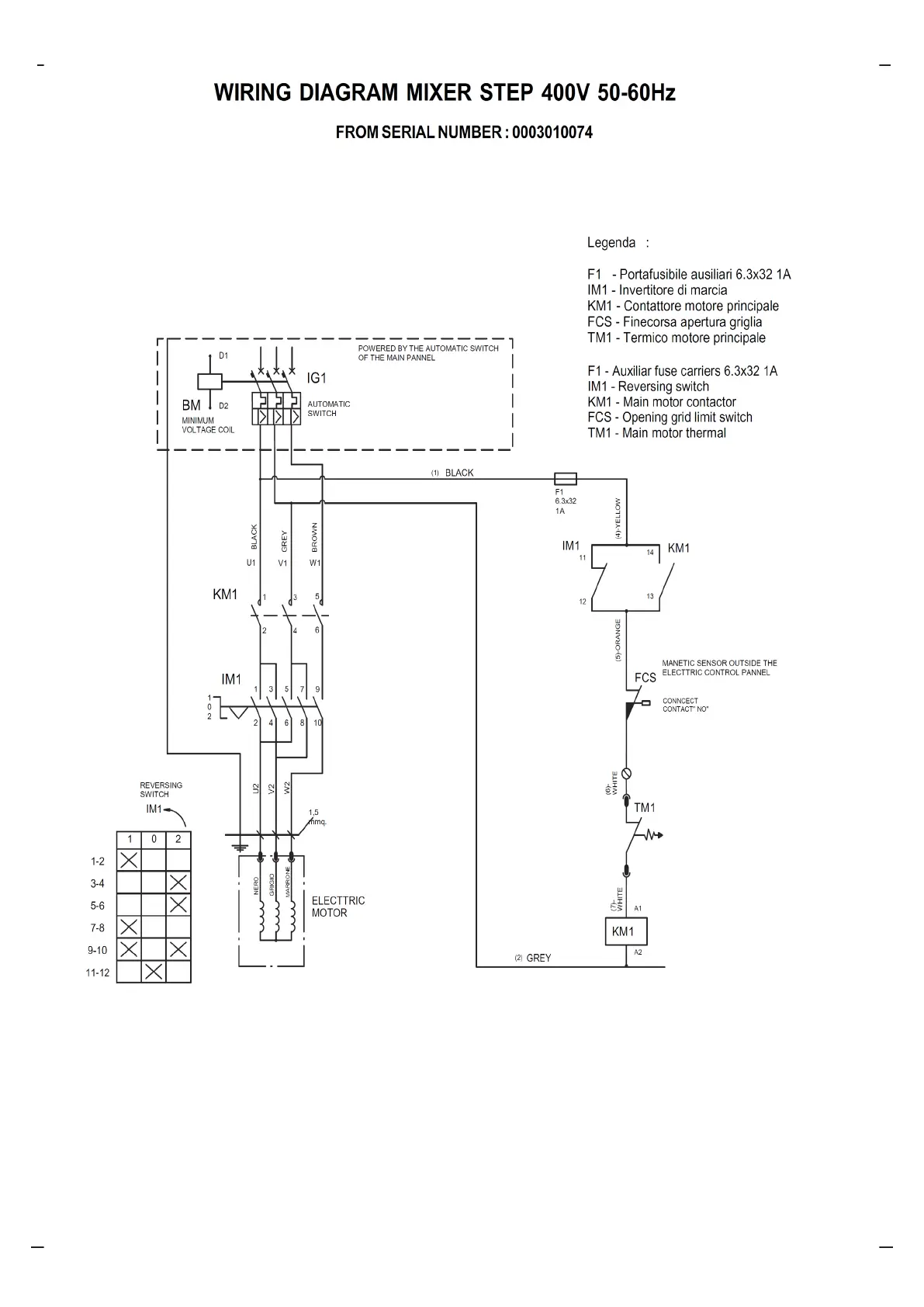
WIRING DIAGRAM MIXER STEP 400V 50-60Hz
FROM SERIAL NUMBER : 0003010074

Related product manuals