EasyManua.ls Logo

IMER SYNTESI 350 - Page 31

Default Icon
Print Icon
To Next Page IconTo Next Page
To Next Page IconTo Next Page
To Previous Page IconTo Previous Page
To Previous Page IconTo Previous Page
Loading...
IMER INTERNATIONAL S.p.A.
SYNTESI 190 - 250 - 300 - 350 EL
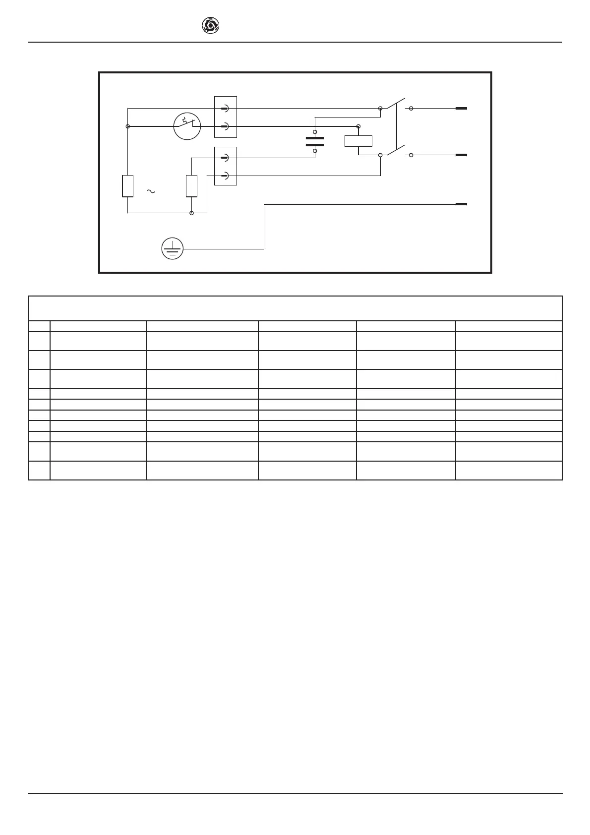
31
24
A1
u<
S1
14
C1
23
13
F2
L1
N
PE
AA
AM
X1
M1
SCHEMA ELETTRICO MONOFASE - SCHMA LECTRIQUE MONOPHAS - SINGLE-PHASE WIRING DIAGRAM
STROMLAUFPLAN EINPHASENVERSORGUNG - ESQUEMA ELÉCTRICO MONOFÁSICO
RIF. I F GB D E
PE
CONDUTTORE DI
PROTEZIONE
CONDUCTEUR DE PROTECTION PROTECTION WIRE SCHUTZLEITER
CONDUCTOR DE LÍNEA
PROTECCIÒN
N
CONDUTTORE LINEA
NEUTRO
CONDUCTEUR LIGNE NEUTRE NEUTRAL LINE CABLE NULLEITER
CONDUCTOR DE LA LÍNEA DEL
NEUTRO
L1 CONDUTTORE LINEA FASE CONDUCTEUR LIGNE PHASE PHASE LINE CONDUCTOR PHASENLEITER
CONDUCTOR DE LA LÍNEA DE
FASE
S1 INTERRUTTORE COMANDO INTERRUPTEUR DE COMMANDE CONTROL SWITCH SCHALTER INTERRUPTOR DE MANDO
F2 PROTEZIONE TERMICA 3527(&7,217+(50,48( THERMAL PROTECTION WÄRMESCHUTZ PROTECCIÓN TÉRMICA
X1 MORSETTIERA MOTORE BRIDES MOTEUR MOTOR TERMINAL STRIP KLEMMLEISTE MOTOR CAJA DE BORNES MOTOR
C1 CONDENSATORE CONDENSATEUR CAPACITOR KONDENSATOR CONDENSADOR
M1 MOTORE MOTEUR MOTOR MOTOR MOTOR
AM
AVVOLGIMENTO MOTORE
MARCIA
ENROULEMENT DU MOTEUR DE
MARCHE
MOTOR RUNNING WINDING MOTORWICKLUNG BETRIEB
ENROLLAMIENTO MOTOR
MARCHA
AV
AVVOLGIMENTO MOTORE
AVVIAMENTO
ENROULEMENT DU MOTEUR DE
DÉMARRAGE
MOTOR START WINDING MOTORWICKLUNG START
ENROLLAMIENTO MOTOR
$55$148(

Related product manuals