EasyManua.ls Logo

Inoxtrend GCA-304E2 - Page 4

Inoxtrend GCA-304E2
40 pages
Print Icon
To Next Page IconTo Next Page
To Next Page IconTo Next Page
To Previous Page IconTo Previous Page
To Previous Page IconTo Previous Page
Loading...
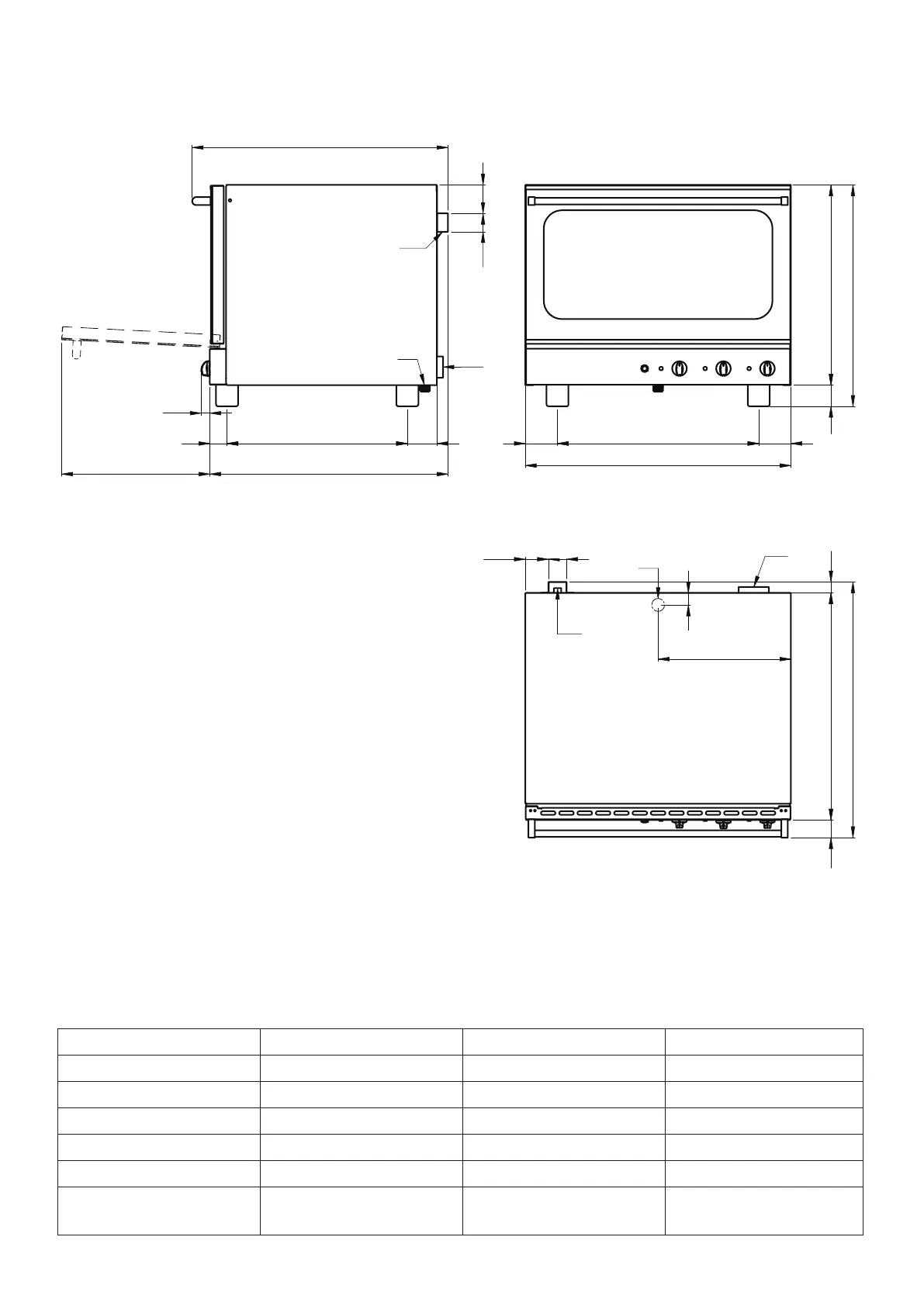
A
D
B
620
48
698
30
33
362
63 50
58
547
605
8854988
725
8149247
23
404
698
650
78
50
B
A
D
4 x 60x40
Dimensioni Capacità Distanza teglie Peso a vuoto
Dimensions Capacity Trays distance Empty weight
Abmessungen Kapazität Einschubabstand Leergewicht
Dimensions Capacité Ecartement grilles Poids à vide
Dimensiones Capacidad Distancia bandejas Peso en vacío
Afmetingen Capaciteit Afstand dienbladen Leeggewicht
mm 725 x 677 x h 600 4 x 60x40 70 mm 52 kg
4

Related product manuals