EasyManua.ls Logo

Insinger CA-3 - Page 47

Insinger CA-3
52 pages
Print Icon
To Next Page IconTo Next Page
To Next Page IconTo Next Page
To Previous Page IconTo Previous Page
To Previous Page IconTo Previous Page
Loading...
45
®
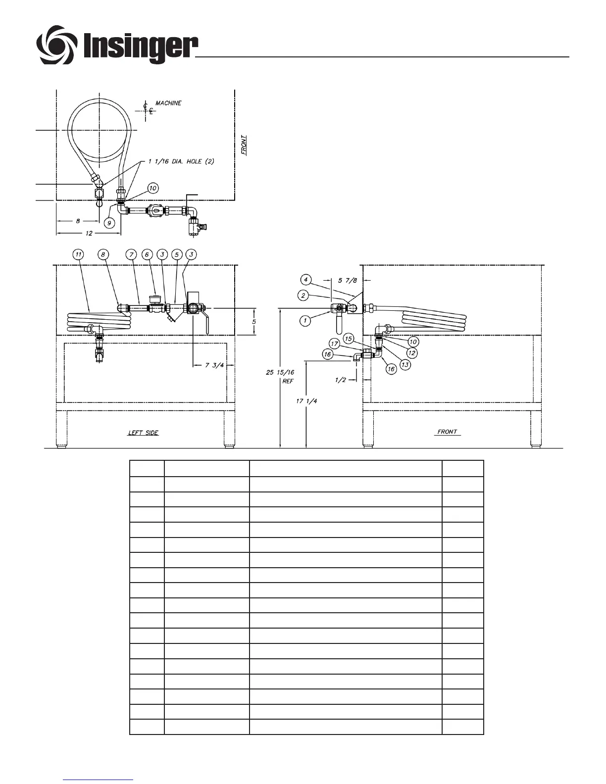
PART 6 PARTS & ASSEMBLIES
CA-3 & DA-3 Technical Manual 2018 www.insingermachine.com 800-344-4802
1172-49 : Steam Coil (Solenoid Operated)
ITEM PART NO. DESCRIPTION QTY
1 D-2340 Ball Valve 3/4” IPS 1
2 D316F-E1-E2 90
O
Street Elbow 3/4” IPS 1
3 D314F-EC-00 Close Nipple 2
4 562-115 (DWG.) Steam Pipe Bracket 1
5 D-2482 “Y” Strainer 3/4” IPS 1
6 D-2595 Solenoid 3/4” IPS 1
7 D314F-ES-36 Nipple 3/4” IPS x 4 1/2” Lg. 1
8 D316F-E1-F1 90
O
Elbow 3/4” IPS 1
9 D314F-EA-16 Nipple 3/4” IPS x 2 Lg. (All Thread) 1
10 D326F-F1 Lock Nut 3/4” IPS 2
11 704-33A (DWG.) Steam Coil - Copper (#704-33 = Coil) 1
12 D314F-EA-12 Nipple 3/4” IPS x 1 1/2” Lg. (All Thread) 1
13 D321F-E1-D1 Coupling Reducing 3/4” FIPS x 1/2” FIPS 1
14 - - -
15 D314F-DC-00 Close Nipple 1/2” IPS 1
16 D316F-D1-D2 90
O
Street Elbow 1/2” MIPS x 1/2” FIPS 2
17 D-2102A Steam Trap 1/2” IPS 1
REV B - 10/19/01

Other manuals for Insinger CA-3