EasyManua.ls Logo

Intellitec SMART EMS - Page 8

Intellitec SMART EMS
16 pages
Print Icon
To Next Page IconTo Next Page
To Next Page IconTo Next Page
To Previous Page IconTo Previous Page
To Previous Page IconTo Previous Page
Loading...
1485 Jacobs Rd.
Deland, FL 32724
386.738.7307
P/N 53-00549-100 Rev. C 032619
www.intellitec.com
Intellitec
SERVICE MANUAL
SMART EMS
TM
The 12 VDC voltage connections are made through the 8 pin Mate-N-Lok plug on the low voltage side of the control
module. The connections are as follows:
1 + 12 Volts
2 Ground
3 Relay 4 Normally Open
4 Relay 4 Common
5 Relay 4 Normally Closed
6 Relay 5 Normally Open
7 Relay 5 Common
8 Relay 5 Normally Closed
The +12 volts should be supplied from a source fused at 3 Amps minimum and capable of delivering up to 1 Amp of
AVERAGE current. Protecting this connection with a higher rated fuse is acceptable since the EMS is internally protected
with a 3 Amp fuse.
The relay connections are typically made to the thermostat wires of the air conditioners. The normally open contacts are
wired in "series" with the thermostat. This means that the thermostat wire is cut and the two ends are wired to the Common
and the Normally Open contacts of the relay/s. In this way, the EMS can interrupt the operation of the compressor, just as
the thermostat does. The low voltage wires are brought into the box through the large hole in the lower right-hand corner of
the back of the box.
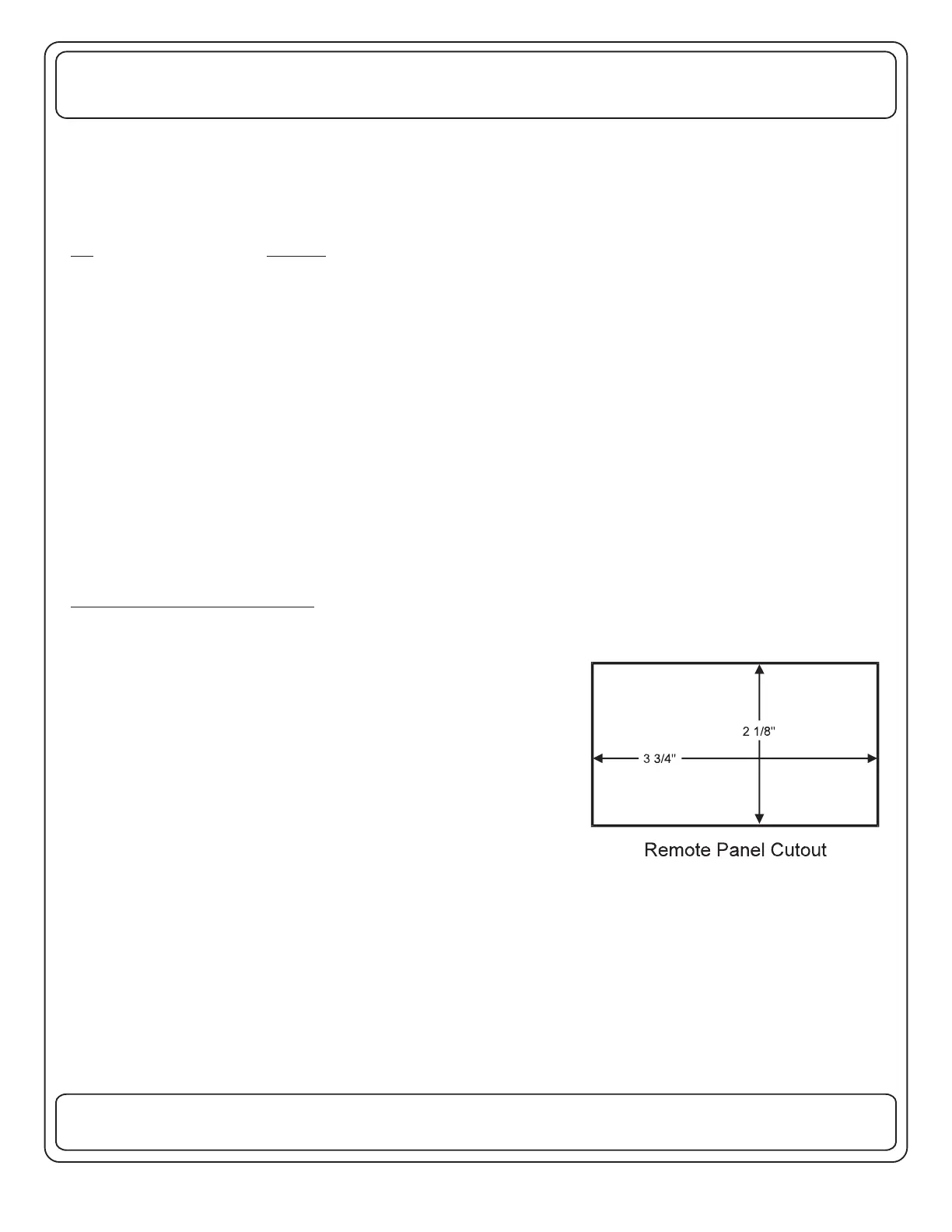
If a remote panel is to be used in the installation, it should be installed now.
Select a convenient location for the panel, where it can be easily viewed by
the owner. Cut a hole for the panel as shown.
Route the harness from the hole for the display panel to the EMS (up to 40
feet of cable is acceptable). Plug the cable into the EMS, assuring it is
properly seated on all four pins. (Note: This cable is polarized, the latches
of each end of the connector mate to each other, and will go on easily in the
right direction, but can be forced on in the reverse direction.)
Now the EMS should be moved into the mounting hole, being careful not
pinch any of the wires. It should be screwed in place using four # 8, round
head screws into the 4 holes in the side flanges. The front covers should
be screwed into place with 4 screws into the holes in the top and bottom
flanges.
The Remote Panel should be plugged onto the harness observing the polarity as before. The panel should then be
installed in the hole and screwed in place using two # 6, flat head screws through the holes in the panel. The white function
label should be lettered to correspond to the order of load shedding and installed. The cover label should be placed
against the front panel in the trim bezel snapped on to hold the label in place.
Pin Function
OPTIONAL REMOTE PANEL

Related product manuals