EasyManua.ls Logo

Inverter MINI SPLIT - Installation Dimension Diagram

Inverter MINI SPLIT
48 pages
Print Icon
To Next Page IconTo Next Page
To Next Page IconTo Next Page
To Previous Page IconTo Previous Page
To Previous Page IconTo Previous Page
Loading...
26
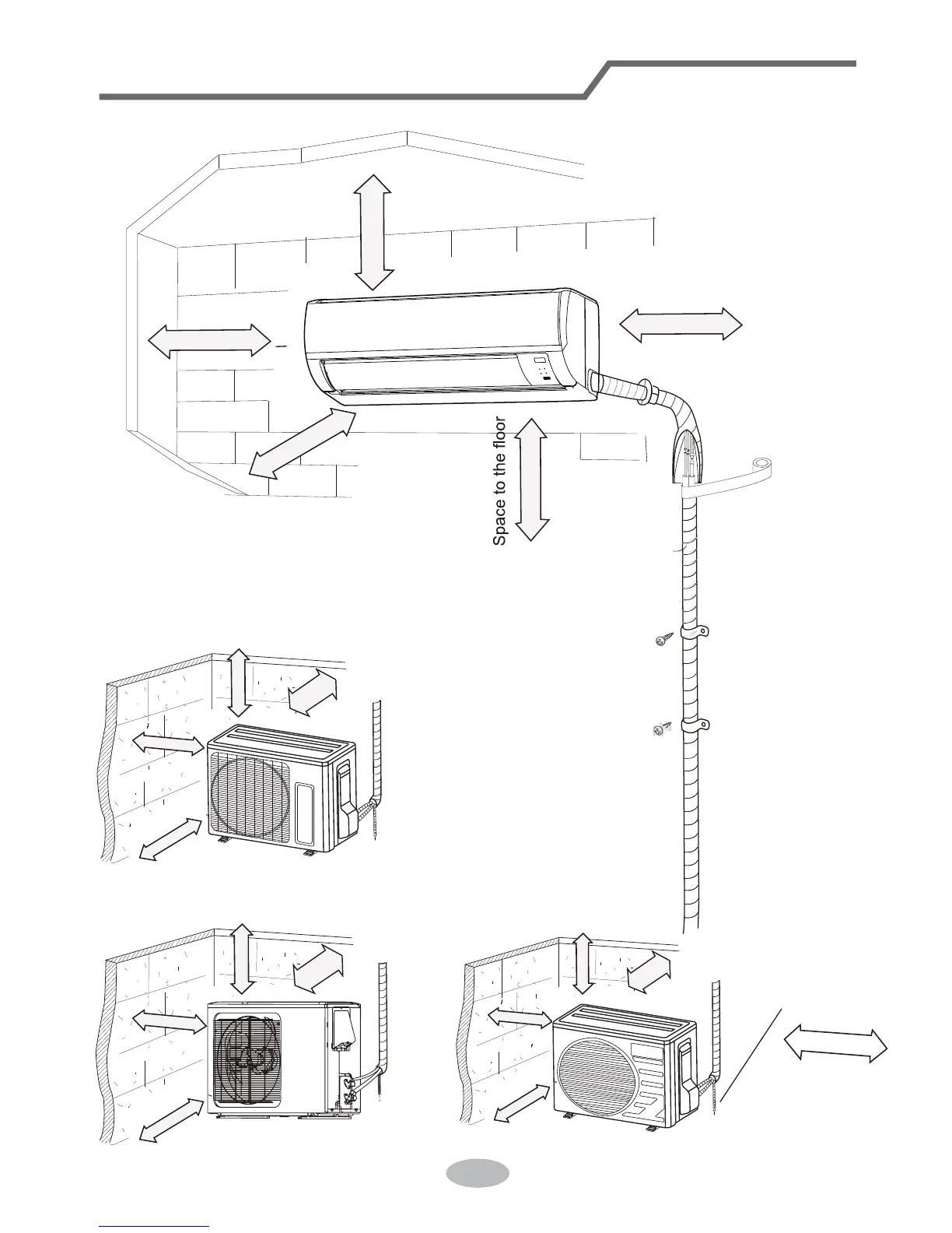
Installation dimension diagram
8ft (2,4m)
6in (0,15m)
20in (0,5m)
12in
(0,3m)
115in (3m)
80in (2,03m)
Space to the obstruction
Space to the
obstruction
Space to the ceiling
Space to the obstruction
Space to the obstruction
12in (0,3m)
6in (0,15m)
6in (0,15m)
Space to the wall
Space to the wall
Space to the wall
Drainage pipe
20in (0,5m)
Space to the
obstruction
20in (0,5m)
12in
(0,3m)
80in (2,03m)
Space to the obstruction
Space to the
obstru
ction
Space to the obstruction
12in (0,3m)
Space to the wall
20in (0,5m)
12in
(0,3m)
80in (2,03m)
Space to the obstruction
Space to the
obstruction
Space to the obs
tru
ction
12in (0,3m)
Space to the wall