EasyManua.ls Logo

IPC Gansow 1010 E - Page 42

IPC Gansow 1010 E
Print Icon
To Next Page IconTo Next Page
To Next Page IconTo Next Page
To Previous Page IconTo Previous Page
To Previous Page IconTo Previous Page
Loading...
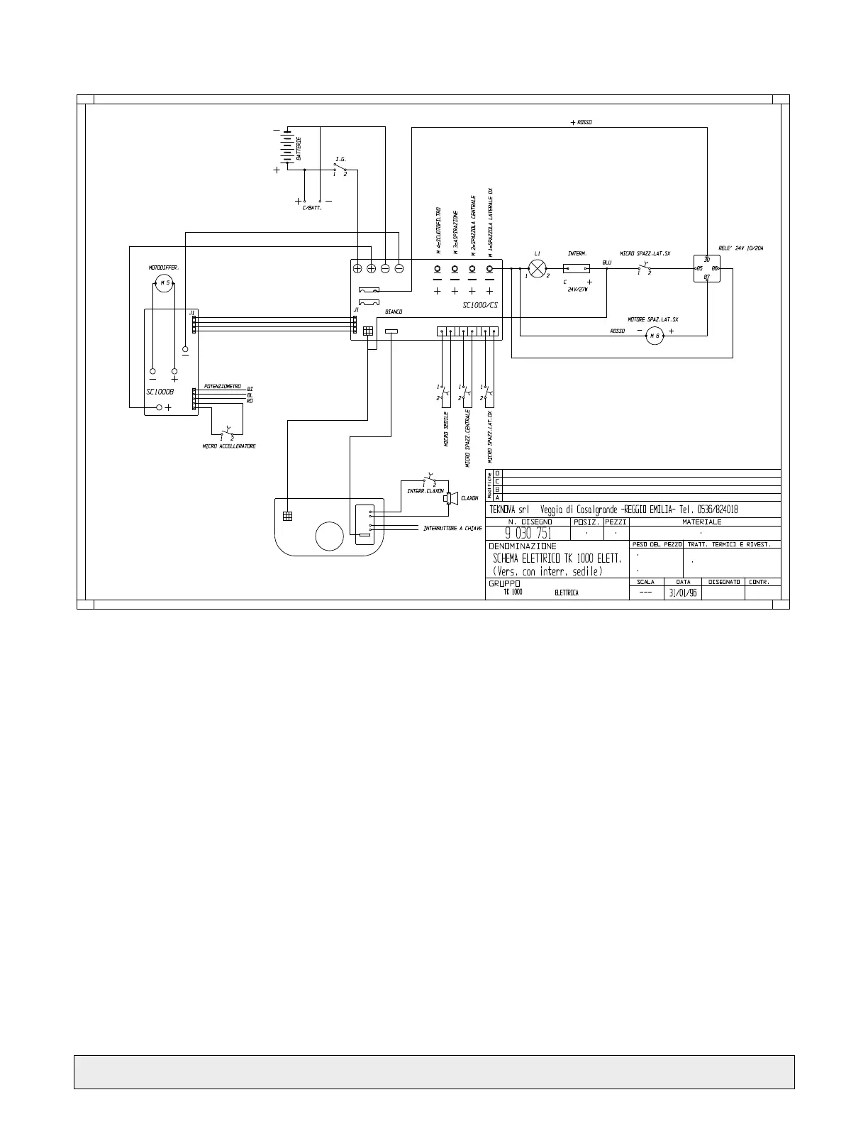
Pag. 13
FRANÇAIS (Traduction du mode d’emploi original)
8.2 - SCHEMA ÉLÉCTRIQUE
COMPOSANTS:
Batt. Batterie
M1 Moteur de la brosse latérale Droite
M2 Moteur de la brosse centrale
M3 Moteur du ventilateur de l’aspiration
M4 Batteur du filtre
M5 Différentiel
M6 Moteur de la brosse latérale Gauche
I.G. Clé de sécurité
C.Batt. Prise du chargeur
Int.1 Micro brosse latérale
Int.2 Micro de l’accélérateur
Int.3 Micro de la brosse centrale
F1 Fusible 1,25A 250V
F2 Fusible à barre 50A
Pot.1 Potentiomètre réglage de la vitesse
Tr1 Bouton de réglage du frein
Comm.1 Commutateur fonction
Comm.2 Commutateur direction
P1 Bouton alarme sonore
C Alarme sonore
CH Interrupteur à clé
SC1 Carte affichage chargeur
SC2 (option) Carte complète du compteur

Related product manuals