EasyManua.ls Logo

IPC Gansow 1010 E - Schaltplan

IPC Gansow 1010 E
Print Icon
To Next Page IconTo Next Page
To Next Page IconTo Next Page
To Previous Page IconTo Previous Page
To Previous Page IconTo Previous Page
Loading...
Pag. 13
DEUTSCH (Übersetzung der Original-Bedienungsanleitung)
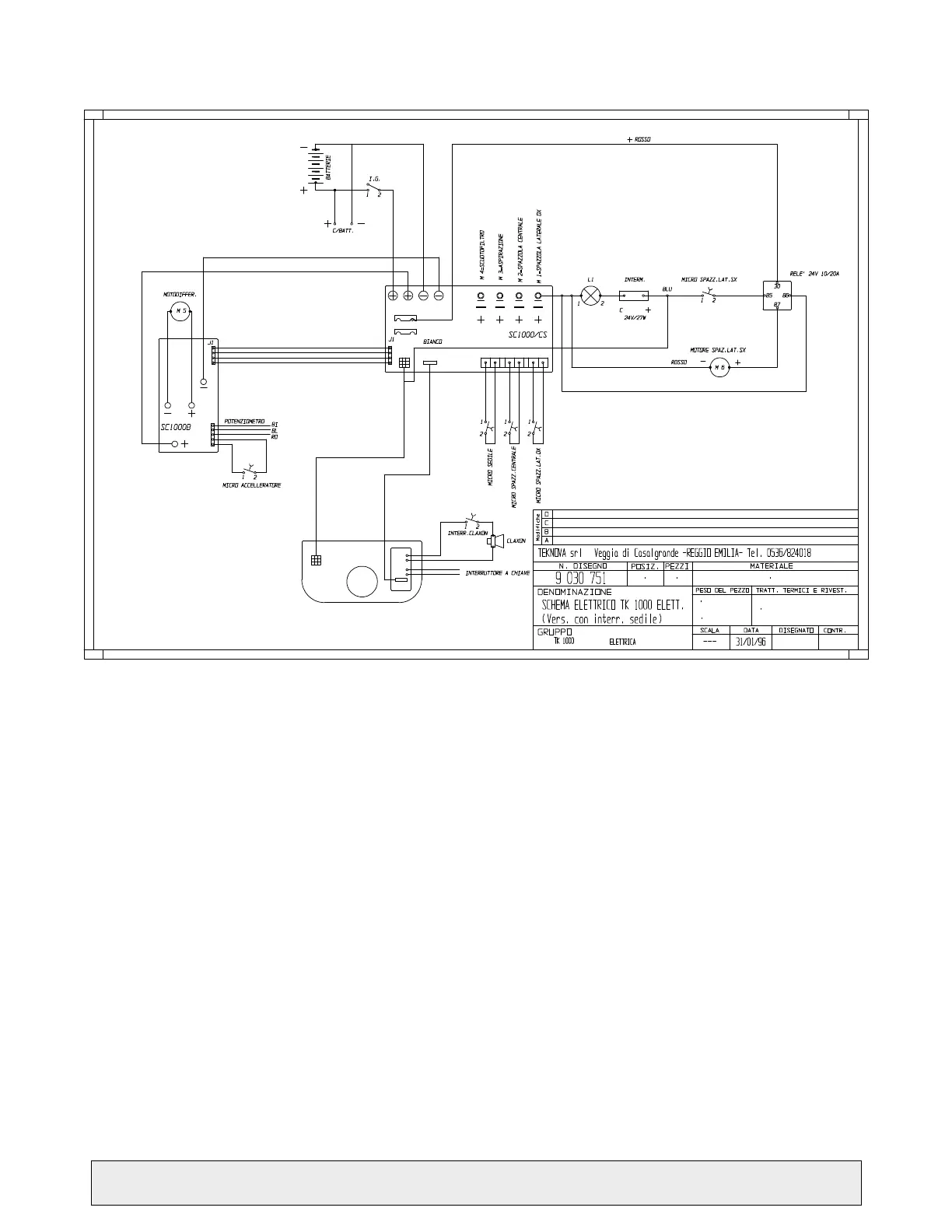
8.2 - S C H E M A E L E T T R I C O 8.2 - S C H A L T P L AN
KOMPONENTEN
Batt. Batterie
M1 Motor Seitenbürste
M2 Motor Mittelbürste
M3 Motor Absaugflügelrad
M4 Filterrüttlermotor
M5 Differentialgetriebe
M6 Motor Seitenbürste
I.G. Schlüssel zum Batterieabstellen
C.Batt. Batterieladesteckd
Int.1 Mikroschalter Seitenbürste
Int.2 Mikroschalter Fahrpedal
Int.3 Mikroschalter Mittelbürste
F1 Sicherung 1,25A 250V
F2 Stabsicherung 50A
Pot.1 Potentiometer Geschwindigkeitsreg.
Tr1 Trimmer Bremsregulierung
Comm.1 Funktionsumschalter
Comm.2 Richtungsumschalter
P1 Knopf Akustiksignal
C Akustiksignal
CH Schlüsselschalter
SC1 Karte Batterieladeanzeige
SC2 Karte komplett mit Stundenzähler

Related product manuals