EasyManua.ls Logo

iQe SIMPLICITY 30 - Page 26

Default Icon
56 pages
Print Icon
To Next Page IconTo Next Page
To Next Page IconTo Next Page
To Previous Page IconTo Previous Page
To Previous Page IconTo Previous Page
Loading...
'+
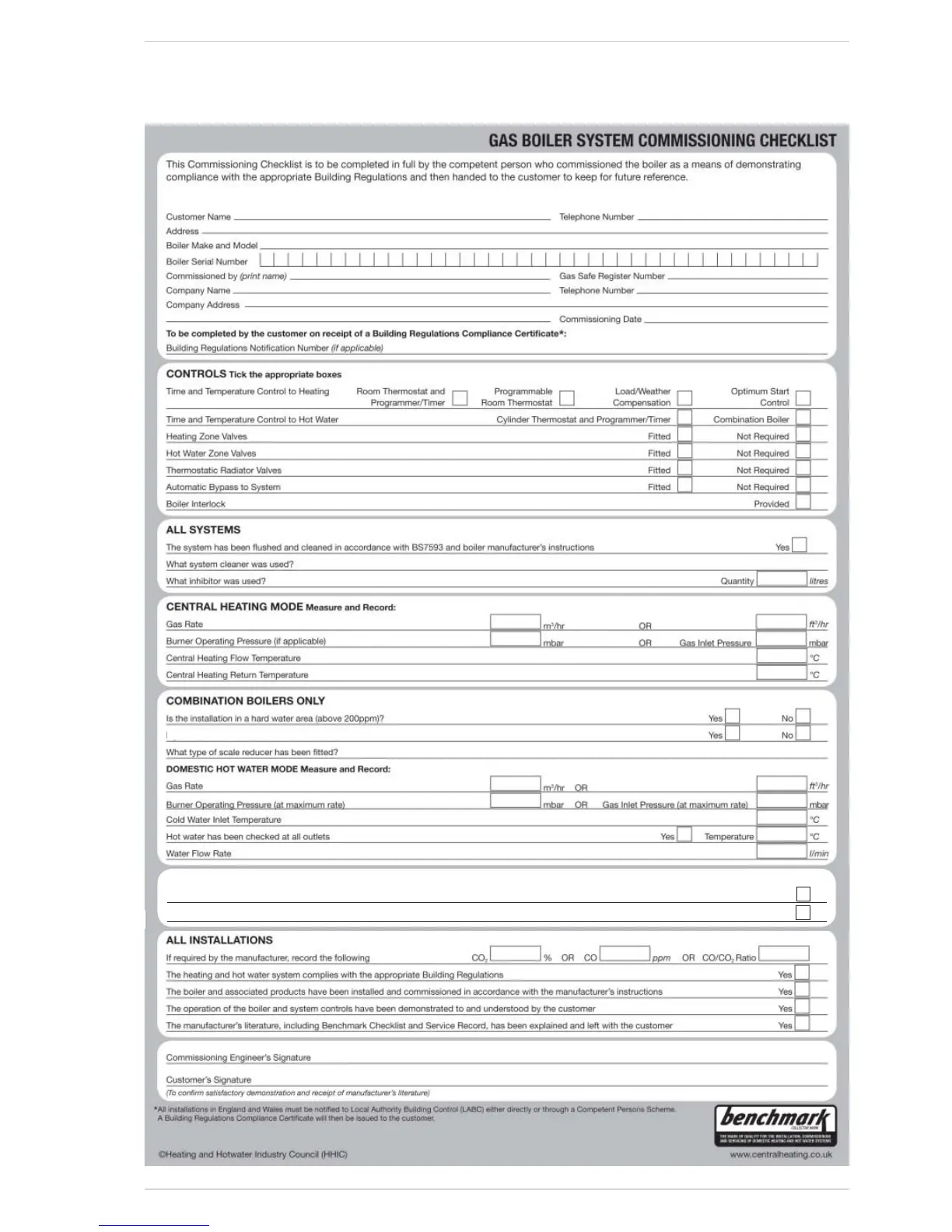
Failure to install and commission according to the manufacturer’s instructions and complete this Benchmark Commissioning Checklist will invalidate the warranty. This
does not affect the customer’s statutory rights.
If yes, and if required by the manufacturer, has a water scale reducer been fitted?
CONDENSING BOILERS ONLY
The condensate drain has been installed in accordance with the manufacturer’s instructions and/or BS5546/BS6798 Yes
If the condensate pipe terminates externally has the pipe diameter been increased and weatherproof insulation fitted? Yes

Table of Contents

Other manuals for iQe SIMPLICITY 30

Related product manuals