EasyManua.ls Logo

J.E. StorkAir MX 10/10 - Schémas de Câblage; Wiring Diagrams

J.E. StorkAir MX 10/10
Print Icon
To Next Page IconTo Next Page
To Next Page IconTo Next Page
To Previous Page IconTo Previous Page
To Previous Page IconTo Previous Page
Loading...
66
Aansluitschema’s, Schémas de câblage, Wiring diagrams, Stromlaufpläne
Kleuren, Colors,
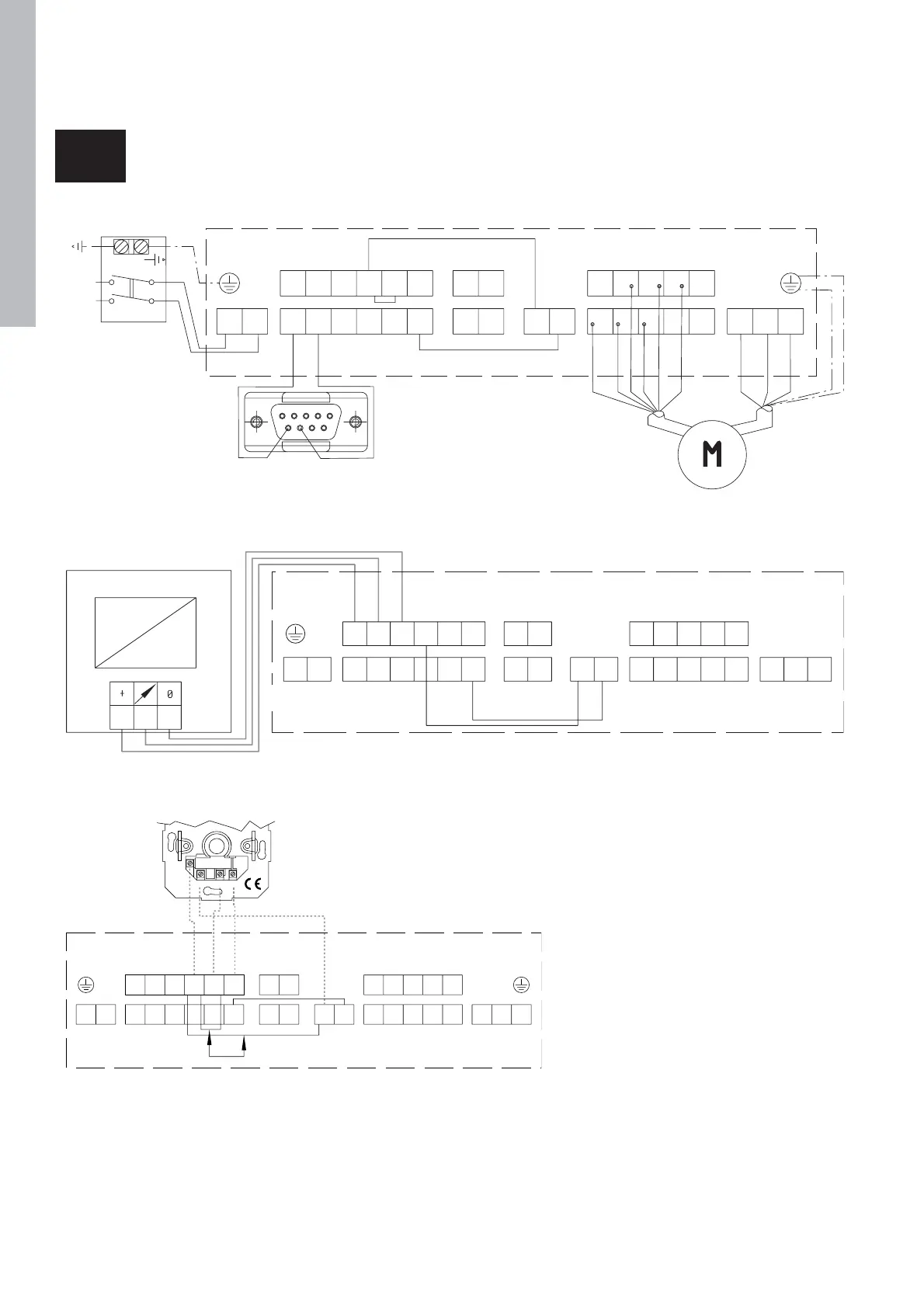
1. Aansluitschema MX (standaard), Schémas de câblage MX (standard), MX - [standard] wiring diagram, Stromlaufplan MX (Standard)
A = Motor aansluiting, Câblage du moteur, Motor connection, Motoranschluss
2. Aansluitschema MX-ZMV, Schéma de câblage du MX-ZMV, MX-ZMV wiring diagram, Stromlaufplan MX-ZMV
A = Druktransmitter, Transmetteur de pression, Pressure transmitter, Drucktransmitter B = Motor aansluiting, Câblage du moteur, Motor connection, Motoranschluss
3. Aansluitschema SAG 0-2/SAG 0-5/SAG 0-M, Schéma de câblage des SAG 0-2/SAG 0-5/SAG 0-M,
SAG 0-2/SAG 0-5/SAG 0-M wiring diagram, Stromlaufplan SAG 0-2/SAG 0-5/SAG 0-M
A = Motor aansluiting, Câblage du moteur, Motor connection, Motoranschluss B = Deze lussen verwijderen, Retirer ces boucles, Remove these links, Diese Schleifen entfernen
B
PE1 KL 2B KL 3B
KL 4KL 2A KL 3aKL 1
L
N
RS
A
RS
B
RS
A
RS
B
An
GND
U3
Ö
G
SG EN
EN
1612
21126121
18V
E
ist
GND
U3
10 V E
soll
GND
U3
A
+10V
EN
E
soll
GND
A
10V
03 mbar
PE 1 KL 2B KL 3B B
KL 4
KL 1
KL 2A
KL 3A
18 V
GND
U3
10 V
GND
U3
LN
RS
A
RS
B
RS
A
RS
B
An
GND
U3
ÖG
SG
EN
EN
1
6
12
2121
6
1
2
1
E
ist
E
soll
PE1 KL 2B KL 3B A
KL 4
KL 2A KL 3a
KL 1
L
N
RS
A
RS
B
RS
A
RS
B
An
GND
U3
Ö
G
SG
EN
EN
orange
brown
yellow
red
black
blue
black
blue
brown
green/yellow
green/yellow
brown
L
N
WS
12
4
3
5
4
3
2
1
9876
1612
21126121
18 V E
ist
GND
U3
10 V E
soll
GND
U3
white
Black
Zwart
Noir
Schwarz
Blue
Blauw
Bleu
Blau
Brown
Bruin
Maron
Braun
Green
Groen
Vert
Grün
Orange
Oranje
Oranje
Orange
Red
Rood
Rouge
Rot
White
Wit
Blanc
Weiß
Yellow
Geel
Jaune
Gelb
Grey
Grijs
Gris
Grau
Engels
Nederlands
Frans
Duits
Bijlagen, Annexes, Appendices, Anlagen

Table of Contents