EasyManua.ls Logo

jcb JZ140 ZT - Page 25

jcb JZ140 ZT
41 pages
Print Icon
To Next Page IconTo Next Page
To Next Page IconTo Next Page
To Previous Page IconTo Previous Page
To Previous Page IconTo Previous Page
Loading...
Section 1 - General Information
Service Tools
Tool Detail Reference Section E- Hydraulics
1 - 23
9803-6530
1 - 23
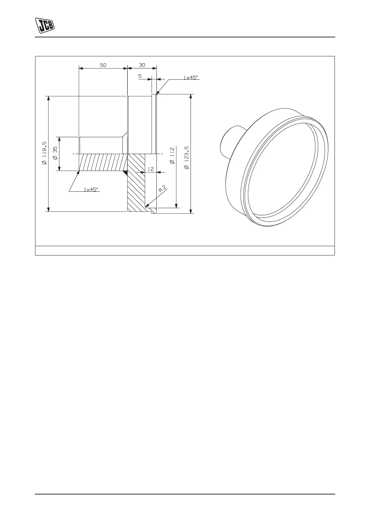
Fig 31. Seal Ring Tool
Note: For assembly and disassembly of slew motor gearbox seal.
A408880-C1
Find manuals at http://best-manuals.com/search?&s=JCB-9803-6530-1

Related product manuals