EasyManua.ls Logo

JM JM20 - Instructions for Installation; Prior to Installation; Fastening the Heater on a Wall; Anleitung für den Installateur

JM JM20
28 pages
Print Icon
To Next Page IconTo Next Page
To Next Page IconTo Next Page
To Previous Page IconTo Previous Page
To Previous Page IconTo Previous Page
Loading...
EN DE
14
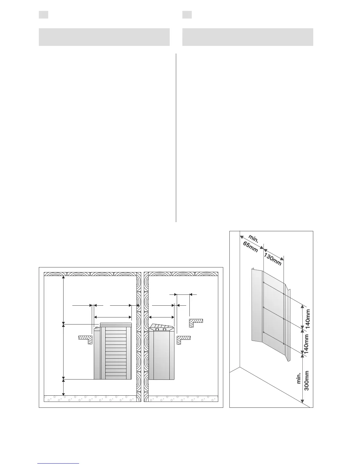
Figure 6. Location of the
mounting rack of the
heater
Abbildung 6. Platz des
Montagegestells des
Saunaofens
3.1. Prior to Installation
Prior to installing the heater, study the instructions
for installation, as well as checking the following
points:
• Is the output and type of the heater suitable for
the sauna room? The cubic volumes given in
table 1 should be followed.
• Are there a sufficient number of high quality
sauna stones?
• Is the supply voltage suitable for the heater?
• The location of the heater fulfils the minimum
requirements concerning safety distances given
in fig. 5 and table 1.
It is absolutely necessary to ensure that the
installation is carried out according to these values.
Neglecting them can cause a risk of fire. Only one
electrical heater may be installed in the sauna room.
3.2. Fastening the Heater on a Wall
Note! Connect the heater connection cable before
you fasten the heater on the wall rack. See item
3.4.1.
The installation rack of the heater has been
fastened to the heater. Unscrew the locking screw
of the rack and detach the installation support from
the heater.
3.1. Vor der Montage
Bevor Sie den Saunaofen installieren, lesen Sie die
Montageanleitung und überprüfen Sie folgende Din-
ge:
• Ist der zu montierende Saunaofen in Leistung
und Typ passend für die Saunakabine? Die
Rauminhaltswerte in Tabelle 1 dürfen weder
über- noch unterschritten werden.
• Sind genug Saunaofensteine von guter Qualität
vorhanden?
• Ist die Netzspannung für den Saunaofen geeig-
net?
• Der Montageort des Ofens erfüllt die in Abb. 5
und Tabelle 1 angegebenen Sicherheitsmindest-
abtände.
Diese Abstände müssen unbedingt eingehalten
werden, da ein Abweichen Brandgefahr verursacht.
In einer Sauna darf nur ein Saunaofen installiert
werden.
3.2. Befestigung des Saunaofens an der Wand
Achtung! Befestigen Sie das Anschußkabel bevor
Sie den Ofen am Wandgestell befestigen Siehe Ka-
pitel 3.4.1.
Das Montagegestell des Saunaofens ist am Sau-
naofen befestigt. Entfernen Sie die Verriegelungs-
schraube des Montagegestells und nehmen das Ge-
stell vom Saunaofen ab.
Figure 5. Safety distances from the heater
Abbildung 5. Sicherheitsmindestabstände des
Saunaofens
3. INSTRUCTIONS FOR
INSTALLATION
3. ANLEITUNG FÜR DEN
INSTALLATEUR
150
540
min. 700
300
245(E)
min. 15min. 5 min. 5
min. 80
220
min.

Table of Contents