EasyManua.ls Logo

John Bean EELR538A - Page 16

John Bean EELR538A
19 pages
Print Icon
To Next Page IconTo Next Page
To Next Page IconTo Next Page
To Previous Page IconTo Previous Page
To Previous Page IconTo Previous Page
Loading...
Models EELR538A and EELR539A
Models EELR540A and EELR541A
Installation, Operation and Maintenance
Page 16
Rev. 08/27/2021
15-18000-IOM-W.doc
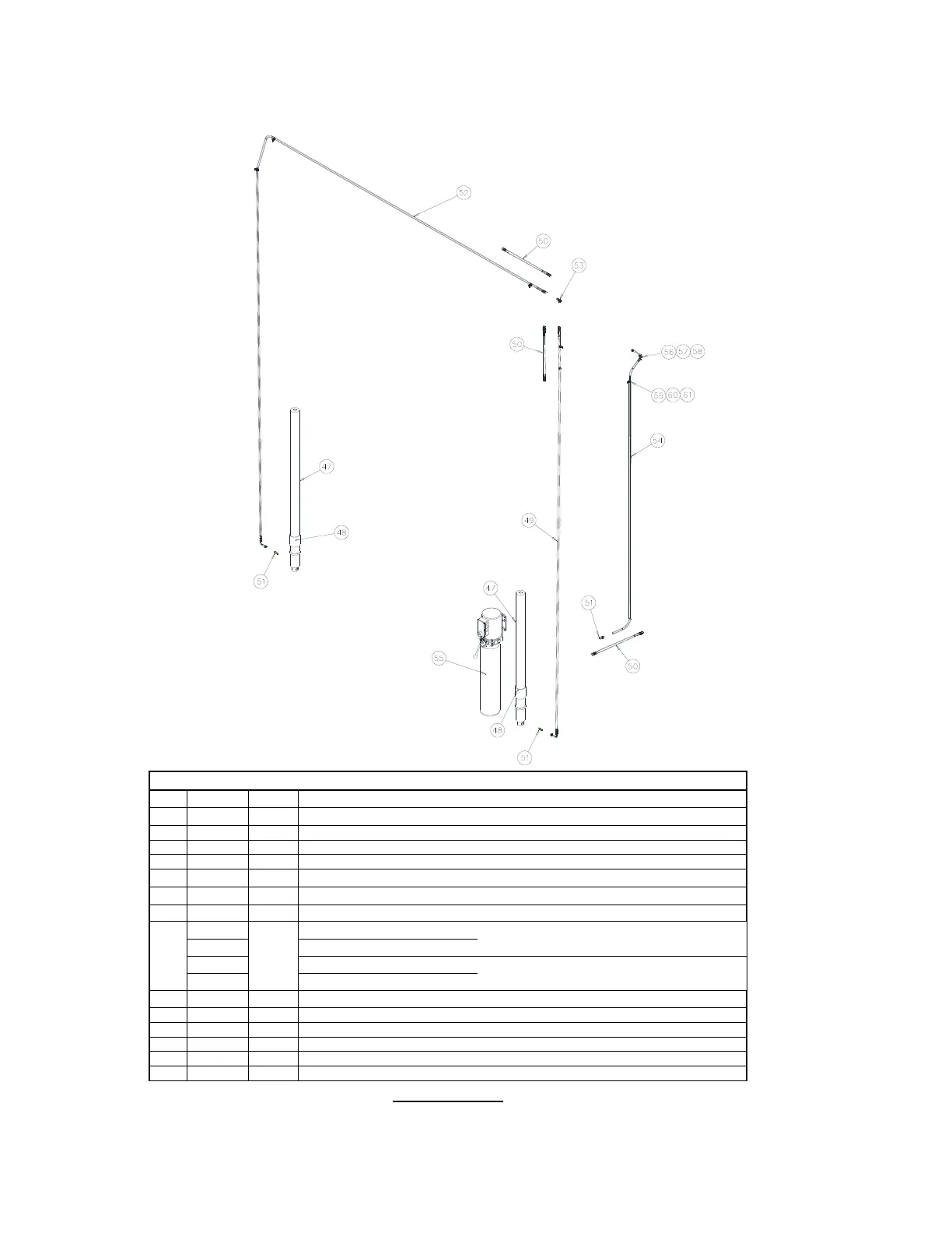
PARTS BREAKDOWN (continued)
Fig C. Hydraulics
ITEM #
PART # QTY/LIFT
DESCRIPTION
47
15075 2
HYD. CYLINDER (69” STROKE)
48
12111 2
CYLINDER SPACER
49 12258 1 POWER HOSE ASSEMBLY
50 12539-024 3 EXTENSION HYD. LINE (16’-6” O.A. HT. ONLY)
51 16167 3 O-RING ELBOW
52
12256 1
IDLER HOSE ASSEMBLY
53
39103 1
HYD. TEE
54
12257 1
POWER UNIT HOSE ASSEMBLY
55
12119
1
POWER UNIT – SINGLE PHASE
15000
12089
POWER UNIT – THREE PHASE
12087-19
POWER UNIT – SINGLE PHASE
18000
12089-19
POWER UNIT – THREE PHASE
56
31025 1
LINE CLAMP
57 40085 1 1/4”- 20 HEX FLANGE NUT
58 A2125 1 1/4” -20 x 3/4” LG. HEX FLANGE BOLT
59 A1122-12 1 HOSE CLAMP
60 A1153 1 3/8” -16 x 3/4” LG. HEX FLANGE BOLT
61 A1154 1 3/8” -16 HEX FLANGE NUT
IMPORTANT
Replace all worn or broken parts with genuine Snap-on Equipment parts. Contact your local
Snap-on Equipment parts distributor for pricing and availability. Call Snap-on Equipment at (501)
450-1500 for the distributor in your area.

Related product manuals