EasyManua.ls Logo

JVC KD-DV7408 - Page 4

JVC KD-DV7408
6 pages
Print Icon
To Next Page IconTo Next Page
To Next Page IconTo Next Page
To Previous Page IconTo Previous Page
To Previous Page IconTo Previous Page
Loading...
4
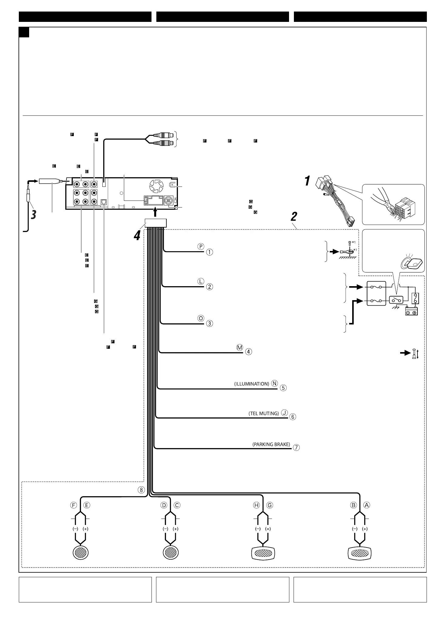
VIDEO OUT
(see diagram /см. схему /
див. схему
)
DIGITAL OUT
(see diagram
/
см. схему / див. схему )
15 A fuse
Предохранитель 15 A
Запобіжник 15 А
Rear ground terminal
Задний разъем заземления
Тильна клема заземлення
LINE OUT (see diagram
)
(см. схему
)
(див. схему )
2nd AUDIO OUT
(see diagram
/ см. схему / див. схему )
To car light control switch
К контрольному переключателю освещения автомобиля
До реле управління освітленням автомобіля
Orange with white stripe
Оранжевый с белой полосой
Помаранчевий із білою смужкою
SW
(Subwoofer/Низкочастотный
динамик/Низькочастотний динамік)
(see diagram
/см. схему / див.
схему )
LINE IN
(see diagram
/
см. схему
/
див. схему
)
Aerial connector
Разъем антенны
Рознімання антени
To external components (see diagram
)
К внешним устройствам (см. схему
)
До зовнішніх компонентів (див. схему
)
Black
Черный
Чорний
Red
Красный
Червоний
Yellow
*
2
Желтый *
2
Жовтий *
2
Light green
Зеленого цвета
Ясно-зелений
Blue with white stripe
Синий с белой полосой
Синій з білою смужкою
Brown
Коричневый
Коричневий
To parking brake, metallic body or chassis of the car
К стояночному тормозу, корпусу или ходовой части автомобиля
На ручне гальмо, металічний корпус або на шасі автомобіля
To metallic body or chassis of the car
К металлическому корпусу или шасси автомобиля
На металічний корпус або на шасі авто
To a live terminal in the fuse block connecting to the car battery
(bypassing the ignition switch) (constant 12 V)
К разъему фазы в блоке предохранителя (минуя блок зажигания)
(постоянный 12 В)
На клему фази у блоці запобіжників для з’єднання з акумулятором
авто (обминаючи перемикач запалення)—постійний струм 12 В
To an accessory terminal in the fuse block
К вспомогательному разъему в блоке предохранителя
На допоміжну клему у блоці запобіжників
To the remote lead of other equipment or power aerial if any (200 mA max.)
К удаленному проводу другого оборудования или антенны (макс. 200 мА)
На провідник зовнішнього пристрою іншого обладнання або на антену (якщо
встановлена) (максимальний струм 200 мА)
To cellular phone system
К системе сотового телефона
На систему стільникового телефону
Ignition switch
Переключатель зажигания
Перемикач запалювання
Fuse block
Блок предохранителя
Блок запобіжників
Left speaker (front)
Левый громкоговоритель (передний)
Лівий гучномовець (передній)
Right speaker (front)
Правый громкоговоритель (передний)
Правий гучномовець (передній)
Left speaker (rear)
Левый громкоговоритель (задний)
Лівий гучномовець (задній)
Right speaker (rear)
Правый громкоговоритель
(задний)
Правий гучномовець (задній)
Purple
Пурпурный
Пурпурний
Purple with black stripe
Пурпурный с черной полосой
Пурпурний з чорною смужкою
Green
Зеленый
Зелений
Green with black stripe
Зеленый с черной полосой
Зелений з чорною смужкою
Gray
Серый
Сірий
Gray with black stripe
Серый с черной полосой
Сірий з чорною смужкою
White
Белый
Білий
White with black stripe
Белый с черной полосой
Білий з чорною смужкою
ENGLISH
B
Before connecting: Check the wiring in the vehicle carefully.
The leads of the power cord and those of the connector from the car
body may be different in color.
1 Cut the ISO connector.
2 Connect the colored leads of the power cord in the order
specified in the illustration below.
3 Connect the aerial cord.
4 Finally connect the wiring harness to the unit.
*
1
Not supplied for this unit.
*
2
Before checking the operation of this unit prior to installation, this
lead must be connected, otherwise power cannot be turned on.
УКРАЇНА
Connections without using the ISO connectors / Подключение без использования разъемов ISO / З’єднання без допомоги рознімань ISO
Перед тим, як з’єднати: Уважно перевірте електричну
схему з’єднання вашого авто Неправильне з’єднання може
спричинити тяжке пошкодження вашого пристрою.
Контакти шнура живлення та рознімання, яке йде від корпуса
авто можуть мати різні кольори.
1 Від’єднайте рознімання ISO.
2 З’єднайте кольорові провідники шнура живлення у порядку,
що наведений нижче на ілюстрації.
3 Приєднайте провід антени.
4
Виконайте кінцеве приєднання джгута провідників до пристрою.
*
1
Не входить до комплекту постачання цього пристрою.
*
2
Перед тим, як перевірити працездатність цього виробу до його
встановлення, цей контакт необхідно приєднати, інакше живлення
на прилад подаватися не буде.
РУССКИЙ
*
1
Не входит в комплект.
*
2
Перед проверкой работы устройства подключите этот провод,
иначе питание не включится.
Перед началом подключений: Тщательно проверьте
проводку в автомобиле. Неправильное подключение может
привести к серьезному повреждению устройства.
Жилы силового кабеля и жилы соединителя от кузова
автомобиля могут быть разного цвета.
1 Обрежьте разъем ISO.
2 Подсоедините цветные провода шнура питания в указанном
ниже порядке.
3 Подключите кабель антенны.
4
В последнюю очередь подключите электропроводку к устройству.
Instal4-6_KD-DV7408_002A_f.indd 4Instal4-6_KD-DV7408_002A_f.indd 4 2/20/08 9:08:52 AM2/20/08 9:08:52 AM

Related product manuals