EasyManua.ls Logo

JVC KD-S6060 - Page 7

JVC KD-S6060
76 pages
Print Icon
To Next Page IconTo Next Page
To Next Page IconTo Next Page
To Previous Page IconTo Previous Page
To Previous Page IconTo Previous Page
Loading...
(No.MA028)1-7
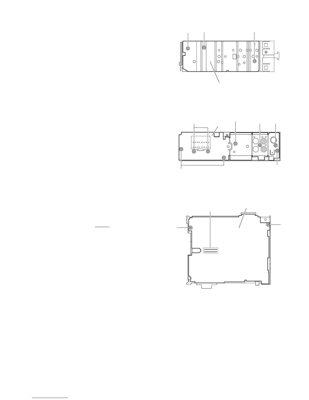
3.1.4 Removing the side panel
(See Fig.4)
Prior to performing the following procedure, remove the front
panel assembly as required.
(1) Remove the screw B and two screws C attaching the heat
sink on the left side of the main body, and remove the side
panel.
Fig.4
3.1.5 Removing the rear bracket
(See Fig.5)
Prior to performing the following procedure, remove the bottom
cover.
(1) Remove the three screws D, three screws E and two
screws F attaching the rear bracket on the back side of the
main body.
(2) Remove the rear bracket.
Fig.5
3.1.6 Removing the main board
(See Fig.6)
Prior to performing the following procedure, remove the front
panel assembly, front chassis assembly, side panel, bottom
cover and rear bracket.
(1) Remove the two screws G attaching the main board.
(2) Disconnect the connector CN501
and remove the main
board.
Fig.6
Side panel
C
B
C
EF
D
D
E
Rear bracket
F
Main board assembly
G
G
CN501

Related product manuals