EasyManua.ls Logo

JVC MX-DK51EE - DVD Section

JVC MX-DK51EE
49 pages
Print Icon
To Next Page IconTo Next Page
To Next Page IconTo Next Page
To Previous Page IconTo Previous Page
To Previous Page IconTo Previous Page
Loading...
2-9
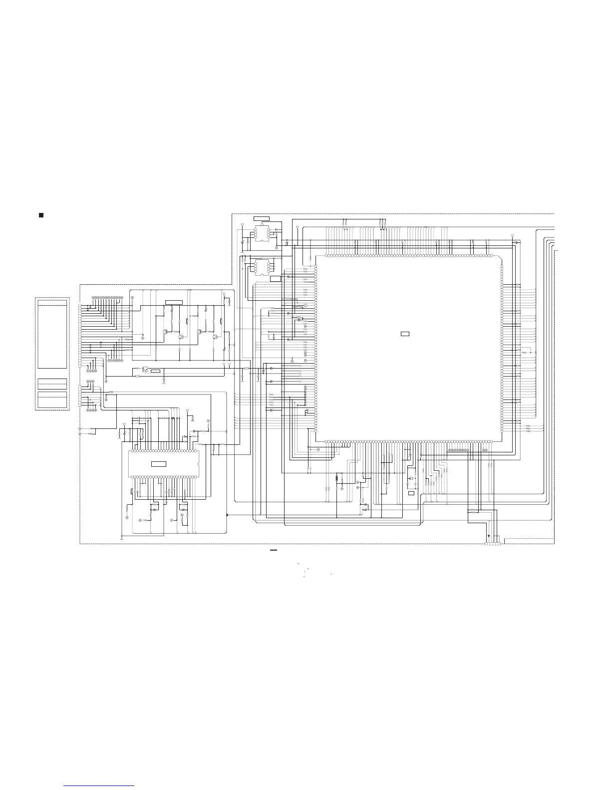
DVD section (1/2)
FM+
F-
T+
TRSDRV
E
CDLDCUR
FODRV
WOUT
T-
C
COM
UOUT
F
EXDT3
MDQ4
F-
MDQ0
VOUT
MDQ1
MDQ13
C
MDQ14
LPC1
MDQ2
MDQ10
MDQ12
AD4
B
MDQ5
MDQ3
D
EXADT9
EXDT11
DACCK
EXADT8
EXDT4
F+
FM-
EXADR19
DAC5OUT
VOUT
NEXWE
DAC4OUT
DDATA
E
DAC1OUT
BCK
D
DCLK
RF+
F
T-
DAC2OUT
B
FM-
MDQ9
NEXOE
TRDRV
FM+
A
MDQ6
NEXCE
COM
EXDT14
MDQ8
EXADT10
EXDT9
WOUT
AOUT0
DQM0
EXDT2
A
AOUT1
DQM1
EXDT10
DAC3OUT
AOUT2
VREFH
EXDT7
BCKM
UOUT
EXDT15
LRCK
F+
T+
EXADT0
FG
LPCO1
LPCO2
EXDT1
EXDT8
EXDT0
MDQ11
MDQ7
DATAM
EXDT6
EXDT13
MDQ15
CPURST
EXDT5
EXDT12
DVDLDCUR
TRVSW
SPDRV
EXADR20
SPMUTE
HFMON
EXADT15
EXADT14
EXADT6
EXADT5
EXADT4
EXADT3
EXADT2
EXADT1
EXADT11
EXADT13
EXADT12
EXADT7
EXADR16
NWE
NCAS
NRAS
NCSM
MA11
BA0
MA9
BA1
MA8
MA10
MA7
MA0
MA6
MA1
MA5
MA3
MA4
MA2
DACPDN
ADCPDN
DAC1CS
DAC2CS
CDLDCUR
AD4
TRDRV
FODRV
LRCKM
SPMUTE
HFMON
SPDRV
TRSDRV
LPCO1
LPC2
LPCO2
TRVSW
DAC0CS
FG
VREFH
MCK
DVDLDCUR
DRVMUTE
DRVMUTE
HAGUP
LPC2
RF+
LPC1
EXADR17
EXADR18
SCS
S2UDT
U2SDT
UCLK
UCS
DVDPWR
CPURST
LRMUTE
ADIN
INDEX
TRACK
COPY
DEMP
TX
RX
SWMUTE
X301
NAX0741-001X
TP292
10kR373
0.1C321
10pC326
1k
R384
30k
R206
100R353
0.022
C211
0
R337
10k
R308
TP109
S3.3V
TP118
47/6.3
C303
T
0.1
C318
F
22/6.3
C108
T
NI
R215
0.1
C335
F
30k
R340
0.5%
1C324 F
220
R359
TP111
5.6k
R111
330
R117
24k
R220
TP113
NI
R355
0.1
C300
F
47/4
C302
27k
R204
10/6.3
C339
T
330R324
0.01
C203
18
R113
1/4W
DGND
0.1
C334
F
Q104
2SC4617/R/-X
TP101
4.3k
R127
TP205
0.1C320
NI
R354
1k
R107
22k
R346
4.3k
R112
10k
R214
0.022C261
0.1
C383
F
0.1
C307
F
IC302
MM1701CH-X
8
Vin
7
NC
6
NC
5
Cont
4
Cn
3
GND
2
NC
1
Vo
IC510
BR24L16F-W-X
8
VCC
7
WP
6
SCL
5
SDA
4
GND
3
A2
2
A1
1
A0
220
R345
TP121
0.1C107 F
NI
R371
560p
C353
NIC336
0.018C337
0.1C348
220p
C201
0.1
C217
F
5.6k
R128
M9V
TP332
IC301
MN2DS0009AA
1
MDQ18
2
VSS
3
VDD33
4
MDQ28
5
MDQ19
6
MDQ27
7
MDQ20
8
VDD33
9
VSS
10
MDQ26
11
MDQ21
12
MDQ25
13
MDQ22
14
MDQ24
15
MDQ23
16
VSS
17
VDD33
18
EXADT0
19
NEXCE
20
NEXOE
21
VSS
22
VDD12
23
EXDT0
24
EXDT8
25
EXDT1
26
EXDT9
27
EXDT2
28
EXDT10
29
EXDT3
30
EXDT11
31
EXDT4
32
EXDT12
33
EXDT5
34
VSS
35
VDD33
36
EXDT13
37
EXDT6
38
EXDT14
39
EXDT7
40
EXDT15
41
EXADR16
42
EXADT15
43
EXADT14
44
VSS
45
VDD12
46
EXADT13
47
EXADT12
48
EXADT11
49
EXADT10
50
EXADT9
51
EXADT8
52
VSS
53
VDD33
54
EXADR19
55
NEXWE
56
EXADR18
57
EXADR17
58
EXADT7
59
EXADT6
60
EXADT5
61
EXADT4
62
EXADT3
63
EXADT2
64
EXADT1
65 P0
66 P1
67 P2
68 VSS
69 VDD33
70 P3
71 P4
72 P5
73 P6
74 P7
75 P8
76 P9
77 P10
78 P11
79 P12
80 P13
81 P14
82 VSS
83 VDD12
84 NRST
85 FG
86 DRV5
87 DRV4
88 DRV3
89 DRV2
90 DRV1
91 DRV0
92 VSS
93 VDD33
94 MONI7
95 MONI6
96 MONI5
97 MONI4
98
MONI3
99 MONI2
100 MONI1
101 MONI0
102 AVDDD
103 PLFIL1
104 AVSSD
105 VREFH7
106 VREFL7
107 CCAPA
108 AVSSC
109 CDATA
110 AVDDC
111 ANAMONI1
112 ANAMONI2
113 RFINN
114 RFINP
115 VIN1RF
116 VIN2RF
117 VIN4RF
118 VIN3RF
119 AVDDB
120 VREFH5
121 VREFL5
122 AVSSB
123 LPC1
124 LPCO1
125 LPC2
126 LPCO2
127 VREFH
128 VHALF
129
VIN10
130
VIN9
131
VIN5
132
VIN6
133
VIN7
134
VIN8
135
VIN3
136
VIN4
137
VIN2
138
VIN1
139
AD0
140
AD1
141
AD2
142
AD4
143
AVSSH
144
PWM1
145
PWM0
146
AVDDH
147
DAC3OUT
148
DAC2OUT
149
DAC1OUT
150
AVDDF
151
COMP1
152
VREF
153
IREF1
154
COMP2
155
AVSSF
156
DAC4OUT
157
DAC5OUT
158
AVDDE
159
AVSSE
160
AVDDG
161
AVSSG
162
OSCI
163
OSCO
164
VSS
165
VDD12
166
DACCK
167
LRCK
168
SRCK
169
ADOUT3
170
ADOUT2
171
ADOUT1
172
ADOUT0
173
IECOUT
174
VSS
175
VDD33
176
VDIO7
177
VDIO6
178
VDIO5
179
VDIO4
180
VDIO3
181
VDIO2
182
VDIO1
183
VDIO0
184
VDD33
185
VSS
186
EXTRG1
187
SCLOCK
188
SDATA
189
EXTRG0
190
TRCCLK
191
TRCDATA0
192
TRCDATA1
193TRCDATA2
194TRCDATA3
195TRCST
196VSS
197VDD33
198MDQ15
199MDQ0
200MDQ14
201MDQ1
202MDQ13
203MDQ2
204VDD33
205VSS
206MDQ12
207MDQ3
208MDQ11
209MDQ4
210MDQ10
211MDQ5
212MDQ9
213MDQ6
214VDD33
215VSS
216MDQ8
217MDQ7
218VDD12
219DQM0
220DQM1
221NWE
222VSS
223MCK
224
VDD33
225MCKI
226VSS
227NCAS
228NRAS
229NCSM
230
MA11
231BA0
232MA9
233VSS
234VDD12
235BA1
236MA8
237MA10
238VSS
239DVV33
240MA7
241MA0
242MA6
243MA1
244MA5
245MA2
246MA4
247MA3
248VSS
249VDD33
250DQM2
251DQM3
252MDQ31
253MDQ16
254MDQ30
255DQM17
256DQM29
750
R350
0.1C310
F
220p
C202
TP315
1
C356
0.01
C393
220
R357
1k
R385
1kR376
0.1
C309
F
0
R335
0.1
C204
F
TP381
TP107
0.1C323
TP334
TP331
NI
C374
F
TP116
1C304
K352
NQR0502-001X
IC201
LA6502-X
12345678910111249131415161718192021222324
25 26 27 28 29 30 31 32 33 34 35 36 50 37 38 39 40 41 42 43 44 45 46 47 48
1k
R306
TP122
2.2
R106
0.1
C375
F
TP105
0R338
0.022C260
220
R360
CN301
NI
1
2
3
4
5
6
4.3k
R104
Q103
KTA1001/Y/-X
MGND
TP220
1k
R307
0R339
TP206
NI
C290
NI
R126
6.8k
R221
D2V
NIR374
TP103
0.1
C103
F
0.1
C329
0.0056C338
0.1C333 F
TP119
0.1
C379
F
680
R351
TP207
220
R358
470
R116
1M
R352
TP227
1k
R202
0R348
TP104
330R326
NI
R361
1
C341
TP201
0.1C564 F
470
R108
0.01
C328
10kR259
Q101
KTA1001/Y/-X
0.1C256
TP337
1C340 F
47kR542
TP226
NI
C378
18k
R219
TP333
NI
R290
0.1
C101
F
47kR541
0.015
C352
0.033C331
NI
Q105
0.1
C314
F
0.1
C305
F
100/16
C263
TP108
150p
C206
2.2
R114
0.1
C349
F
22
R303
27k
R205
NI
R366
NI
R363
10kR372
5.1k
R341
0.5%
TP202
0.1
C377
TP231
TP204
220/6.3
C301
NI
R208
5.6k
R103
220
R367
S5V
22/6.3
C106
T
270p
C205
TP329
100
R101
NI
R356
330R325
0.015C2581
C210
F
NI
R254
TP117
P3.3V
TP106
NI
C264
0.1
C306
F
0
R334
TP221
2.4k
R342
0.5%
0.1
C376
1
R125
0.1
C308
F
NI
C373
0
R336
10k
R213
0.1
C102
F
330
R109
M5V
TP203
100
R102
47/6.3
C105
TP291
NI
R255
0.022C262
1
C371
F
TP326
TP328
NI
R110
TP110
0.1
C104
F
0.1
C315
100kR309
NI
R365
TP115
0.1C332 F
TP120
Q102
2SC4617/R/-X
0.015C259
0.1
C319
F
0.1
C372
F
TP330
0.39
R251
1/2W
100R310
TH301
NAD0025-103X
TP123
10k
R392
0.1
C330
F
TP208
TP314
12p
C325
0.1C322
NIR257
NI
R118
100R383
20k
R347
NI
R364
1k
R115
18
R105
1/4W
47k
R207
560p
C354
0.47C251
TP102
47
R362
0.0082C257
0.01
C351
1
C359
TP304
TP321
CN201
QGF1016F8-08W
1
2
3
4
5
6
7
8
NI
C311
D301
NI
C316 0.1
F
C312
0.1
F
C350
0.01
NI
R323
NI
R330
330
R331
CN101
QGF0523F3-24W
1
2
3
4
5
6
7
8
9
10
11
12
13
14
15
16
17
18
19
20
21
22
23
24
470
R201
470
R375
NIR318
9
10k
R319
0.1C347
C313 0.1
F
R316 1k
330
R327
K101
NQR0502-001X
S5V
0.1
C386
F
330
R332
TP325
TP320
TP335
NI
R322
NI
R321
NI
R320
1kR377
TP306
TP308
TP309
TP307
TP124
TP114
TP125TP112
NI
C770
NI
C772
DGND DGND
NIR252
NI
C776
DGND
NI
C771
NI
C774
NI
C777
DGND
DGND
DGND
D1.2V
TP300
TP301
OUT3F
0V
SPINDLE
SPC1
PICKUP
PD(DVD)
D
B
DGND
AMP1IN-
SPRF
UOUT
+RF
0V
LD(CD)
QAR0165-001
AMP3OUT
FM-
0V
ICE
SDATA
AMP1OUT
MCOM
VR(DVD)
0V
AMP2OUT
DGND
OUT3R
QAR0386-001
0V
OUT1F
for
SPFC
GND
VCC
NC
VOUT
MUTE1
VCC2
MECHA
TRA
OUT4F
0V
E
AMPOUT
WOUT
0V
GND
OUT1R
T-
AMP2IN-
SPFGO
D1.2V
ASS'Y
VOUT
VCC
TRVSW
T+
MUTE3
MGND
PD(CD)
VREF
0V
MOTOR
FR
0V
TEMPDET
0V
RESET
SGND
FXL-D10-1M
AMP4IN-
SPVCOIN
OUT2F
DRIVER
SPCX
WOUT
MGND
SCLK
SW
EEPROM
LASER
AMP2IN+
REG.
UOUT
AMP3IN-
MGND
FEED
NC
VCC1
SPCTL
F
(OPA-652PH*)
VHALF2
QAL0786-***
FODRV
SWGND
SPDRV
TRSDRV
F-
2SB1424/R/-W
MOTOR
AMP1IN+
0V
0V
2SB1424/R/-W
COM
MGND
F+
SPC2
AMPIN+
MUTE2
OUT4R
VCC(HF)
NC
or
DV3.2
AMPIN-
NC
0V
BR
VS
LD(DVD)
VR(CD)
AMP4IN+
OUT2R
AMP3IN+
TRDRV
CHASSIS
or
C
DRIVER
MECHA
A
HFM
FM+
ASS'Y
(EXADR20)
(ADIN)
(SCK)
(SDA)
(UCS)
(UCLK)
(U2SDT)
(S2UDT)
(SCS)
(DCLK)
(DDATA)
(DAC1CS)
(TRVSW)
(DAC2CS)
(ADCPDN)
(SERIAL1OUT)
(DAC0CS)
(DACPDN)
(DEMP)
(COPY)
(TRACK)
(INDEX)
GND
(SWMUTE)
(IECIN)
LVA10542-421B (1/2)
(TALK)
(WP)
27MHz
OR
CAPACITANCE( F)
disc
NOTES
ALL RESISTORS ARE
ALL E.CAPACITORS ARE SHOWN IN THE FORM
.
.
mode
METAL GLAZE RESISTOR.
1.
F(p=pF).
ALL INDUCTANCE VALUES
5%
UNLESS OTHERWISE SPECIFIED.
METAL GLAZE RESISTOR.
ACONDITION ---
or,
ALL CAPACITANCE VALUES ARE IN
the
25V
,
IN OHM( ).
50V
1
16V
DVD
/RATED VOLTAGE (V).
6.3V
NI STANDS FOR NOT INSERTED PARTS.
ARE IN H(m=mH).
2.
,
VOLT METER
ALL CAPACITORS ARE
Tray
,
STOP
10V
1/16W
and
0.5%
VOLTAGES ARE DC-MEASURED WITH A DIGITAL
in
CERAMIC CAPACITOR
WITHOUT INPUT SIGNAL.
OF
3.
ALL RESISTANCE VALUES ARE
1.2V
0V
0V
3.9V
0V
0V
0V
0V3.1V
0V
3.1V
1.2V
0V
0V
3.1V
3.1V
0V
0V
3.1V
3.1V
0V
2.2V
1.55V
2.2V
2.2V
2.2V
2.2V
2.2V
2.2V
2.2V
2.2V
2.2V
2.2V
0V
3.1V
0.99V
0V
0V
0V
0V
3.1V
3.1V
1.2V
3.1V
0V
0V
3.1V
3.1V
0V
3.1V
0V
0V
3.1V
1.2V
3.1V
0V
0V
0V
0V
0V
3.1V
3.1V
1.2V
3.1V
3.1V
3.1V
1.2V
0V
0V
0V
0V
3.1V
0V
0V
1.2V
3.1V
0V
0V
0V
0V
0V
0V
0V
0V
3V
1.8v
2.1v
2.4v
1.8v
2.1v
2.2v
1.8v
1.8v 0V
9V
9V
9V
9V
0V
0V
0V
0.9V
0.9V
0.9V
0.9V
0.9V
0.9V
2.4V
2.2V
1.8V
A
B
D
E
F
G

Related product manuals