EasyManua.ls Logo

JVC XV-THS55 - Page 40

JVC XV-THS55
77 pages
To Next Page IconTo Next Page
To Next Page IconTo Next Page
To Previous Page IconTo Previous Page
To Previous Page IconTo Previous Page
Loading...
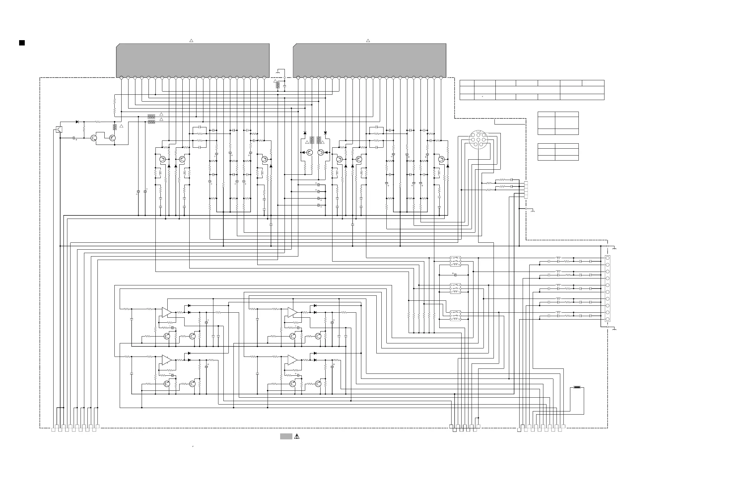
2-10
SHEET 9
Parts are safety assurance parts.
When replacing those parts make
sure to use the specified one.
+
-
+
-
+
-
+
-
.NOTES:UNLESS OTHERWISE SPECIFIED
ALL RESISTANCE VALUES ARE IN OHMS.
ALL INDUCTANCE VALUES ARE IN H.
ALL CAPACITANCE VALUES ARE IN F.
R_OUT
L_OUT
C_OUT
SL_OUT
SW_IN
C_IN
SR_OUT
SW_OUT
SR_IN
R_IN
SL_IN
L_IN
L2401
0.45
Q2401
KTA1504/YG/-X
D2401
1SS133-T2
L2501
0.45
Q2501
KTA1504/YG/-X
D2501
1SS133-T2
L2601
0.45
D2601
1SS133-T2
L2301
0.45
L2201
0.45
Q2201
KTA1504/YG/-X
Q2301
KTA1504/YG/-X
L2101
0.45
Q2101
KTA1504/YG/-X
D2201
1SS133-T2
D2301
1SS133-T2
D2101
1SS133-T2
EP201
Q2703
KRC102S-X
D2703
MTZJ16C-T2
9
L2202
11
RY272
QSK0127-001
256
143
RY271
QSK0127-001
256
143
RY273
QSK0127-001
25
6
143
L2302
L2502
L2402
L2602
12
Q2601
KTA1504/YG/-X
Q2701
KTC3875/YG/-X
Q2702
KTA1046/Y/
TH271
NAD0025-103X
10k
UNF
R2615
1/4W
UNF
R2515
1/4W
UNF
R2315
1/4W
UNF
R2415
1/4W
UNF
R2215
1/4W
4.7
R2708
FR
1/4W
!
! !
MF
R2406
0.22
5W
MF
R2506
0.22
5W
MF
R2306
0.22
5W
MF
R2106
0.22
5W
MF
R2206
0.22
5W
FR
R2710
10
!
4.7
R2709
FR
1/4W
!
J2701
QND0118-001
1
3
6
7
8
5
2
4
MF
R2606
0.22
5W
C2710
NI
CN271
QGB2510J1-14
1SP_GND_SR
2SP_GND_R
3SP_GND_SL
4SP_GND_L
5TH+
6TH-
7A/D_SL
8A/D_C
9A/D_R
10A/D_L
11+5V
12SSSETUP
13+7V
14SP_GND_C
IC301
RC4558D-X
2
3
1
8
4
IC301
RC4558D-X
6
5
7
Q3101
KTC3875/YG/-X
Q3102
KTC3875/YG/-X
Q3201
KTC3875/YG/-X
Q3202
KTC3875/YG/-X
D3102
1SS133-T2
D3101
1SS133-T2
D3202
1SS133-T2
D3201
1SS133-T2
Q3302
KTC3875/YG/-X
D3302
1SS133-T2
IC302
RC4558D-X
2
3
1
8
4
D3402
1SS133-T2
Q3301
KTC3875/YG/-X
D3401
1SS133-T2
D3301
1SS133-T2
IC302
RC4558D-X
6
5
7
Q3402
KTC3875/YG/-X
Q3401
KTC3875/YG/-X
R2604
560
C2514
R2408
15k
R2504
560
R2711
33k
R3206
47
C3701
0.01/50
C2303
4.7/50
R2314
100k
C2408
0.1/50
R2105
56K
R3305 470K
C2108
0.1/50
R2414
100k
C2105
100p/50
R3405
470K
R2705
33k
C2205
100p/50
R2614
100k
R2404
560
100/50
C2701
R3101
15K
C2213
C2304
100/16
C3104
2.2/50
R2513
2.2k
R2605
56K
C2705
100/50
C3301
0.0015/50
R3409
1K
R3106
47
R2613
2.2k
C3702
0.01/50
R2108
15k
C2613
R2111
10
UNF
1/4W
C3704
0.01/50
C2407
0.1/50
C2312
R3412
10K
R2407
1k
R2203
56k
R2205
56K
C2214
R2103
56k
C2405
100p/50
R3403
2.2k
R2501
10k
C2706
100/50
R3306
47
C2606
3p/50
R3406
47
R3107
330K
R2601
10k
R2722
4.7k
1/4W
R2204
560
R3408
100
C2203
4.7/50
C2614
R2411
10
UNF
1/4W
R3313
10K
C2211
C2206
3p/50
C2608
0.1/50
R2208
15k
R2311
10
UNF
1/4W
R2112
R2201
10k
R3104
18k
R3108
100
R3111
470
C2512
C3204
2.2/50
R3207
330K
C2406
3p/50
R2101
10k
R3407
330K
C2707
10/50
R2301
10k
C2513
R2410
4.7
UNF
1/2W
R2413
2.2k
R2309
47k
C2607
0.1/50
R2509
47k
R2210
4.7
1/2W
UNF
R3103
2.2k
R3211
470
R3208
100
C2505
100p/50
C2307
0.1/50
R3410
100K
C2212
R2405
56K
C3201
0.0015/50
C2605
100p/50
R3307
330K
R2104
560
R2303
56k
C2511
R2312
2.2k
R2611
10
UNF
1/4W
R2109
47k
R2609
47k
R2510
4.7
1/2W
UNF
R3310
100K
C2611
R3105
470K
R3212
10K
R3109
1K
R2401
10k
C2503
4.7/50
R3309
1K
C2308
0.1/50
R2207
1k
R2308
15k
C2506
3p/50
R3201
15K
R3312
10K
R3311
470
R2107
1k
C2103
4.7/50
C2603
4.7/50
R2514
100k
R2610
4.7
1/2W
UNF
R2511
10
UNF
1/4W
R2603
56k
C2612
R3213
10K
R3110
100K
R2503
56k
R2211
10
UNF
1/4W
R2702
22
1/4W
R2307
1k
R2304
560
R2505
56K
R3203
2.2k
C3703
0.01/50
C3303
1/50
R2213
2.2k
R2214
100k
C2403
4.7/50
R2305
56K
C2507
0.1/50
C3304
2.2/50
B2021
0R0
C2202
470p/50
C2413
R3411
470
C2602
470p/50
R3113
10K
R3209
1K
C2502
470p/50
R2607
1k
C2508
0.1/50
C2104
100/16
C2102
0.047/16
C2712
0.01/50
C2204
100/16
C2207
0.1/50
R2507
1k
R2403
56k
R2721
4.7k
1/4W
C2306
3P/50
R2409
47k
C2412
C2305
100p/50
C2414
R3112
10K
R3210
100K
R2612
2.2k
R3308
100
R2512
2.2k
100/50
C2703
R2313
2.2k
R3204
18k
C2713
0.01/50
R2113
2.2k
R2110
4.7
UNF
1/2W
C2208
0.1/50
R2114
100k
C3403
1/50
R3413
10K
R2209
47k
R2701
22
FR
1/4W
!
R2212
2.2k
C2313
C3404
2.2/50
R3303
2.2k
C3203
1/50
R2412
2.2k
C3401
0.0015/50
C2604
100/16
100/25
C2702
C2504
100/16
R2608
15k
C3101
0.0015/50
R3205
470K
C2107
0.1/50
R2508
15k
R3404
18k
C2106
3p/50
C2302
470p/50
R3301
15K
R2310
4.7
1/2W
UNF
C2404
100/16
C2314
C3103
1/50
R3401
15K
47/50
C2704
C2711
10/50
IC202
12345678910111213141516171819202122
IC201 STK413-430
1 2 3 4 5 6 7 8 9 10111213141516171819202122
CN273
QGB2510J1-14
1POWER_CTL
2
POWER_GND
3PRE_GND
4POWER_GND
5
PROTECT
6P.ON_SIG
7
+VL
8
9
-VL
10
11
12
+VH
13
-VH
14
QNB0195-001
J2702
8
1
4
7
10
3
6
9
2
5
CN272
QGB2510J1-09
1-7V
2GND
3TX/RX
4DC_DETECT
5SP_RELAY+
6SP_RELAY-
7SR_SIG
8SW_SIG
9SW_SIG
C2402
470p/50
C2411
C2311
Q2707
KTA1267/YG/-T
4.7
R2707
FR
1/4W
!
470
R2704
470
R2703
4.7
R2706
FR
1/4W
!
D2701
MTZJ15C-T2
Q2708
KTC3199/GL/-T
D2702
MTZJ15C-T2
5.6k
R2712
5.6k
R2713
R2421
NI
R2522
NI
C2521
NI
CN275
NI
1 SL_OUT
2 SP_GND
3 SR_OUT
4 GND
5+5V
R3304
18k
R2521
NI
C2421
NI
R2422
NI
D2705
1SS133-T2
D2704
1SS133-T2
CH1NF
-VS
CH3-VE
+VL
-VL
CH2IN
PRE+VCC
+VH
CH1-VE
CH3+VE
+VS
CH1+VE
CH2-VE
CH2+VE
BIAS
CH2NF
PRE-VCC
CH3NF
-VH
CH3IN
CH1IN
SUB_GND
CH1-VE
CH3+VE
+VS
CH1+VE
CH2-VE
CH2+VE
BIAS
CH2NF
PRE-VCC
CH3NF
-VH
CH3IN
CH1IN
SUB_GND
CH1NF
-VS
CH3-VE
+VL
-VL
CH2IN
PRE+VCC
+VH
SLOUT
FCOUT
FROUT
SROUT
FLOUT
LR
COM
SLSR
SW
C
P.ON
VERSION
A/C/J/UT
L2202/2302/2402
L2502/2602
C2211/2311/2411
C2511/2611
C2212/2312/2412
C2512/2612
R2215/2315/2415
R2515/2615
C2213/2313/2413
C2513/2613
C2214/2314/2414
C2514/2614
B/E/EN/EE
EV/UP
US/UB/UF
UX/UW/UJ
UG
NOT USE NOT USE
(OPEN)
0.45
H 0.1/50 0.1/50
10 OHM 1/4W
UNF
NOT USE
(OPEN)
NOT USE
(OPEN)
LVA10569-A1
ALL CAPACITORS ARE SHOWN IN THE FORM OF CAPACITANCE(uF)/RATED VOLTAGE(V).
VOLTAGES ARE DC-MEASURED WITH A DIGITAL VOLT METER WITHOUT INPUT SIGNAL.
TO CN502 TO CN372 TO CN501
(p=pF)
(SHORT)
44.5V
19.7V
0V
0V
-19.9V
-44.3V
0V
0V
0V
0V
0V
-43.1V
42.8V
0V
0V
-41.9V
0V
0V
0V
0V
0V
0V
44.5V
19.7V
0V
0V
-19.0V
-44.3V
0V
0V
0V
0V
0V
-43.1V
42.8V
0V
0V
-41.9V
0V
0V
0V
0V
0V
0V
0V
27.3V
0V
42.9V
43.0V
43.0V
43.6V
0V
0V
-19.5V
0V
0V
-19.5V -19.5V
0V
0V
0.2V
-19.9V 0V
0V19.7V
-0.1V
0V
0V
-19.5V -19.5V
0V
0V
0V
0V
-19.5V
0V
0V
0V
0V
0V
0V
7.0V
-7.0V
0V
0V
-2.2V
-2.2V
0V
0V
0V
0V
-2.2V
-2.2V
0V
0V
0V
0V
-2.2V
0V
0V
-2.2V
0V
0V
0V
0V
0V
-2.2V
-2.2V
0V
0V
0V
0V
0V
7.0V
-7.0V
*4 MARK
MODEL
C4 J/C
OTHER
IC202
STK413-430
STK413-400
C5 J/C
C6 J/C
C7 J
R4 J/C
*5 MARK
R2112
C5
12k
C7
7.5kOTHER
*6 MARK
MODEL
*5
*6
*4
*4
*4
*4
*4
(SHEET 11)
(SHEET 10) (SHEET 10)
Amplifier section
<Subwoofer section>

Related product manuals