EasyManua.ls Logo

KEEWAY Focus - Ignition System: Components and Inspection

KEEWAY Focus
115 pages
Print Icon
To Next Page IconTo Next Page
To Next Page IconTo Next Page
To Previous Page IconTo Previous Page
To Previous Page IconTo Previous Page
Loading...
64
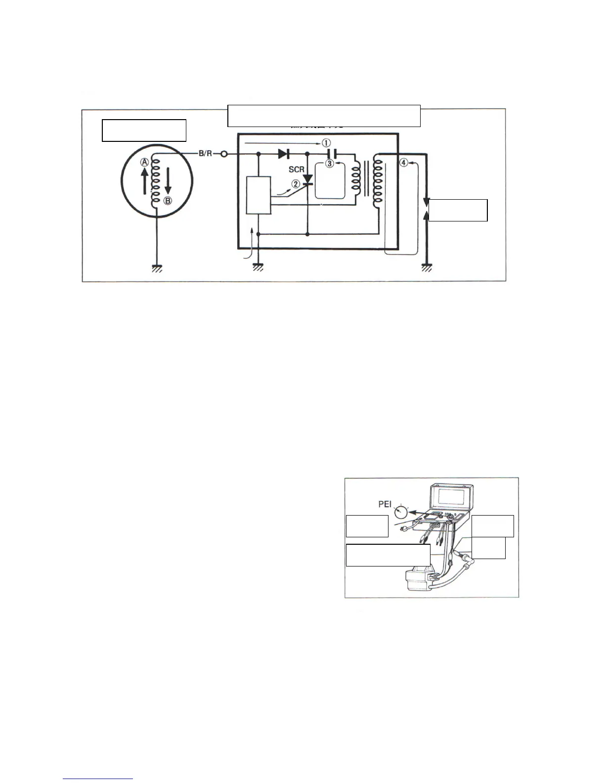
IGNITION SYSTEM
The ignition system consists of a flywheel magneto, a CDI&Ignition coil unit and a spark plug.
As the rotor tatates, an AC current is induced in the coil. Then current induced in the
A
direction charges up the capacitor.
As the rotor rotates further, the current is induced in the reverse direction (dirction
B
). the
current causes a voltage applied through the ground to the gate of SCR.
As the SCR conducts, the energy which has been charged in the capacitor is instantaneously
discharged through the primary winding of the ignition coil.
CDI UNIT AND IGNITION COIL INSPECTION
CHECKING WITH ELECTRO TESTER
Connect the CDI test lead to the coil”s primary
connector.
Connect the high tension leads, red
+
lead to the
spark plug cord and the black
lead to the black
lead of the test lead.
Set the test selector knob to P.E.I”.
Connect the power lead to the appropriate AC
source.
Switch the power on.
Switch
Black
red
CDI test lead
MAGNETO
CDI&Ignition coil unit
Spark plug

Related product manuals