EasyManua.ls Logo

Kingtec K35A - Appendix1

Kingtec K35A
18 pages
Print Icon
To Previous Page IconTo Previous Page
To Previous Page IconTo Previous Page
Loading...
17
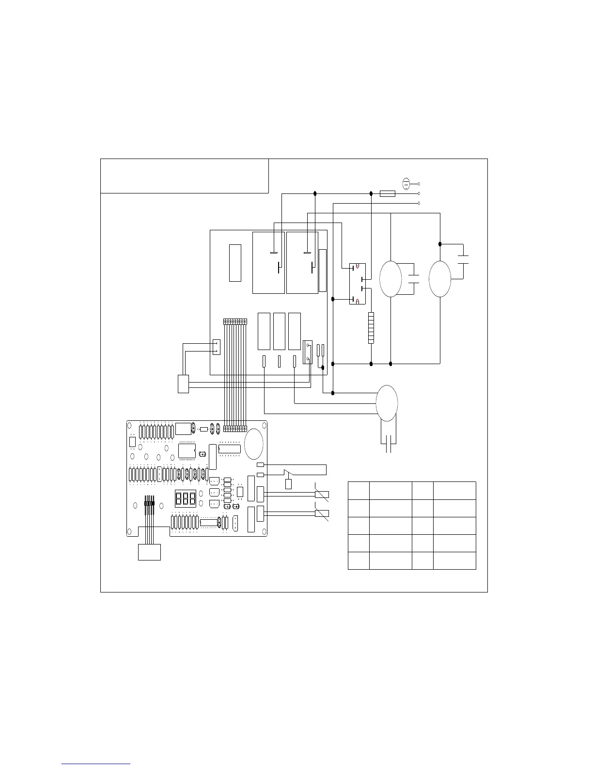
Appendix 1
Ai r r et ur n Tem
i n- door heat exchange
coi l Tem
K35A ELECTRI C CLRCUI T DI AGRAM
NOTE:
HP
H. P Pr ot ect
Cont r ol or
Evapor at or bl ower
EM
Power r el ay
KAT
Fuse
FU
EH
El c Heat er Compr essor
CM
C
Capaci t ance
FAN
Condenser f an
Tr ansf or mer
FUSE
HP
T
H
L
N
EM
KA
6
2
3
5
FAN CM
C
C
C
EH
~Power

Related product manuals