EasyManua.ls Logo

KitchenAid 2307890A - Paneles Laterales a la Medida para la Serie Architect

KitchenAid 2307890A
68 pages
Print Icon
To Next Page IconTo Next Page
To Next Page IconTo Next Page
To Previous Page IconTo Previous Page
To Previous Page IconTo Previous Page
Loading...
33
IMPORTANTE:
El peso del panel recubierto de la puerta del refrigerador no
puede ser mayor de 50 lb. (23 kg).
El peso del panel recubierto de la puerta del congelador no
puede ser mayor de 30 lb. (13,5 kg).
El peso del panel recubierto de la rejilla superior no puede ser
mayor de 10 lb. (4,5 kg).
Para minimizar el peso del panel, puede usar franjas
espaciadoras de 2" (5,08 cm) alrededor del perímetro en lugar de
paneles espaciadores de hoja plena macizos. Las franjas
espaciadoras deben fijarse a una distancia de al menos 1"
(2,54 cm) de la parte superior, inferior y extremos laterales del
panel de soporte. Si usa franjas espaciadoras, se recomienda
que use 2 franjas de 2" (5,08 cm) centradas horizontalmente para
soporte adicional.
NOTA: Para que la rejilla y los paneles de la puerta queden
alineados, el panel recubierto para la puerta debe ser ¼"
(6,35 mm) más espeso que el panel recubierto de la rejilla.
Paneles laterales a la medida para la
Serie Architect
®
Los paneles laterales a la medida pueden ser necesarios cuando
no hay suficiente espacio disponible para tener gabinetes en los
dos lados del refrigerador o cuando el refrigerador se coloca al
final de una tira de gabinetes. Usted puede elegir una instalación
de paneles empotrados, al ras o en relieve.
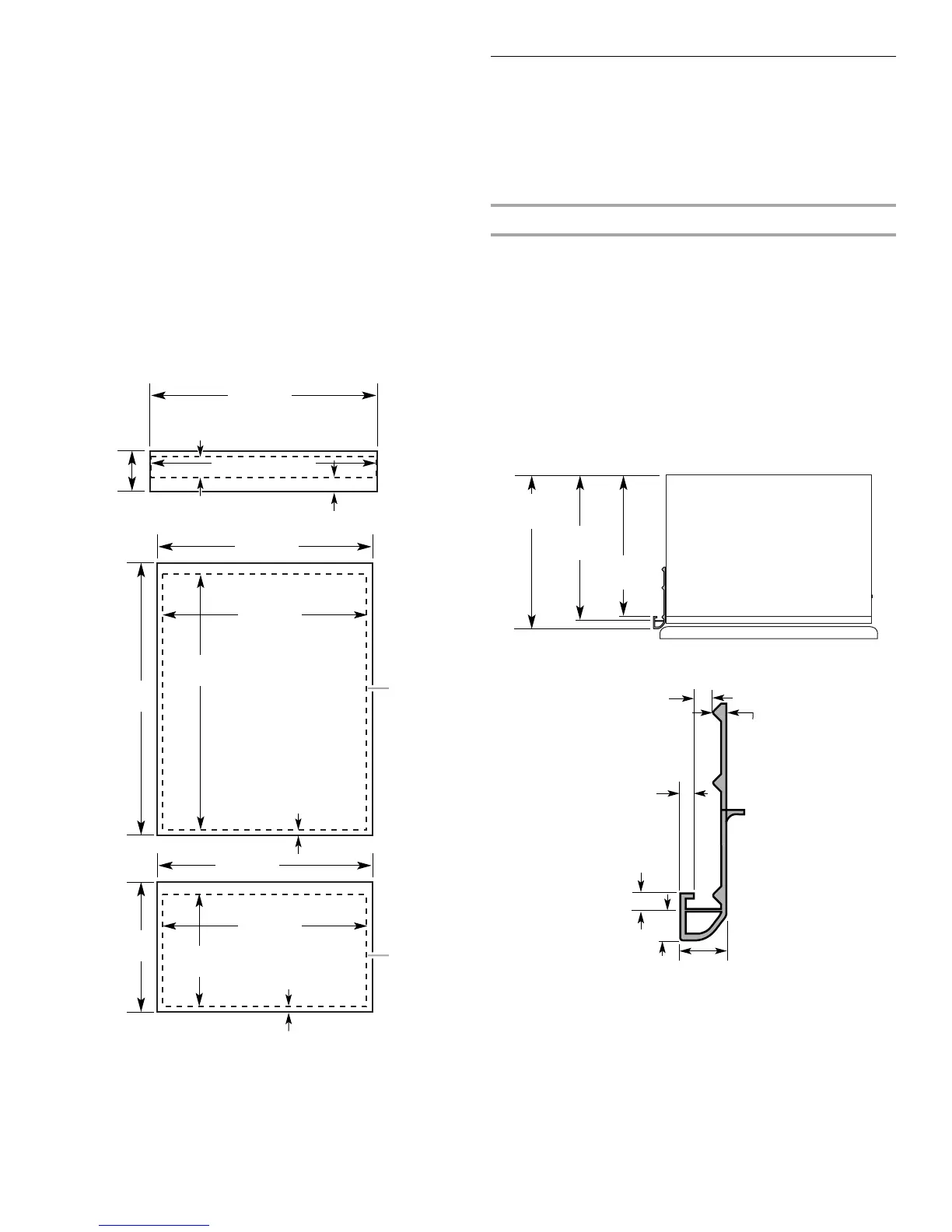
Medidas del refrigerador y del adorno lateral
El ancho y la altura del panel lateral están determinados por el
tipo de instalación que usted planifique.
NOTAS:
Las dimensiones que se muestran son las dimensiones
exactas del producto y puede que no reflejen las
dimensiones necesarias de la instalación del panel.
El panel lateral deberá tener un grosor mínimo de ½"
(12 mm) para impedir pandeos.
Si la profundidad de la abertura es de 25" (63,5 cm) o
mayor, tal vez quiera instalar una tabla de soporte en la
pared posterior.
Refrigerador
Adornos laterales
34
1
/
2"
(87,63 cm)
7
3
/
8"
(18,73 cm)
8
1
/
2"
(21,59 cm)
Desplazamiento
inferior 1" (2,54 cm)
34
1
/
2" (87,63 cm)
34
1
/
2"
(87,63 cm)
34
1
/
2"
(87,63 cm)
49
1
/
8"
(124,78 cm)
20
3
/
16"
(51,28 cm)
50"
(127,0 cm)
20
9
/
16"
(52,23 cm)
34
5
/
16"
(87,15 cm)
34
5
/
16"
(87,15 cm)
Desplazamiento
inferior
7
/
16" (11,1 mm)
Desplazamiento
inferior
1
/
16" (1,6 mm)
Centre el
panel de
soporte de
izquierda
a derecha
Centre el
panel de
soporte de
izquierda
a derecha
24¹⁄₈"
(61,3 cm)
23
¹⁄₂"
(59,7 cm)
23¹¹⁄₁₆"
(60,3 cm)
¹¹⁄₆₄"
(4,5 mm)
¹⁄₄"
(6,35 mm)
³⁄₁₆"
(4,7 mm)
⁷⁄₃₂"
(5,5 mm)
¹³⁄₃₂" (10 mm)
⁵⁄₈"
(15,7 mm)

Table of Contents

Related product manuals