EasyManua.ls Logo

KitchenAid KGCD807XBL02 - Page 4

KitchenAid KGCD807XBL02
24 pages
Print Icon
To Next Page IconTo Next Page
To Next Page IconTo Next Page
To Previous Page IconTo Previous Page
To Previous Page IconTo Previous Page
Loading...
Product Dimensions
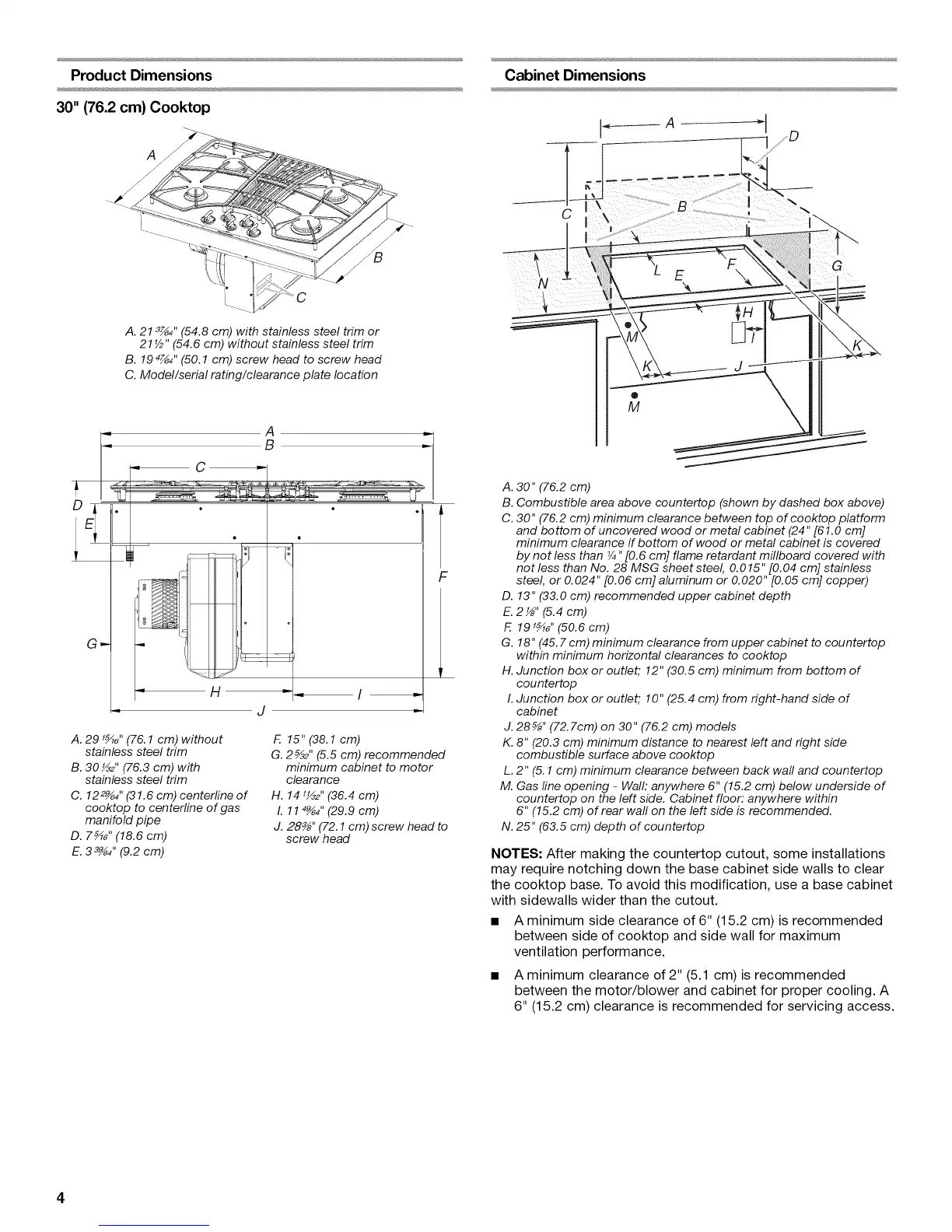
30" (76.2 cm) Cooktop
A. 21 sy_,, (54.8 cm) with stainless steel trim or
21 _/2"(54.6 cm) without stainless steel trim
B. 194Y_'' (50.1 cm) screw head to screw head
C. Model/serial rating/clearance plate location
A
Cabinet Dimensions
C
®
M
.i
-_ H
[
F
A. 291_,, (76.1 cm) without
stainless steel trim
B. 30 _2" (76.3 cm) with
stainless steel trim
C. 12 29/_'' (31.6 cm) centerllne of
cooktop to centerllne of gas
manifold pipe
D. 7_" (18.6 cm)
E. 3 sg/_,,(9.2 cm)
F.15"(38.1cm)
G. 2_2" (5.5 cm) recommended
minimum cabinet to motor
clearance
H. 14 l_z" (36.4 cm)
I. 11 49/_,,(29.9 cm)
J. 28_" (72.1 cm) screw head to
screw head
A. 30" (76.2 cm)
B. Combustible area above countertop (shown by dashed box above)
C. 30" (76.2 cm) minimum clearance between top of cooktop platform
and bottom of uncovered wood or metal cabinet (24" [61.0 cm]
minimum clearance if bottom of wood or metal cabinet is covered
by not less than ¼" [0.6 cm] flame retardant millboard covered with
not less than No. 28 MSG sheet steel, 0.015" [0.04 cm] stainless
steel, or 0.024" [0.06 cm] aluminum or 0.020" [0.05 cm] copper)
D. 13" (33.0 cm) recommended upper cabinet depth
E. 2_" (5.4cm)
F. 19 1_" (50.6 cm)
G. 18" (45.7 cm) minimum clearance from upper cabinet to countertop
within minimum horizontal clearances to cooktop
H. Junction box or outlet; 12" (30.5 cm) minimum from bottom of
cou ntertop
I. Junction box or outlet; 10" (25.4 cm) from right-hand side of
cabinet
J. 285_ '' (72.7cm) on 30" (76.2 cm) models
K. 8" (20.3 cm) minimum distance to nearest left and right side
combustible surface above cooktop
L. 2" (5.1 cm) minimum clearance between back wall and countertop
M. Gas line opening - Wall: anywhere 6" (15.2 cm) below underside of
countertop on the left side. Cabinet floor: anywhere within
6" (15.2 cm) of rear wall on the left side is recommended.
N. 25" (63.5 cm) depth of countertop
NOTES: After making the countertop cutout, some installations
may require notching down the base cabinet side walls to clear
the cooktop base. To avoid this modification, use a base cabinet
with sidewalls wider than the cutout.
A minimum side clearance of 6" (15.2 cm) is recommended
between side of cooktop and side wall for maximum
ventilation performance.
A minimum clearance of 2" (5.1 cm) is recommended
between the motor/blower and cabinet for proper cooling. A
6" (15.2 cm) clearance is recommended for servicing access.

Related product manuals