EasyManua.ls Logo

KitchenAid KGCD807XBL02 - Page 6

KitchenAid KGCD807XBL02
24 pages
Print Icon
To Next Page IconTo Next Page
To Next Page IconTo Next Page
To Previous Page IconTo Previous Page
To Previous Page IconTo Previous Page
Loading...
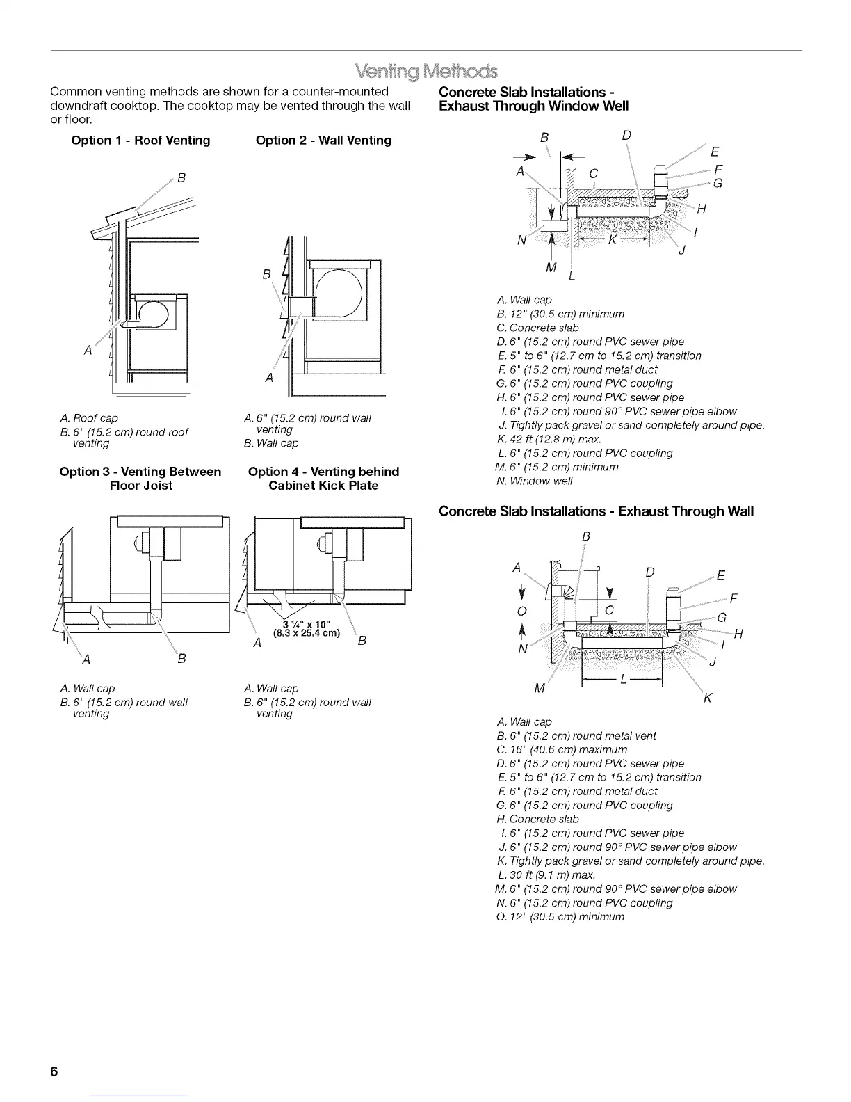
Common venting methods are shown for a counter-mounted Concrete Slab Installations -
downdraft cooktop. The cooktop may be vented through the wall Exhaust Through Window Well
or floor.
Option 1 - Roof Venting Option 2 - Wall Venting B D
A. Roof cap
B. 6" (15.2 cm) round roof
venting
Option 3 - Venting Between
Floor Joist
A. 6" (15.2 cm) round wall
venting
B. Wall cap
Option 4 - Venting behind
Cabinet Kick Plate
3 ¼" x 10"
(8,3 x 25,4 cm)
A B
B
A. Wall cap
B. 6" (15.2 cm) round wall
venting
A. Wall cap
B. 6" (15.2 cm) round wall
venting
M
A. Wall cap
B. 12" (30.5 cm) minimum
C. Concrete slab
D. 6" (15.2 cm) round PVC sewer pipe
E. 5" to 6" (12.7 cm to 15.2 cm) transition
F. 6" (15.2 cm) round metal duct
G. 6" (15.2 cm) round PVC coupling
H. 6" (15.2 cm) round PVC sewer pipe
I. 6" (15.2 cm) round 90 ° PVC sewer pipe elbow
J. Tightly pack gravel or sand completely around pipe.
K. 42 ft (12.8 m) max.
L. 6" (15.2 cm) round PVC coupling
M. 6" (15.2 cm) minimum
N. Window well
Concrete Slab Installations - Exhaust Through Wall
B
A. Wall cap
B. 6" (15.2 cm) round metal vent
C. 16" (40.6 cm) maximum
D. 6" (15.2 cm) round PVC sewer pipe
E. 5" to 6" (12.7 cm to 15.2 cm) transition
F. 6" (15.2 cm) round metal duct
G. 6" (15.2 cm) round PVC coupling
H. Concrete slab
I. 6" (15.2 cm) round PVC sewer pipe
J. 6" (15.2 cm) round 90 ° PVC sewer pipe elbow
K. Tightly pack gravel or sand completely around pipe.
L. 3O ft (9.1 m) max.
M. 6" (15.2 cm) round 90 ° PVC sewer pipe elbow
N. 6" (15.2 cm) round PVC coupling
O. 12" (30.5 cm) minimum
6

Related product manuals