EasyManua.ls Logo

KitchenAid KSCS25FKSS01 - Installation Requirements; Tools and Parts; Product Dimensions

KitchenAid KSCS25FKSS01
16 pages
Print Icon
To Next Page IconTo Next Page
To Next Page IconTo Next Page
To Previous Page IconTo Previous Page
To Previous Page IconTo Previous Page
Loading...
INSTALLATION
REQUIREMENTS
IMPORTANT:
Observe all governing codes and ordinances.
Installer: Leave Installation Instructions with homeowner.
Homeowner: Keep Installation Instructions for future
reference and for the local electrical inspector's use.
Keep cardboard shipping piece or plywood under
refrigerator until it is installed in the operating position.
Comply with installation specifications and dimensions.
Remove any moldings or decorative panels that prevent
the refrigerator from being serviced.
Contact a qualified electrical installer.
Tools needed:
Make sure that you have the tools necessary for proper
installation:
Hand drill or electric drill 7/16in. and 1/2in. open-end
(properly grounded) wrenches
1/4in, nut driver and Two adjustable wrenches
drill bit
Flat-blade screwdriver Socket wrench
Parts needed:
Your refrigerator dealer has a kit available with a 1/4in.
(6.35 mm) saddle-type shutoff valve, a union, and copper
tubing.
Or you can purchase a 1/4in. (6.35 mm) copper tubing with
shutoff valve and a 1/4in. (6.35 mm) compression fitting
(coupling).
Depending on water line connections, you may also need
a 1/4in. (6.35 mm) nut and 1/4in. (6.35 mm) ferrule.
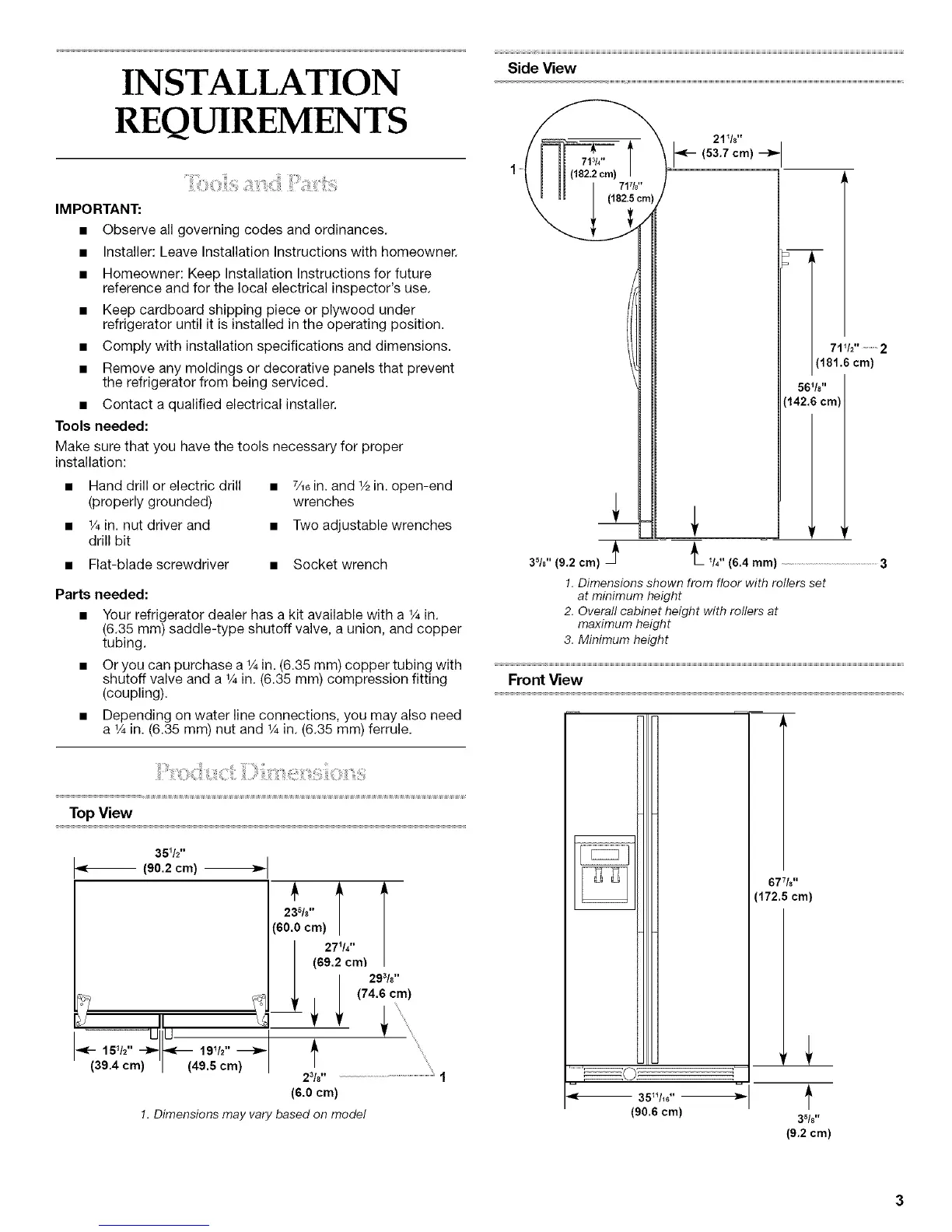
Top View
35112"
(90.2 cm)
_- 15_/2"-_-I[.,_-- 19112"
(39.4 cm) I (49.5 cm)
23/8......................................................1
(S.0cm)
1. Dimensionsmay vary based on model
Side View
= 5t (181.6,_,,711/2"2cm)
(142 cm
1
3°/8,,19.2cml2 t ,/.,,16.4r.r.) ..........................................................3
1.Dimensions shown from floor with rollersset
at minimum height
2. Overaflcabinet height with rollers at
maximum height
3. Minimum height
Front View
m
677/8''
(172.5cm)
R

Related product manuals