EasyManua.ls Logo

KitchenAid KUDF204EPA - Panneaux Décoratifs Personnalisés de Tiroirs

KitchenAid KUDF204EPA
60 pages
Print Icon
To Next Page IconTo Next Page
To Next Page IconTo Next Page
To Previous Page IconTo Previous Page
To Previous Page IconTo Previous Page
Loading...
45
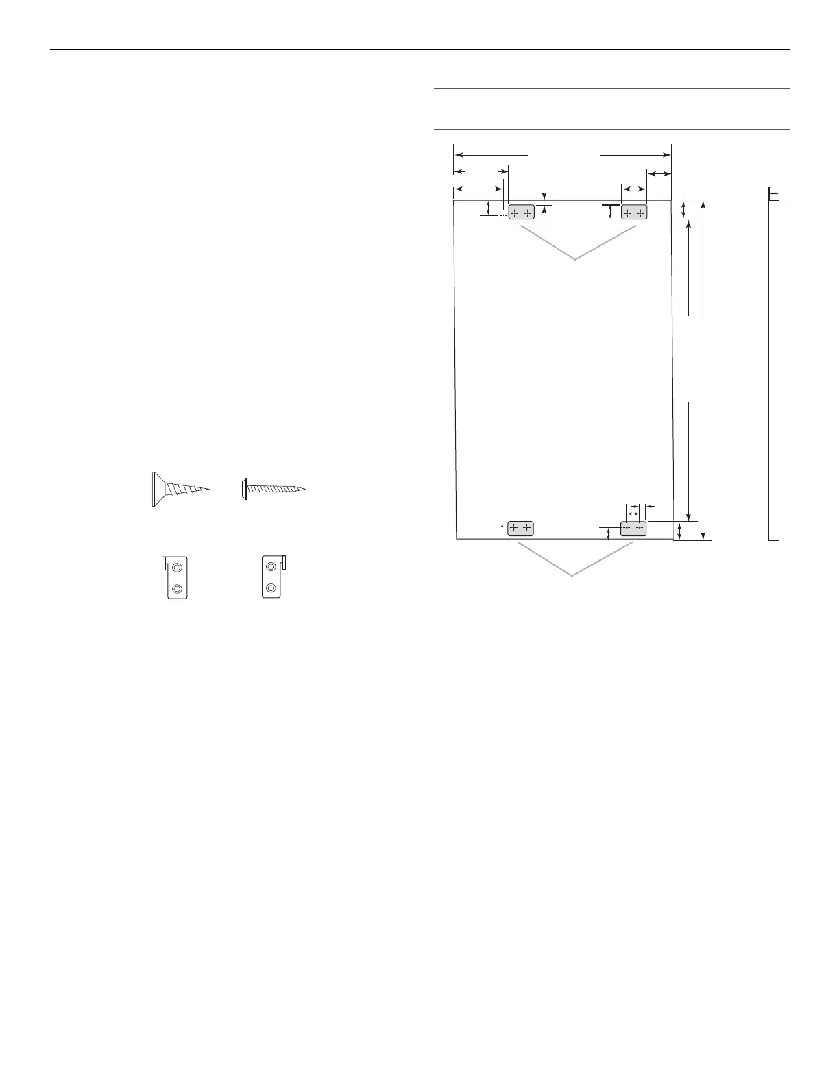
Panneaux décoratifs personnalisés de tiroirs
Si vous prévoyez d’installer des panneaux personnalisés en bois,
vous devrez les créer vous-même ou consulter un ébéniste ou
menuisier qualifié. Voir le dessin des dimensions pour les
spécifications du panneau.
IMPORTANT :
L’épaisseur des panneaux décoratifs doit être de ³⁄₄"
(19,05 mm).
Pour éviter tout dommage aux tiroirs, le poids de chaque
panneau décoratif ne doit pas dépasser 10 lb (4,5 kg).
Respecter les dimensions indiquées pour la hauteur des
panneaux décoratifs. Si la dimension de la hauteur est
supérieure à la valeur recommandée, les tiroirs de
réfrigération, les placards et/ou le plan de travail pourraient
subir des dommages.
La largeur des panneaux décoratifs peut varier en fonction de
la largeur de l’espace d’installation de la caisse.
Pour l’installation du panneau personnalisé, les pièces
suivantes sont nécessaires :
Vis (autotaraudeuses inox à tête plate 1 M4x12) (16)
Vis à bois autotaraudeuses (4)
Platines à crochet droites pour panneau décoratif de tiroir
(SPHC T= 2,3) (4)
Platines à crochet gauches pour panneau décoratif de
tiroir (SPHC T= 2,3) (4)
REMARQUE : Certaines pièces ou la totalité peuvent être
incluses ou non. Si ces pièces ne sont pas incluses avec cet
appareil, faire un appel de service ou demander l’avis d’un
spécialiste.
Dimensions de la partie supérieure et inférieure du
panneau décoratif de tiroir
A. Vis taraudeuses inox à tête plate
M4x12
B. Vis à bois autotaraudeuses
D. Platine à crochet droite pour
panneau décoratif
F. Platine à crochet gauche pour
panneau décoratif
AB
CD
A. Fraiser à
¹⁄₈
" (3,18 mm) de profondeur.
Partie supérieure
Partie inférieure
Envers
Inverse
15" (38,05 cm)
3³⁄₈"
9,5 cm
1"
(2,6 cm)
1"
(2,4 cm)
1³"(4,4 cm)
1¹¹⁄₁₆" (4,35 cm)
³"
(1,9 cm)
21¹³⁄₁₆" (53,64 cm)
23 ³" (60,3 cm)
1⁵⁄₁₆" (3,3 cm)
¹⁵⁄₁₆" (2,3 cm)
¹³⁄₁₆" (2,0 cm)
⁷⁄₁₆" (1,2 cm)
1⁵⁄₁₆" (3,3 cm)
A
A
3³⁄₈" (8,6 cm)
³⁄₈" (9 mm)

Table of Contents

Related product manuals