EasyManua.ls Logo

KITMA FCB23F - Page 15

KITMA FCB23F
17 pages
Print Icon
To Next Page IconTo Next Page
To Next Page IconTo Next Page
To Previous Page IconTo Previous Page
To Previous Page IconTo Previous Page
Loading...
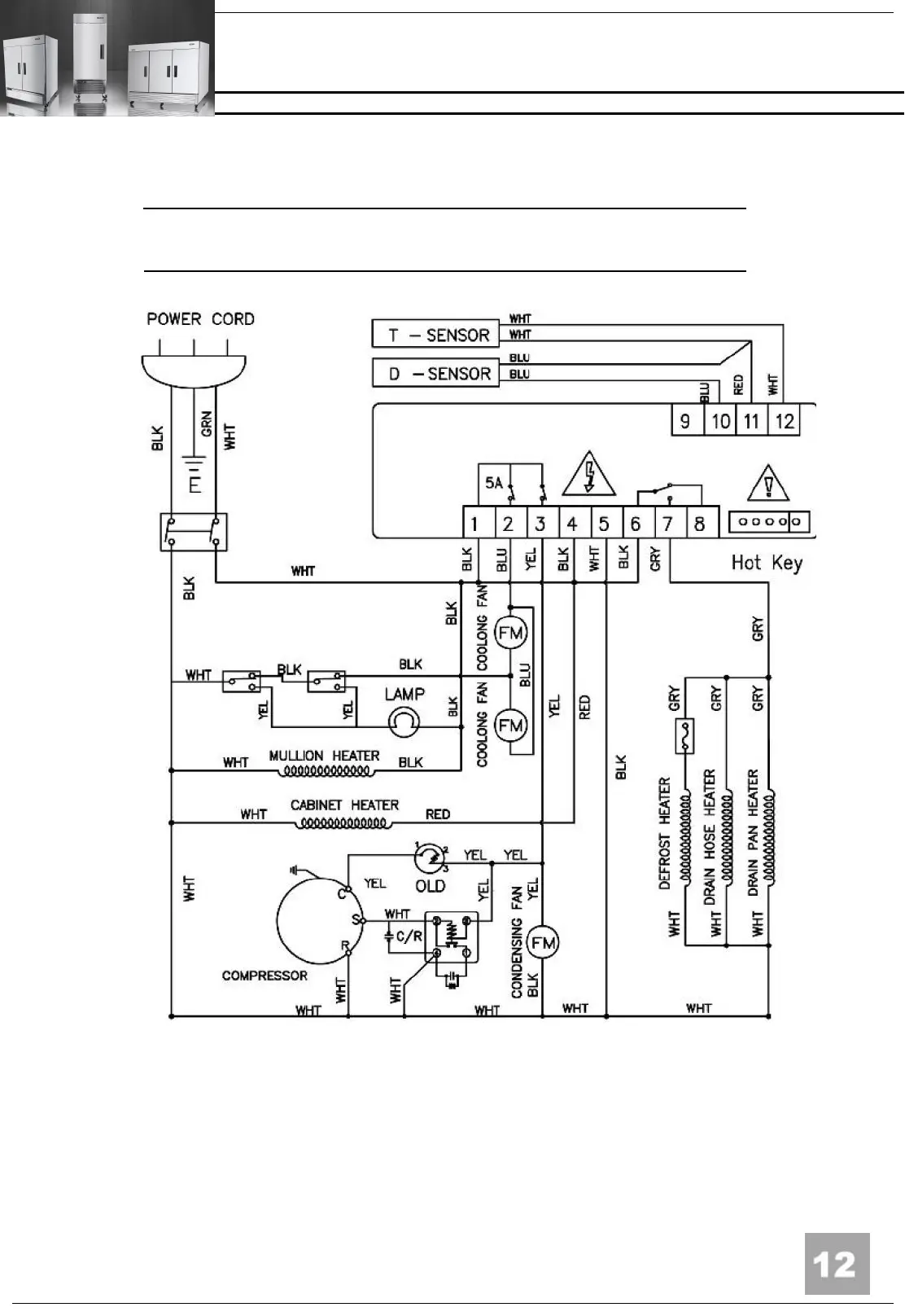
Fan cooling freeze series product
H
l33.Hf
S
'
l
0U
0
X-3
HN-
POWER CORD
WHT
WHT
CABINET HEATER
WH
T

Related product manuals