EasyManua.ls Logo

Kity 429 - Page 35

Kity 429
74 pages
Print Icon
To Next Page IconTo Next Page
To Next Page IconTo Next Page
To Previous Page IconTo Previous Page
To Previous Page IconTo Previous Page
Loading...
FR
22
35
7. UTILISATION DE LA MACHINE
21
23
5 mm
M
P
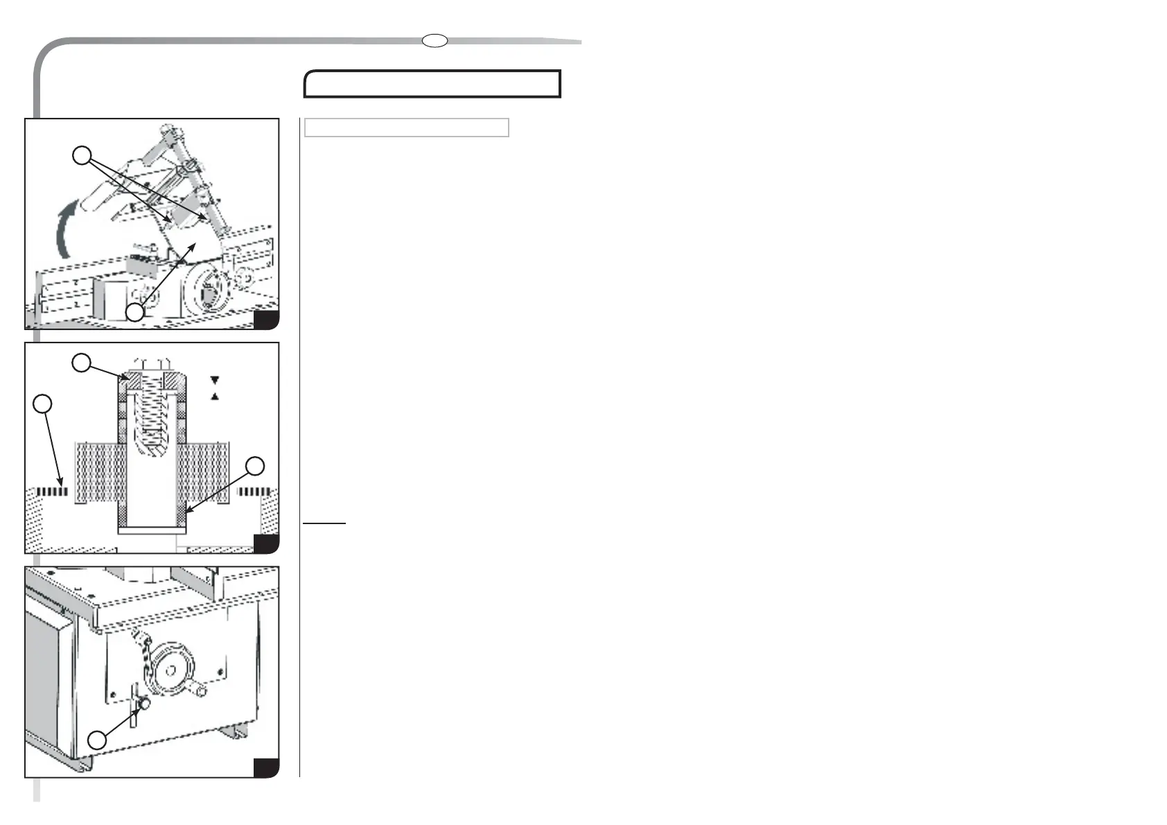
- Débrancher impérativement la fiche électrique de la machine
avant tout acte sur l’outil.
- Ouvrir le capot de protection (M) en devissant les 2 boutons
(L1) afin d’accéder à l’arbre moteur (21).
- Monter l’outil sur l’arbre d’entrainement, toujours au plus
prés possible du palier, en veillant au sens de rotation (cf.
«Branchement électrique»).
- Veiller toujours à glisser une bague sous l’outil, au dessus de
l’épaulement de l’arbre (O1)
- Ajuster avec les différentes bagues en fonction de l’outil. (22)
- Mettre le capuchon (O2).
- Bloquer la rotation de l’arbre en enfonçant le levier (P) (23).
- Veiller à faire dépasser la dernière bague de 5 mm environ,
par rapport au haut de l’arbre et s’assurer qu’elle soit fixe par
rapport à celui-ci.
- Serrer l’outil sur l’arbre moteur, avec un effort de serrage de
15 N/m.
- Refermer impérativement le capot de protection (N) avant
toute nouvelle utilisation de la toupie.
Important : Pour les outils débouchants dans la table, réduire
la passage au minimum entre la table et l’outil à l’aide des
rondelles de table (N).
b. Montage de l’outil sur la machine
(22)
N
O2
O1
L1