EasyManua.ls Logo

Kohler 14EKOZD

Kohler 14EKOZD
84 pages
To Next Page IconTo Next Page
To Next Page IconTo Next Page
To Previous Page IconTo Previous Page
To Previous Page IconTo Previous Page
Loading...
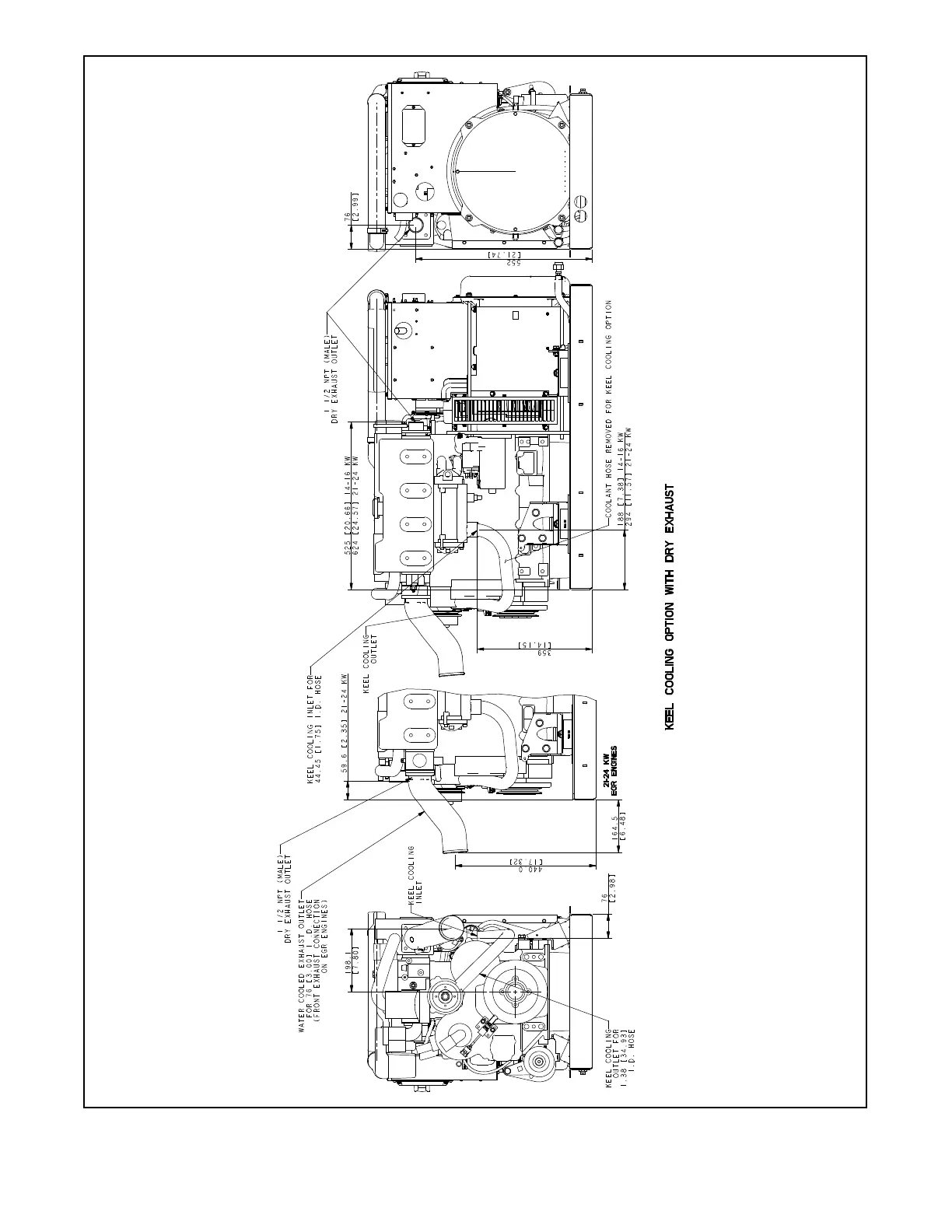
TP-7045 3/18c42 Section 7 Installation Drawings
ADV-8882A-
NOTE: Dimensions are shown in mm [in.].
Figure 7-8 Dimension Drawing—Accessories, 14--24EKOZD and 12--20.5EFKOZD (Sheet 1 of 2)

Table of Contents

Other manuals for Kohler 14EKOZD

Related product manuals