EasyManua.ls Logo

Kohler 23EOZ - Page 52

Kohler 23EOZ
92 pages
Print Icon
To Next Page IconTo Next Page
To Next Page IconTo Next Page
To Previous Page IconTo Previous Page
To Previous Page IconTo Previous Page
Loading...
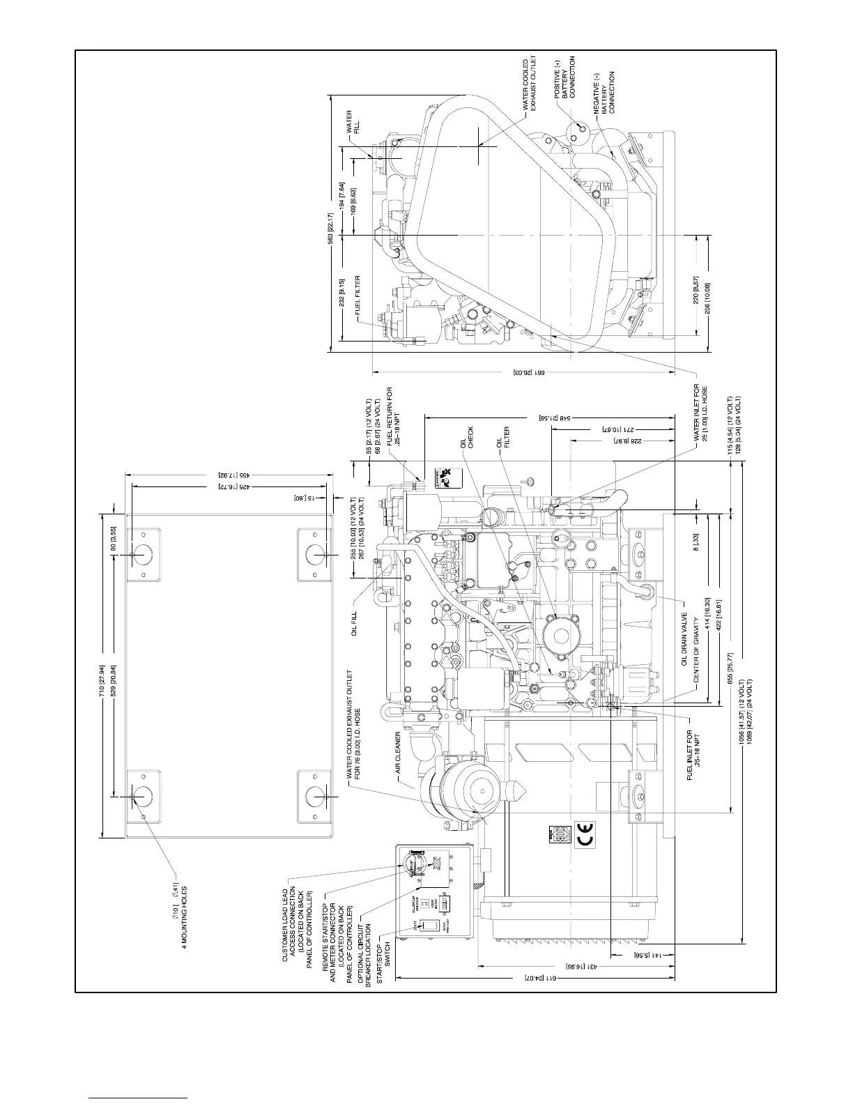
TP-6069 6/0342 Section 7 Installation Drawings
ADV-6481A-D
NOTE: Dimensions in [ ] are inch equivalents.
Figure 7-14 Dimension Drawing, 16/17.5EFOZ and 20EOZ

Other manuals for Kohler 23EOZ

Related product manuals