EasyManua.ls Logo

Kohler 32EOZ - Page 42

Kohler 32EOZ
92 pages
Print Icon
To Next Page IconTo Next Page
To Next Page IconTo Next Page
To Previous Page IconTo Previous Page
To Previous Page IconTo Previous Page
Loading...
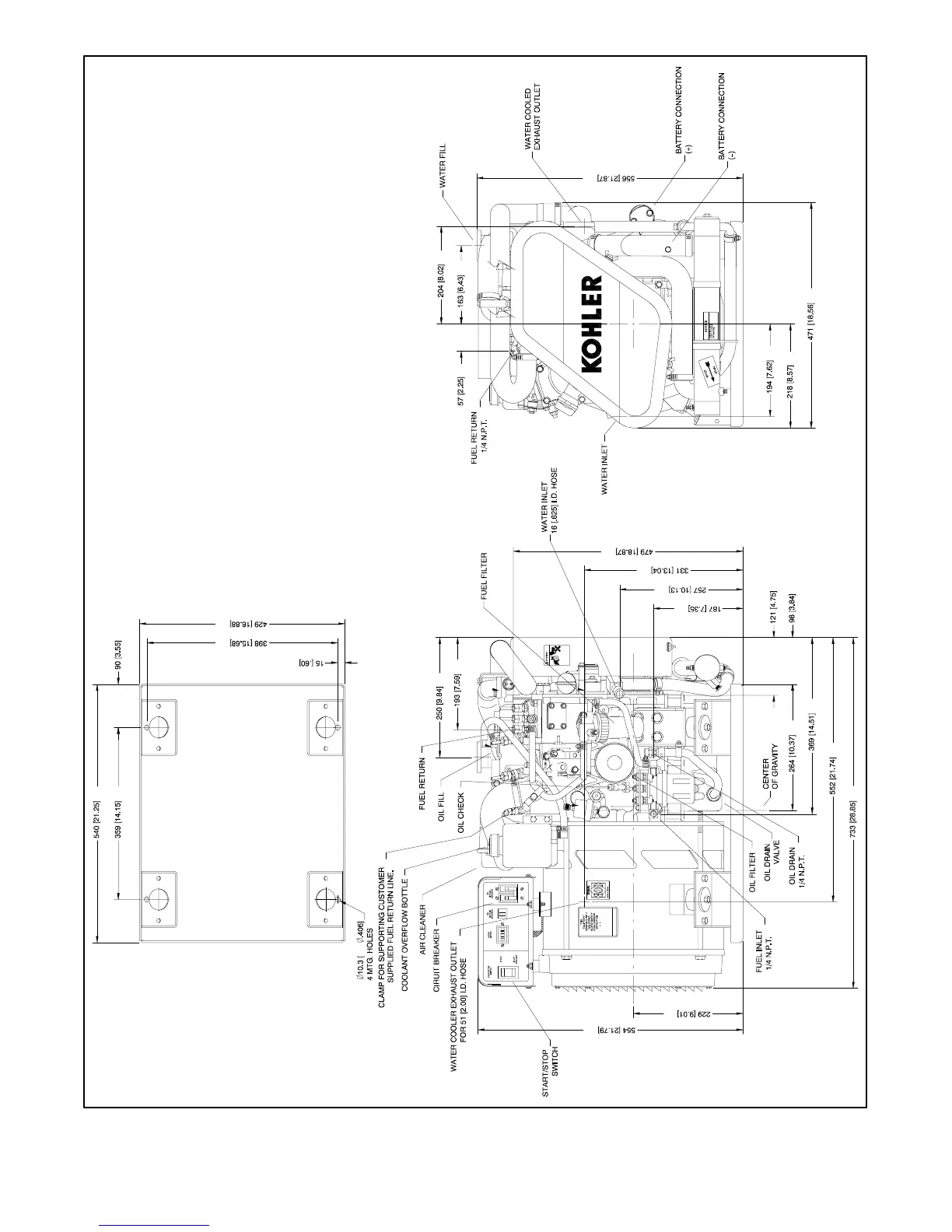
TP-6069 6/0332 Section 7 Installation Drawings
ADV-5850A-H
NOTE: Dimensions in [ ] are inch equivalents.
Figure 7-4 Dimension Drawing, 4EFOZ/5EOZ

Other manuals for Kohler 32EOZ

Related product manuals