EasyManua.ls Logo

Kohler 40EOZD - Page 7

Kohler 40EOZD
12 pages
Print Icon
To Next Page IconTo Next Page
To Next Page IconTo Next Page
To Previous Page IconTo Previous Page
To Previous Page IconTo Previous Page
Loading...
TT-1501 9/12 7
GM51352C, D-B
See the
full wiring
diagram
in the
operation
manual.
From
View A-A.
View A-A
See the
full wiring
diagram
in the
operation
manual.
From
View A-A.
See the
full wiring
diagram
in the
operation
manual.
From
View A-A.
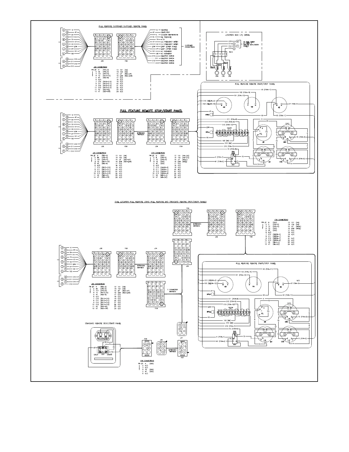
Figure 12 55--180EOZD/EOZC and 40 --150EFOZD/EFOZC Models—Current Transformer Wiring for Units
Equipped with Decision-Makerr 3+ Controllers (consult the operation manual for the full wiring
diagram)

Related product manuals