EasyManua.ls Logo

Kohler 40EOZD - Page 6

Kohler 40EOZD
12 pages
Print Icon
To Next Page IconTo Next Page
To Next Page IconTo Next Page
To Previous Page IconTo Previous Page
To Previous Page IconTo Previous Page
Loading...
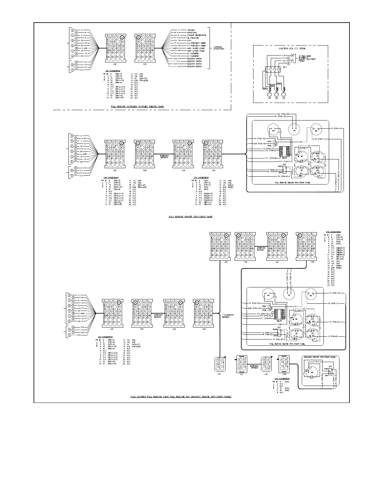
6 TT-1501 9/12
GM51639D, E-
View A-A
From
View A-A.
See the
full wiring
diagram
in the
operation
manual.
See the
full wiring
diagram
in the
operation
manual.
From
View A-A.
See the
full wiring
diagram
in the
operation
manual.
From
View A-A
.
Figure 11 40EOZD/EOZC and 33EFOZD/EFOZC Models—Current Transformer Wiring for Units Equipped with
Decision-Makerr 3+ Controllers (consult the operation manual for the full wiring diagram)

Related product manuals